Bells Drove, Littleport, CB6
- PROPERTY TYPE
- Land 
- SIZE
- Ask agent 
Key features
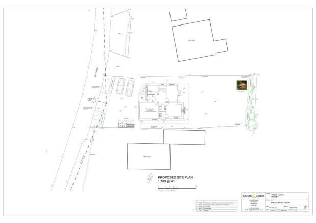
- Single Building Plot
- Detailed Planning Consent For Four Bedroomed House Of Approx 1872 sq ft
- Semi Rural Location
- Countryside Views
Description
A building plot of approximately 0.15 of an acre (STS) with full planning permission to build a four bedroom detached family home of approximately 1872 sq ft (174 sq m.) The consent provides accommodation comprising four bedrooms with an ensuite and family bathroom, lounge, kitchen, dining room, study and utility room. Planning reference is 24/00706/FUL and was granted by East Cambridgeshire District Council on 4/2/25.
Please note there are certain standard conditions that can be clarified via the planning portal or on request from the agent. The plot is subject to a Community Infrastructure Levy.
Mains water and electricity are available at Bells Drove, the purchaser should investigate the exact location and capacity of these services prior to purchase.
Ofcom advises that EE and O2 provide the best mobile coverage with good availability outdoors and limited availability indoors.
Ofcom advises that Standard and Superfast broadband is available with a highest available download speed of 80Mbps.
Brochures
Property BrochureBells Drove, Littleport, CB6
NEAREST STATIONS
Distances are straight line measurements from the centre of the postcode- Manea Station3.4 miles
- Littleport Station4.0 miles
Notes
Disclaimer - Property reference 645df8cb-4fc8-484a-ae51-a11cf67d3467. The information displayed about this property comprises a property advertisement. Rightmove.co.uk makes no warranty as to the accuracy or completeness of the advertisement or any linked or associated information, and Rightmove has no control over the content. This property advertisement does not constitute property particulars. The information is provided and maintained by Richard Booth Estate Agents Ltd, Ely. Please contact the selling agent or developer directly to obtain any information which may be available under the terms of The Energy Performance of Buildings (Certificates and Inspections) (England and Wales) Regulations 2007 or the Home Report if in relation to a residential property in Scotland.
Map data ©OpenStreetMap contributors.




