Severn View Terrace, Pentwyn, Abersychan

- PROPERTY TYPE
Terraced
- BEDROOMS
3
- BATHROOMS
1
- SIZE
1,002 sq ft
93 sq m
- TENUREDescribes how you own a property. There are different types of tenure - freehold, leasehold, and commonhold.Read more about tenure in our glossary page.
Freehold
Description
** No Chain
** Three Bedrooms
** Two Reception Rooms
** Newly renovated spacious Kitchen
** Utility area
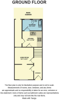
From the entrance hallway there are doors accessing two reception rooms ideally set out as a lounge and dining room followed by access to the kitchen. From the kitchen one can access the utility area and downstairs bathroom room with shower over bath, wc and wash basin.
The kitchen has been newly fitted and features an integral gas hob with electric oven.
First floor has three good size double bedrooms with the main bedroom being to the front of the property. The front bedroom benefits from two windows and may lend itself to reconfiguration to create a further (fourth) bedroom with relative ease.
The property benefits from gas central heating and double glazing throughout.
To the rear of the property there is bin store area and ample rear parking laid with stone shingle.
The front of the property has a pleasant aspect with footpath access and public grass area lined with a dense row of trees and greenery which is both attractive and facilities privacy.
We consider the property to be competitively priced given the position, location and good condition. We anticipate a prompt sale and encourage interested parties to contact the Harvey Bowes office to arrange a viewing.
Brochures
Severn View Terrace, Pentwyn, AbersychanBrochure- COUNCIL TAXA payment made to your local authority in order to pay for local services like schools, libraries, and refuse collection. The amount you pay depends on the value of the property.Read more about council Tax in our glossary page.
- Band: B
- PARKINGDetails of how and where vehicles can be parked, and any associated costs.Read more about parking in our glossary page.
- Rear
- GARDENA property has access to an outdoor space, which could be private or shared.
- Ask agent
- ACCESSIBILITYHow a property has been adapted to meet the needs of vulnerable or disabled individuals.Read more about accessibility in our glossary page.
- Ask agent
Energy performance certificate - ask agent
Severn View Terrace, Pentwyn, Abersychan
Add an important place to see how long it'd take to get there from our property listings.
__mins driving to your place
Get an instant, personalised result:
- Show sellers you’re serious
- Secure viewings faster with agents
- No impact on your credit score
Your mortgage
Notes
Staying secure when looking for property
Ensure you're up to date with our latest advice on how to avoid fraud or scams when looking for property online.
Visit our security centre to find out moreDisclaimer - Property reference 34195871. The information displayed about this property comprises a property advertisement. Rightmove.co.uk makes no warranty as to the accuracy or completeness of the advertisement or any linked or associated information, and Rightmove has no control over the content. This property advertisement does not constitute property particulars. The information is provided and maintained by Harvey Bowes, Newport. Please contact the selling agent or developer directly to obtain any information which may be available under the terms of The Energy Performance of Buildings (Certificates and Inspections) (England and Wales) Regulations 2007 or the Home Report if in relation to a residential property in Scotland.
*This is the average speed from the provider with the fastest broadband package available at this postcode. The average speed displayed is based on the download speeds of at least 50% of customers at peak time (8pm to 10pm). Fibre/cable services at the postcode are subject to availability and may differ between properties within a postcode. Speeds can be affected by a range of technical and environmental factors. The speed at the property may be lower than that listed above. You can check the estimated speed and confirm availability to a property prior to purchasing on the broadband provider's website. Providers may increase charges. The information is provided and maintained by Decision Technologies Limited. **This is indicative only and based on a 2-person household with multiple devices and simultaneous usage. Broadband performance is affected by multiple factors including number of occupants and devices, simultaneous usage, router range etc. For more information speak to your broadband provider.
Map data ©OpenStreetMap contributors.






