
Everton Road, Hordle, Lymington, SO41

- PROPERTY TYPE
Terraced
- BEDROOMS
2
- BATHROOMS
2
- SIZE
Ask agent
- TENUREDescribes how you own a property. There are different types of tenure - freehold, leasehold, and commonhold.Read more about tenure in our glossary page.
Freehold
Key features
- NEW BUILD HOME
- BUY NOW, MOVE IN JAN 26
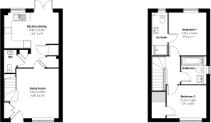
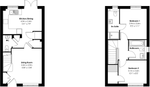
- Two Bedroom Terraced
- Bright & Airy Open-Plan Kitchen/Dining Area
- Two Double Bedrooms
- Two Parking Spaces
Description
JUST LAUNCHED - Charming and contemporary, this two-bedroom terraced home offers a light-filled kitchen and dining area with an inviting living room on the ground floor. Upstairs, the main bedroom enjoys a private en-suite, complemented by a second double bedroom and family bathroom perfectly balancing comfort and practicality. Two parking spaces.
INTRODUCTION TO SHEPHERDS GREEN
Tucked away in the sought-after village of Hordle, just moments from the charming harbour town of Lymington, Shepherds Green is a fresh take on countryside and coastal living.
This exclusive Bargate development brings together the best of all worlds, elegant architecture, thoughtful landscaping, and a true connection to nature in a collection of beautifully crafted 2, 3 and 4 bedroom homes.
Every home at Shepherds Green is designed to elevate the everyday. From light-filled open-plan spaces to luxurious finishes and energy-efficient technology, these homes don’t just meet modern expectations they exceed them.
Whether you’re a growing family, a discerning downsizer, or searching for your forever home on the edge of the New Forest, this is a place where quality, comfort and countryside come together in perfect harmony.
THE SITUATION
Shepherds Green sits on the edge of the New Forest National Park and minutes from the Solent coast. Enjoy woodland walks, open countryside and coastal air on your doorstep.
The peaceful village of Hordle is close to the vibrant harbour town of Lymington, with its sailing clubs, cafés and shops.
Excellent schools and strong transport links to Southampton, Bournemouth and London make this an ideal location for families and professionals seeking a rural setting with city access.
KITCHEN SPECIFICATION
Kitchen Furniture
- Designer wall and floor units
- 40mm Laminate worktops with complimentary upstands
- Under cabinet LED spotlights to wall units
Integrated Appliances
- Neff ovens, extractors and induction hobs
- Indesit fridge/freezers and dishwashers
BATHROOM SPECIFICATION
Basins, Baths & WC
- Roca suites to all property types
Wall & Floor Tiling
- Porcelanosa floor tiling to all WCs, ensuites and bathrooms
- Porcelanosa ceramic wall tiling
SUPERIOR SPECIFICATION
Internal Lighting
- Lumi downlighting to kitchen area, bathroom, ensuite, dressing room and WCs, where applicable
- Pendant lighting to all remaining rooms
BT Points & Satellite
- Pre-wired for BT Fibre ready for Openreach
- Pre-wired for Sky Q at multimedia plate
Alarms
- Smoke, heat and carbon monoxide detectors fitted
Heating System
- Daikin air source heat pump
Radiators
- Towelrads compact radiator throughout all homes
- Towel warmers to all bathrooms, ensuite and WC
Heating Control
- Underfloor heating to be zoned and individually controlled by Towelrads smart thermostats
- Radiators controlled by Honeywell T6 smart thermostats
External Finishes
- Sensor lighting to the front of all homes
- Waterproof double sockets fitted to the front and rear of all homes
- Photovoltaic solar panels fitted to all homes
- 32AMP electric vehicle charger fitted to all homes
ADDITIONAL INFORMATION
- Energy Performance Rating: B
- Council Tax Band: TBC
- Maintenance Charge: £402 per annum
- 10 Year Warranty with Premier
- Broadband: TBC
BARGATE CREDENTIALS
Bargate creates high-quality, energy-efficient homes across some of Hampshire’s most sought-after locations.
Each development is carefully planned with generous living spaces, flexible layouts and timeless finishes, combining craftsmanship with modern design and comprehensive warranties for peace of mind.
From first enquiry to moving in, the Bargate team offers personal support at every stage. With a strong focus on sustainability and community, Bargate not only builds exceptional homes but also enhances the landscapes and neighbourhoods around them, delivering lasting value for residents and future generations.
BARGATE’S GREEN ETHOS & NATURE HUB
At Bargate, we believe new communities should grow in harmony with nature. That’s why every development is carefully designed to protect and enhance the local environment — from preserving mature trees to creating dedicated Nature Hubs. These vibrant spaces support British wildlife by providing food, shelter, and safe passage for birds, insects, hedgehogs, and pollinators, helping nature thrive alongside our homes.
Brochures
Brochure 1- COUNCIL TAXA payment made to your local authority in order to pay for local services like schools, libraries, and refuse collection. The amount you pay depends on the value of the property.Read more about council Tax in our glossary page.
- Band: TBC
- PARKINGDetails of how and where vehicles can be parked, and any associated costs.Read more about parking in our glossary page.
- Driveway,EV charging
- GARDENA property has access to an outdoor space, which could be private or shared.
- Ask agent
- ACCESSIBILITYHow a property has been adapted to meet the needs of vulnerable or disabled individuals.Read more about accessibility in our glossary page.
- Ask agent
Energy performance certificate - ask agent
Everton Road, Hordle, Lymington, SO41
Add an important place to see how long it'd take to get there from our property listings.
__mins driving to your place
Get an instant, personalised result:
- Show sellers you’re serious
- Secure viewings faster with agents
- No impact on your credit score
Your mortgage
Notes
Staying secure when looking for property
Ensure you're up to date with our latest advice on how to avoid fraud or scams when looking for property online.
Visit our security centre to find out moreDisclaimer - Property reference 29496812. The information displayed about this property comprises a property advertisement. Rightmove.co.uk makes no warranty as to the accuracy or completeness of the advertisement or any linked or associated information, and Rightmove has no control over the content. This property advertisement does not constitute property particulars. The information is provided and maintained by Spencers, Lymington. Please contact the selling agent or developer directly to obtain any information which may be available under the terms of The Energy Performance of Buildings (Certificates and Inspections) (England and Wales) Regulations 2007 or the Home Report if in relation to a residential property in Scotland.
*This is the average speed from the provider with the fastest broadband package available at this postcode. The average speed displayed is based on the download speeds of at least 50% of customers at peak time (8pm to 10pm). Fibre/cable services at the postcode are subject to availability and may differ between properties within a postcode. Speeds can be affected by a range of technical and environmental factors. The speed at the property may be lower than that listed above. You can check the estimated speed and confirm availability to a property prior to purchasing on the broadband provider's website. Providers may increase charges. The information is provided and maintained by Decision Technologies Limited. **This is indicative only and based on a 2-person household with multiple devices and simultaneous usage. Broadband performance is affected by multiple factors including number of occupants and devices, simultaneous usage, router range etc. For more information speak to your broadband provider.
Map data ©OpenStreetMap contributors.





