
2 bedroom park home for sale
Deanland Wood Park, Golden Cross, Hailsham

- PROPERTY TYPE
Park Home
- BEDROOMS
2
- BATHROOMS
2
- SIZE
Ask agent
- TENUREDescribes how you own a property. There are different types of tenure - freehold, leasehold, and commonhold.Read more about tenure in our glossary page.
Freehold
Key features
- CHAIN FREE
- Two Double Bedrooms
- En-Suite To Principle Bedroom
- Seperate Lounge
- Wrap Around Garden
- Driveway Leading To Garage
- Oil Fired Central Heating
- Modernisation Required
- Viewing Essential
- Spacious Kitchen
Description
Stevens and Carter are delighted to bring to market this two bedroom, two bathroom park home. Internally, the home affords a spacious kitchen, dining room and a large lounge with bay fronted windows. Externally, this home further benefits a driveway leading to garage, a wrap around garden sat on a generous plot.
Deanland Wood Park is one of the South-East’s premier residential park home estates, offering a secure and sociable lifestyle for the over-50s community. Residents enjoy access to a six-lane competition bowling green, a country pub and restaurant, a convenience store, and a social hall, all set within well-maintained grounds. The park is also well-connected, with the Wealden Explorer 143 bus service stopping within the park, providing convenient links to Hailsham, Uckfield, and surrounding areas.
Viewing is highly recommended to appreciate this home and its fantastic location.
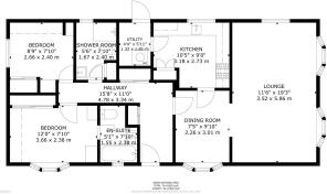
Hallway - 4.78 x 3.34 ( 15'8" x 10'11" ) -
Dining Room - 2.26 x 3.01 (7'4" x 9'10") -
Lounge - 3.52 x 5.86 (11'6" x 19'2") -
Kitchen - 3.18 x 2.73 (10'5" x 8'11") -
Utility - 1.32 x 1.81 (4'3" x 5'11") -
Shower Room - 1.67 x 2.4 (5'5" x 7'10") -
Bedroom One - 3.66 x 2.38 (12'0" x 7'9") -
Bedroom Two - 2.66 x 2.4 (8'8" x 7'10") -
En-Suite - 1.55 x 2.38 (5'1" x 7'9") -
Driveway Leading To Garage -
Wrap Around Garden -
Brochures
Deanland Wood Park, Golden Cross, Hailsham- COUNCIL TAXA payment made to your local authority in order to pay for local services like schools, libraries, and refuse collection. The amount you pay depends on the value of the property.Read more about council Tax in our glossary page.
- Band: A
- PARKINGDetails of how and where vehicles can be parked, and any associated costs.Read more about parking in our glossary page.
- Yes
- GARDENA property has access to an outdoor space, which could be private or shared.
- Yes
- ACCESSIBILITYHow a property has been adapted to meet the needs of vulnerable or disabled individuals.Read more about accessibility in our glossary page.
- Ask agent
Energy performance certificate - ask agent
Deanland Wood Park, Golden Cross, Hailsham
Add an important place to see how long it'd take to get there from our property listings.
__mins driving to your place



Notes
Staying secure when looking for property
Ensure you're up to date with our latest advice on how to avoid fraud or scams when looking for property online.
Visit our security centre to find out moreDisclaimer - Property reference 34197390. The information displayed about this property comprises a property advertisement. Rightmove.co.uk makes no warranty as to the accuracy or completeness of the advertisement or any linked or associated information, and Rightmove has no control over the content. This property advertisement does not constitute property particulars. The information is provided and maintained by Stevens & Carter, Hailsham. Please contact the selling agent or developer directly to obtain any information which may be available under the terms of The Energy Performance of Buildings (Certificates and Inspections) (England and Wales) Regulations 2007 or the Home Report if in relation to a residential property in Scotland.
*This is the average speed from the provider with the fastest broadband package available at this postcode. The average speed displayed is based on the download speeds of at least 50% of customers at peak time (8pm to 10pm). Fibre/cable services at the postcode are subject to availability and may differ between properties within a postcode. Speeds can be affected by a range of technical and environmental factors. The speed at the property may be lower than that listed above. You can check the estimated speed and confirm availability to a property prior to purchasing on the broadband provider's website. Providers may increase charges. The information is provided and maintained by Decision Technologies Limited. **This is indicative only and based on a 2-person household with multiple devices and simultaneous usage. Broadband performance is affected by multiple factors including number of occupants and devices, simultaneous usage, router range etc. For more information speak to your broadband provider.
Map data ©OpenStreetMap contributors.





