Sollershott West, Letchworth Garden City

- PROPERTY TYPE
 Detached
- BEDROOMS
 5
- BATHROOMS
 3
- SIZE
 Ask agent
- TENUREDescribes how you own a property. There are different types of tenure - freehold, leasehold, and commonhold.Read more about tenure in our glossary page.
 Freehold
Description
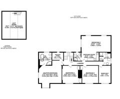
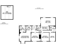
The Property - This very handsome detached house dates from the early years of the Garden City and was built in the "Arts & Crafts" style to a design by CM Crickmer, one of the leading architects of the Garden City movement. It retains many original attractive features and all of its charm and character, whilst having been extended and updated to provide outstanding family accommodation. The flexible ground floor provides five reception rooms, of which the family room and sitting room are open-plan with each other, with the drawing and dining rooms being semi open-plan. The family, dining and drawing rooms all have attractive fireplaces, with that in the drawing room being in the style of an inglenook. A fine modern kitchen/breakfast room and a spacious garden room complete the principal accommodation on the ground floor. The garden room was originally built to house an indoor swim spa pool and, although a properly engineered floor now covers this, it could be reinstated if required.
The first floor is equally impressive with a master suite comprising bedroom, dressing room and a most appealingly fitted bathroom with both shower and bath. A second suite comprises a remarkably spacious bedroom with en suite dressing and shower rooms. The reaming three double bedrooms are served by the family bathroom, which also boasts both shower and bath.
Constructed of cavity brickwork, the extensions being of insulated cavity brickwork, under a pitched tiled roof, the house benefits from uPVC double-glazed windows and central heating for all but the garden room is supplied by the gas fired boiler in the utility room. A second gas fired boiler is located in a plant room beneath the garden room, which serves the radiators in the garden room.
The Outside - The house is set some 151' (46.1m) back from the road in a fine plot extending to 0.48 acre and measuring approximately 260' by 78' (79.3m x 23.97m) overall. It is unusual in that the south facing front garden enjoys virtually total privacy and is laid to lawn with a paved terrace adjoining the house, herbaceous borders and numerous shrubs and trees including magnolia, Japanese acers, clipped yews and mature specimen conifers. Wisteria adorns the front of the house. A sweeping tarmac driveway leads past the house to the herring-bone brick paved courtyard in front of the detached double garage. Driveway and courtyard provide ample off-street parking.
The rear garden has a minimum depth of some 46' (14.2m) and is laid to lawn with an area of decking adjoining the garden room, herbaceous borders and ornamental shrubs, conifers and trees, including a number of fine silver birches. Large timber shed/workshop.
The Location - Set within the Letchworth Conservation Area, Sollershott West is one of the most highly regarded residential roads in the town, located just over half a mile to the south of the town centre and within three-quarters of a mile of the mainline railway station. Letchworth Garden City is on the London to Cambridge mainline and regular services run throughout the day. The fastest services to London King's Cross take just 29 minutes and to Cambridge is 26 minutes in the other direction. Junction 9 on the A1(M) is 1.9 mile drive away.
Designed in the early 20th Century to combine the benefits of town and country, Letchworth Garden City was the world’s first example of this concept and succeeds to this day in achieving its aim. The town provides excellent schools, shops, green open spaces and other leisure facilities. The house is very well located for easy access to schools, the St Christopher School, St Francis' College, St Thomas More RC Primary School and the Highfield School all being within half a mile.
Services - MAINS water, sewerage, gas and electricity are connected to the property.
BROADBAND: A choice of providers with claimed download speeds of up to 239 Mbps.
MOBILE SIGNAL: Most providers claim up to 4G coverage, some claim to provide 5G.
The Letchworth Garden City Heritage Foundation - To maintain the integrity of the Garden City concept and design, properties are subject to the additional planning requirements of the Heritage Foundation.
Tel:
Brochures
Sollershott West, Letchworth Garden City- COUNCIL TAXA payment made to your local authority in order to pay for local services like schools, libraries, and refuse collection. The amount you pay depends on the value of the property.Read more about council Tax in our glossary page.
 - Band: G
 - PARKINGDetails of how and where vehicles can be parked, and any associated costs.Read more about parking in our glossary page.
 - Yes
 - GARDENA property has access to an outdoor space, which could be private or shared.
 - Yes
 - ACCESSIBILITYHow a property has been adapted to meet the needs of vulnerable or disabled individuals.Read more about accessibility in our glossary page.
 - Ask agent
 
Sollershott West, Letchworth Garden City
Add an important place to see how long it'd take to get there from our property listings.
__mins driving to your place
Get an instant, personalised result:
- Show sellers you’re serious
 - Secure viewings faster with agents
 - No impact on your credit score
 


Your mortgage
Notes
Staying secure when looking for property
Ensure you're up to date with our latest advice on how to avoid fraud or scams when looking for property online.
Visit our security centre to find out moreDisclaimer - Property reference 34197951. The information displayed about this property comprises a property advertisement. Rightmove.co.uk makes no warranty as to the accuracy or completeness of the advertisement or any linked or associated information, and Rightmove has no control over the content. This property advertisement does not constitute property particulars. The information is provided and maintained by Charter Whyman, Letchworth. Please contact the selling agent or developer directly to obtain any information which may be available under the terms of The Energy Performance of Buildings (Certificates and Inspections) (England and Wales) Regulations 2007 or the Home Report if in relation to a residential property in Scotland.
*This is the average speed from the provider with the fastest broadband package available at this postcode. The average speed displayed is based on the download speeds of at least 50% of customers at peak time (8pm to 10pm). Fibre/cable services at the postcode are subject to availability and may differ between properties within a postcode. Speeds can be affected by a range of technical and environmental factors. The speed at the property may be lower than that listed above. You can check the estimated speed and confirm availability to a property prior to purchasing on the broadband provider's website. Providers may increase charges. The information is provided and maintained by Decision Technologies Limited. **This is indicative only and based on a 2-person household with multiple devices and simultaneous usage. Broadband performance is affected by multiple factors including number of occupants and devices, simultaneous usage, router range etc. For more information speak to your broadband provider.
Map data ©OpenStreetMap contributors.





