Frobisher Way, Riverview Park, Gravesend

- PROPERTY TYPE
Semi-Detached
- BEDROOMS
3
- BATHROOMS
1
- SIZE
Ask agent
- TENUREDescribes how you own a property. There are different types of tenure - freehold, leasehold, and commonhold.Read more about tenure in our glossary page.
Freehold
Description
3-BED SEMI-DETACHED FAMILY HOME FOR SALE
OFF-ROAD PARKING TO FRONT & GARAGE EN-BLOC
SOUGHT AFTER LOCATION: RIVERVIEW PARK AREA
LOW MAINTENANCE REAR PAVED GARDEN
Heritage Estates are delighted to offer for sale this three-bedroom, semi-detached family home with off-road parking and garage en bloc situated in the sought after Riverview Park area of Gravesend. The property comprises: a porch; hallway; lounge/dining room; garden room with access to low maintenance rear garden; and kitchen on the ground floor; there are three double bedrooms and family bathroom on the first floor.
The property is conveniently located and within walking distance of many local amenities. Riverview Park has excellent schools close by and local shops. Valley Drive has direct access onto the A2 leading to the M2, M25 and M20 motorways; Ebbsfleet International train station offers the High Speed Link into London. Bluewater Shopping Centre is close by. Gravesend Town Centre and Gravesend train station are a short drive or bus trip away. Cascades Leisure Centre and the Cycle Path offer exercise and leisure facilities.
Front View of Property
Low wall surround. Driveway to front and side. UPVC double glazed entrance door to porch.
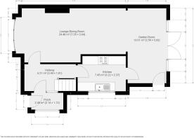
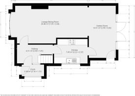
Porch 1.12m (3' 8") x 2.14m (7' 0")
UPVC double glazed window to side. Laminate flooring. Multipane door to hallway.
Hallway 1.81m (5' 11") x 3.46m (11' 4")
Radiator. Laminate flooring. Access to first floor via stairs.
Lounge/Dining Room 3.69m (12' 1") x 7.00m (23' 0")
Large open space with curved double glazed window to front. Radiator. Carpet. Opening to garden room.
Garden Room 5.03m (16' 6") x 2.59m (8' 6")
Double glazed patio doors to rear. Double glazed door to side. Two radiators. Access to garden.
Kitchen 2.38m (7' 10") x 3.22m (10' 7")
UPVC double glazed window to side. Laminate flooring. Fitted kitchen with black wall and base units and spaces for appliances. Grey work surfaces with inset stainless steel 1½ bowl sink and drainer.
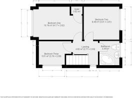
First Floor Landing 2.00m (6' 7") x 2.14m (7' 0")
Double glazed window to side. Light brown carpet. Access to loft via hatch.
Bedroom One 2.81m (9' 3") x 3.70m (12' 2")
Double glazed window to front. Beige carpet. Airing cupboard. Double room. Radiator.
Bedroom Two 2.81m (9' 3") x 2.90m (9' 6")
Double glazed window to rear. Radiator. Photo to follow.
Bedroom Three 2.00m (6' 7") x 2.76m (9' 1")
Double glazed window to side. Blue carpet. Radiator. Double room.
Bathroom 2.00m (6' 7") x 1.69m (5' 7")
UPVC double glazed opaque window to rear. White corner bath with mixer tap and shower over. WC and pedestal wash-hand basin. Radiator. White ceramic floor tiles. Wall tiles.
Rear Garden
Paved garden. Paved side access. Rear gate leads to alley way leading to garage block.
Further Information
Council Tax: Band D (Approx. £2,313 annually)
Local Authority: Gravesham Borough Council
- COUNCIL TAXA payment made to your local authority in order to pay for local services like schools, libraries, and refuse collection. The amount you pay depends on the value of the property.Read more about council Tax in our glossary page.
- Ask agent
- PARKINGDetails of how and where vehicles can be parked, and any associated costs.Read more about parking in our glossary page.
- Yes
- GARDENA property has access to an outdoor space, which could be private or shared.
- Yes
- ACCESSIBILITYHow a property has been adapted to meet the needs of vulnerable or disabled individuals.Read more about accessibility in our glossary page.
- Ask agent
Frobisher Way, Riverview Park, Gravesend
Add an important place to see how long it'd take to get there from our property listings.
__mins driving to your place
Get an instant, personalised result:
- Show sellers you’re serious
- Secure viewings faster with agents
- No impact on your credit score
Your mortgage
Notes
Staying secure when looking for property
Ensure you're up to date with our latest advice on how to avoid fraud or scams when looking for property online.
Visit our security centre to find out moreDisclaimer - Property reference HER1RS1890. The information displayed about this property comprises a property advertisement. Rightmove.co.uk makes no warranty as to the accuracy or completeness of the advertisement or any linked or associated information, and Rightmove has no control over the content. This property advertisement does not constitute property particulars. The information is provided and maintained by Heritage Estates, Southfleet. Please contact the selling agent or developer directly to obtain any information which may be available under the terms of The Energy Performance of Buildings (Certificates and Inspections) (England and Wales) Regulations 2007 or the Home Report if in relation to a residential property in Scotland.
*This is the average speed from the provider with the fastest broadband package available at this postcode. The average speed displayed is based on the download speeds of at least 50% of customers at peak time (8pm to 10pm). Fibre/cable services at the postcode are subject to availability and may differ between properties within a postcode. Speeds can be affected by a range of technical and environmental factors. The speed at the property may be lower than that listed above. You can check the estimated speed and confirm availability to a property prior to purchasing on the broadband provider's website. Providers may increase charges. The information is provided and maintained by Decision Technologies Limited. **This is indicative only and based on a 2-person household with multiple devices and simultaneous usage. Broadband performance is affected by multiple factors including number of occupants and devices, simultaneous usage, router range etc. For more information speak to your broadband provider.
Map data ©OpenStreetMap contributors.






