Hill Garth Road, Tattenhall, CH3

- PROPERTY TYPE
Detached
- BEDROOMS
3
- BATHROOMS
3
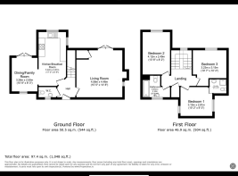
- SIZE
Ask agent
- TENUREDescribes how you own a property. There are different types of tenure - freehold, leasehold, and commonhold.Read more about tenure in our glossary page.
Freehold
Key features
- Offered for sale with no ongoing chain
- Link detached home set on a corner plot
- Highly desirable village location close to Chester
- Driveway parking for at least eight vehicles
- Detached double garage with electric roller doors
- Elegant finish with wooden flooring and plantation shutters
- Three double bedrooms, en-suite to the principal
- Uninterrupted countryside views to the rear
- Expansive wraparound gardens with complete privacy
Description
Occupying the largest and most private plot on this exclusive development, this superb link detached home combines elegant interiors with truly outstanding outside space. Tucked away in the far corner, the property enjoys wraparound gardens, uninterrupted countryside views and a sense of seclusion that is rarely found in such a convenient village location.
On arrival, the property makes a strong impression with its generous frontage, extensive driveway providing parking for at least eight vehicles, and a detached double garage with electric roller doors. The position, privacy and plot size make this a unique offering within the development.
The lounge is a warm and inviting space, beautifully finished with high-quality wooden flooring and plantation shutters that add both charm and privacy. A feature fireplace provides a focal point, creating a cosy yet elegant atmosphere, while dual-aspect windows and French doors allow natural light to flood the room and provide a seamless connection to the gardens. This is a space that works equally well for quiet family evenings as it does for entertaining, with a layout that feels both spacious and comfortable.
The kitchen is designed with both style and practicality in mind, fitted with an extensive range of modern units complemented by marble-effect worktops and sleek tiled splashbacks. High-quality integrated appliances, including an oven, gas hob and extractor, combine with well-planned storage to create a kitchen that is as functional as it is attractive. Twin windows with plantation shutters frame views over the garden, while the use of wooden flooring throughout ties the space seamlessly into the rest of the home.
The adjoining dining area is a perfect everyday family hub, large enough to accommodate a full-size dining table and finished with a calm, neutral décor that enhances its welcoming feel. French doors lead directly out to the patio and garden beyond, making this a wonderful spot for summer entertaining, while inside, the layout provides a natural flow for both casual dining and more formal occasions. The sense of space and light is a recurring theme, making this room a true heart of the home where family and friends can gather with ease.
Upstairs, all three bedrooms are comfortable doubles – a real rarity in modern homes. The principal bedroom benefits from its own en-suite shower room, while the further two double bedrooms are served by a well-appointed family bathroom. Each room is flooded with natural light and enjoys attractive views, with the rear bedrooms overlooking open fields. The finish is modern, bright and welcoming throughout, with ample storage and stylish fittings.
It is the outside space that truly sets this home apart. Sitting on a substantial corner plot, the wraparound gardens extend well beyond the norm, offering scope for multiple uses – from outdoor entertaining and children’s play areas to further landscaping, vegetable growing, or even the addition of outbuildings (subject to planning). The rear boundary opens directly onto unspoilt countryside, providing uninterrupted, far-reaching views across rolling fields. With no properties behind, the gardens feel wonderfully private and create a tranquil setting for both family life and entertaining.
A sweeping driveway offers parking for at least eight vehicles, making it ideal for households with multiple cars or visiting guests. In addition, the detached double garage is fitted with twin electric roller doors, power and lighting, providing secure storage or workshop space.
Despite its private position, the property is just a short walk from the centre of Tattenhall – a charming and highly regarded village with a vibrant community. Everyday amenities include shops, a post office, doctor’s surgery, sports facilities, restaurants, pubs and an OFSTED ‘Outstanding’ rated primary school. For commuters, Chester is just 9 miles away, while excellent road links connect to the A41, A51, M53 and M56, making the North West’s key commercial hubs easily accessible.
Disclaimer
Whilst we make enquiries with the Seller to ensure the information provided is accurate, Yopa makes no representations or warranties of any kind with respect to the statements contained in the particulars which should not be relied upon as representations of fact. All representations contained in the particulars are based on details supplied by the Seller. Your Conveyancer is legally responsible for ensuring any purchase agreement fully protects your position. Please inform us if you become aware of any information being inaccurate.
Money Laundering Regulations
Should a purchaser(s) have an offer accepted on a property marketed by Yopa, they will need to undertake an identification check and asked to provide information on the source and proof of funds. This is done to meet our obligation under Anti Money Laundering Regulations (AML) and is a legal requirement. We use a specialist third party service together with an in-house compliance team to verify your information. The cost of these checks is £82.50 +VAT per purchase, which is paid in advance, when an offer is agreed and prior to a sales memorandum being issued. This charge is non-refundable under any circumstances.
- COUNCIL TAXA payment made to your local authority in order to pay for local services like schools, libraries, and refuse collection. The amount you pay depends on the value of the property.Read more about council Tax in our glossary page.
- Ask agent
- PARKINGDetails of how and where vehicles can be parked, and any associated costs.Read more about parking in our glossary page.
- Yes
- GARDENA property has access to an outdoor space, which could be private or shared.
- Yes
- ACCESSIBILITYHow a property has been adapted to meet the needs of vulnerable or disabled individuals.Read more about accessibility in our glossary page.
- Ask agent
Energy performance certificate - ask agent
Hill Garth Road, Tattenhall, CH3
Add an important place to see how long it'd take to get there from our property listings.
__mins driving to your place
Get an instant, personalised result:
- Show sellers you’re serious
- Secure viewings faster with agents
- No impact on your credit score

Your mortgage
Notes
Staying secure when looking for property
Ensure you're up to date with our latest advice on how to avoid fraud or scams when looking for property online.
Visit our security centre to find out moreDisclaimer - Property reference 466192. The information displayed about this property comprises a property advertisement. Rightmove.co.uk makes no warranty as to the accuracy or completeness of the advertisement or any linked or associated information, and Rightmove has no control over the content. This property advertisement does not constitute property particulars. The information is provided and maintained by Yopa, North West & Midlands. Please contact the selling agent or developer directly to obtain any information which may be available under the terms of The Energy Performance of Buildings (Certificates and Inspections) (England and Wales) Regulations 2007 or the Home Report if in relation to a residential property in Scotland.
*This is the average speed from the provider with the fastest broadband package available at this postcode. The average speed displayed is based on the download speeds of at least 50% of customers at peak time (8pm to 10pm). Fibre/cable services at the postcode are subject to availability and may differ between properties within a postcode. Speeds can be affected by a range of technical and environmental factors. The speed at the property may be lower than that listed above. You can check the estimated speed and confirm availability to a property prior to purchasing on the broadband provider's website. Providers may increase charges. The information is provided and maintained by Decision Technologies Limited. **This is indicative only and based on a 2-person household with multiple devices and simultaneous usage. Broadband performance is affected by multiple factors including number of occupants and devices, simultaneous usage, router range etc. For more information speak to your broadband provider.
Map data ©OpenStreetMap contributors.




