
3 bedroom detached house for sale
Centre Drive, Newmarket

- PROPERTY TYPE
Detached
- BEDROOMS
3
- SIZE
Ask agent
- TENUREDescribes how you own a property. There are different types of tenure - freehold, leasehold, and commonhold.Read more about tenure in our glossary page.
Freehold
Key features
- Modern Detached Family Home
- Generous Sized Rooms Throughout
- Three Good Sized Rooms
- Enclosed Rear Garden
- Off-Road Parking & Garage
- Good Location
Description
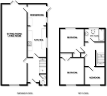
Cleverly extended and offering generous size rooms throughout, this property offers impressive 36ft long living room, dining room, kitchen, cloakroom, three good size bedrooms and family bathroom.
Externally the property offers a mature and fully enclosed rear garden and garage.
Accommodation Details: - With storm canopy over front entrance door.
Entrance Hall - With laid wooden style flooring, radiator, staircase rising to the first floor and door though to the:
Sitting/Living Room - 11.05m x 3.40m max 2.84m min (36'3" x 11'1" max 9' - Spacious sitting/living room with TV connection point, radiators, laid wooden style flooring, window to the front aspect and sliding glass doors out to the rear garden.
Kitchen - Modern kitchen fitted with a range of matching eye and base level storage units with wooden working surfaces over, wooden upstands, inset ceramic sink and drainer with mixer tap over, range gas cooker with extractor hood above, integrated dishwasher, space for a fridge/freezer and washing machine. Tiled flooring, window to the side aspect and opening through to the:
Dining Room - With tiled flooring, radiator, window to the side and rear aspect and side external door. Door through to the:
Wc - Low level WC, hand basin and obscured window to the front aspect.
First Floor Landing - With access and doors to bedrooms and bathroom.
Bedroom 1 - 3.71m x 2.92m (12'2" x 9'6") - Double bedroom with storage cupboards, radiator and window to the front aspect.
Bedroom 2 - 2.95m x 2.79m (9'8" x 9'1") - Double bedroom with fitted sliding door wardrobes, radiator and window to the rear aspect.
Bedroom 3 - 2.77m x 2.51m (9'1" x 8'2") - With radiator and window to the rear aspect.
Bathroom - Three piece bathroom suite comprising a concealed WC, hand basin with vanity cupboard under, panelled p-shaped bath with wall mounted shower, tiled walls and flooring, wall mounted LED mirror and obscured window to the rear aspect.
Outside - Rear - Fully enclosed with patio area and flower borders to sides, picket fence opening to secondary garden laid to lawn with flower borders and beds containing mature shrubs, plants and trees. Timber shed
Outside - Front - With gravel driveway leading to garage with up and over style door. power and lighting. Mature shrubs and plants and remainder of front garden laid to lawn with pathway to the front of the house.
Garage - Metal up and over door. Power & lighting.
Property Information: - EPC - D
Tenure - Freehold
Council Tax Band - D (East Cambs)
Property Type - Detached House
Property Construction – Standard
Number & Types of Room – Please refer to the floorplan
Square Meters - 104 SQM
Parking – Driveway & Garage
Electric Supply - Mains
Water Supply – Mains
Sewerage - Mains
Heating sources - Gas
Broadband Connected - tbc
Broadband Type – Ultrafast available, 1800Mbps download, 220Mbps upload
Mobile Signal/Coverage – Ofcom advise likely/limited on all networks
Rights of Way, Easements, Covenants – None that the vendor is aware of
Brochures
Centre Drive, Newmarket- COUNCIL TAXA payment made to your local authority in order to pay for local services like schools, libraries, and refuse collection. The amount you pay depends on the value of the property.Read more about council Tax in our glossary page.
- Ask agent
- PARKINGDetails of how and where vehicles can be parked, and any associated costs.Read more about parking in our glossary page.
- Yes
- GARDENA property has access to an outdoor space, which could be private or shared.
- Yes
- ACCESSIBILITYHow a property has been adapted to meet the needs of vulnerable or disabled individuals.Read more about accessibility in our glossary page.
- Ask agent
Centre Drive, Newmarket
Add an important place to see how long it'd take to get there from our property listings.
__mins driving to your place
Get an instant, personalised result:
- Show sellers you’re serious
- Secure viewings faster with agents
- No impact on your credit score



Your mortgage
Notes
Staying secure when looking for property
Ensure you're up to date with our latest advice on how to avoid fraud or scams when looking for property online.
Visit our security centre to find out moreDisclaimer - Property reference 34204448. The information displayed about this property comprises a property advertisement. Rightmove.co.uk makes no warranty as to the accuracy or completeness of the advertisement or any linked or associated information, and Rightmove has no control over the content. This property advertisement does not constitute property particulars. The information is provided and maintained by Morris Armitage, Newmarket. Please contact the selling agent or developer directly to obtain any information which may be available under the terms of The Energy Performance of Buildings (Certificates and Inspections) (England and Wales) Regulations 2007 or the Home Report if in relation to a residential property in Scotland.
*This is the average speed from the provider with the fastest broadband package available at this postcode. The average speed displayed is based on the download speeds of at least 50% of customers at peak time (8pm to 10pm). Fibre/cable services at the postcode are subject to availability and may differ between properties within a postcode. Speeds can be affected by a range of technical and environmental factors. The speed at the property may be lower than that listed above. You can check the estimated speed and confirm availability to a property prior to purchasing on the broadband provider's website. Providers may increase charges. The information is provided and maintained by Decision Technologies Limited. **This is indicative only and based on a 2-person household with multiple devices and simultaneous usage. Broadband performance is affected by multiple factors including number of occupants and devices, simultaneous usage, router range etc. For more information speak to your broadband provider.
Map data ©OpenStreetMap contributors.





