
2 bedroom cottage for sale
9 The Hollows, Cound Moor, Shrewsbury, SY5 6BA

- PROPERTY TYPE
Cottage
- BEDROOMS
2
- BATHROOMS
2
- SIZE
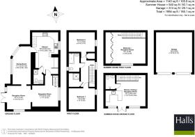
1,680 sq ft
156 sq m
- TENUREDescribes how you own a property. There are different types of tenure - freehold, leasehold, and commonhold.Read more about tenure in our glossary page.
Freehold
Key features
- Idyllic peaceful setting
- Plenty of charm and character throughout
- Great living accommodation
- 2 storey guest/summerhouse
- Private driveway and expansive mature gardens
Description
Directions - From Shrewsbury take the A458 Bridgnorth road to Cross Houses and after about 1.5 miles turn right for Cound. Follow this lane through to Upper Cound and then left at the junction. Continue for at least 1.5 miles until reaching Cound Moor. The sign post for the property will be seen on the right hand side. Turn right and the entrance is found on the left hand side.
Situation - Cound Moor is a delightful hamlet a short drive from the village of Cound, which offers a church, cricket club, tennis club and the popular Riverside Inn is just 3 miles drive away. For keen walkers and Cyclists, there are many different routes and opportunities on the doorstep of this fabulous house. Furthermore, Shrewsbury, the county town of Shropshire, is just 8 miles away.
Property - 9 The Hollows is a wonderful cottage situated in a private location, nicely tucked away with a two-storey converted building lending itself to a variety of uses such as guest accommodation/home office/studio.
The cottage itself has an entrance porch, sitting room with a multi-fuel stove leading through to the snug area with French doors leading to the garden. There is a further well proportioned reception room currently used as a dining room. The kitchen has a Rayburn, electric oven/hob and an island unit. There is also a downstairs utility room with WC.
On the first floor are two double bedrooms and a family bathroom.
The two storey converted building has a kitchen and living area with a shower room and bedroom/guest space on the first floor.
Outside - There is a driveway to a detached sectional garage, expansive lawns, plenty of mature flower borders, fruit tress, a gazebo with bbq area located next to it, which is perfect for alfresco entertaining. There is also a vegetable garden with greenhouse and further uncultivated garden.
General Remarks -
Anti-Money Laundering (Aml) Checks - We are legally obligated to undertake anti-money laundering checks on all property purchasers. Whilst we are responsible for ensuring that these checks, and any ongoing monitoring, are conducted properly; the initial checks will be handled on our behalf by a specialist company, Movebutler, who will reach out to you once your offer has been accepted. The charge for these checks is £30 (including VAT) per purchaser, which covers the necessary data collection and any manual checks or monitoring that may be required. This cost must be paid in advance, directly to Movebutler, before a memorandum of sale can be issued, and is non-refundable. We thank you for your cooperation.
Fixtures And Fittings - Only those items described in these particulars are included in the sale.
Tenure - Freehold. Purchasers must confirm via their solicitor.
Services - We understand that the property has the benefit of mains water and electric. Oil fired central heating. Drainage is provided to a private system. None of these services have been tested.
Council Tax - The property is in Council Tax band 'D' on the Shropshire Council Register.
Viewings - By appointment through Halls, 2 Barker Street, Shrewsbury, SY1 1QJ.
Brochures
Brochure - 9 The Hollows.pdf- COUNCIL TAXA payment made to your local authority in order to pay for local services like schools, libraries, and refuse collection. The amount you pay depends on the value of the property.Read more about council Tax in our glossary page.
- Band: D
- PARKINGDetails of how and where vehicles can be parked, and any associated costs.Read more about parking in our glossary page.
- Yes
- GARDENA property has access to an outdoor space, which could be private or shared.
- Yes
- ACCESSIBILITYHow a property has been adapted to meet the needs of vulnerable or disabled individuals.Read more about accessibility in our glossary page.
- Ask agent
9 The Hollows, Cound Moor, Shrewsbury, SY5 6BA
Add an important place to see how long it'd take to get there from our property listings.
__mins driving to your place
Get an instant, personalised result:
- Show sellers you’re serious
- Secure viewings faster with agents
- No impact on your credit score
Your mortgage
Notes
Staying secure when looking for property
Ensure you're up to date with our latest advice on how to avoid fraud or scams when looking for property online.
Visit our security centre to find out moreDisclaimer - Property reference 34205111. The information displayed about this property comprises a property advertisement. Rightmove.co.uk makes no warranty as to the accuracy or completeness of the advertisement or any linked or associated information, and Rightmove has no control over the content. This property advertisement does not constitute property particulars. The information is provided and maintained by Halls Estate Agents, Shrewsbury. Please contact the selling agent or developer directly to obtain any information which may be available under the terms of The Energy Performance of Buildings (Certificates and Inspections) (England and Wales) Regulations 2007 or the Home Report if in relation to a residential property in Scotland.
*This is the average speed from the provider with the fastest broadband package available at this postcode. The average speed displayed is based on the download speeds of at least 50% of customers at peak time (8pm to 10pm). Fibre/cable services at the postcode are subject to availability and may differ between properties within a postcode. Speeds can be affected by a range of technical and environmental factors. The speed at the property may be lower than that listed above. You can check the estimated speed and confirm availability to a property prior to purchasing on the broadband provider's website. Providers may increase charges. The information is provided and maintained by Decision Technologies Limited. **This is indicative only and based on a 2-person household with multiple devices and simultaneous usage. Broadband performance is affected by multiple factors including number of occupants and devices, simultaneous usage, router range etc. For more information speak to your broadband provider.
Map data ©OpenStreetMap contributors.









