
Wadenhoe Road, Stoke Doyle, Northamptonshire, PE8
- PROPERTY TYPE
Plot
- BEDROOMS
4
- SIZE
Ask agent
Description
OVERVIEW
Plot size: 0.38 acres
Services: Mains electricity and water are connected to the site, and Gigaclear connected to the boundary.
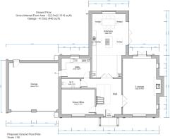
Planning permission: Full planning permission granted for a stone-built, 4-bedroom, 2,600sqft detached dwelling with double garage. Planning reference - NE/24/01212/FUL.
*NB. Since obtaining planning permission, an additional slip of land has been acquired which does not appear on the planning documents. Please refer to the aerial photography for an accurate representation of the entire plot being sold.
LOCATION
The plot is positioned on the Western edge of Stoke Doyle, which is a quiet village situated approximately 2 miles from Oundle. The immediate position offers uninterrupted countryside views over surrounding farmland.
Oundle is a quintessentially English market town with a population of around 6,500, sitting amidst the rolling countryside of Northamptonshire’s picturesque Nene valley. Oundle’s centre is “a conservation area” which is a delight to walk around with remarkable Georgian and Jacobean architecture, idyllic riverside setting and St. Peters Church which has the tallest spire in Northamptonshire as a guide point.
The town has a vibrant community feel and is well equipped with schools and services as well as independent shops, pubs and restaurants. It is the home of a weekly market and monthly farmers markets and the setting for many festivals throughout the year, see website ‘Love Oundle’. Oundle School has been located here for over 500 years, sharing amazing facilities with the town through membership, including a sports centre with a 50-metre swimming pool and theatre which doubles as a cinema.
DIRECTIONS
Navigation: PE8 5TG
What3words: ///secure.character.rare
VIEWINGS
Secure site visits to be accompanied by Jackson-Stops, Oundle
Wadenhoe Road, Stoke Doyle, Northamptonshire, PE8
NEAREST STATIONS
Distances are straight line measurements from the centre of the postcode- Corby Station8.3 miles
Notes
Disclaimer - Property reference OUN250092. The information displayed about this property comprises a property advertisement. Rightmove.co.uk makes no warranty as to the accuracy or completeness of the advertisement or any linked or associated information, and Rightmove has no control over the content. This property advertisement does not constitute property particulars. The information is provided and maintained by Jackson-Stops & Staff, Oundle. Please contact the selling agent or developer directly to obtain any information which may be available under the terms of The Energy Performance of Buildings (Certificates and Inspections) (England and Wales) Regulations 2007 or the Home Report if in relation to a residential property in Scotland.
Map data ©OpenStreetMap contributors.







