
Portland Terrace, South Heighton

- PROPERTY TYPE
 Terraced
- BEDROOMS
 3
- BATHROOMS
 1
- SIZE
 Ask agent
- TENUREDescribes how you own a property. There are different types of tenure - freehold, leasehold, and commonhold.Read more about tenure in our glossary page.
 Freehold
Key features
- No ongoing chain
 - Mid terrace Victorian Cottage
 - unrivalled far reaching countryside views
 - Three bedrooms
 - refitted kitchen
 - refitted bathroom
 - uPVC Double Glazing
 - Low maintenance rear garden
 - Cottage Style Front garden
 - Off Road Parking
 
Description
Perfectly positioned less than half a mile from Denton County Primary School, rated 'Good' by Ofsted, and conveniently close to main bus and train routes with easy access to Eastbourne, Brighton and London. The A27 is approximately 5 miles away ensuring convenient travel connections.
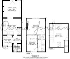
The ground floor accommodation comprises a modern kitchen/dining room, utility/boot room, modern bathroom/WC and living room with French doors opening onto the rear garden, perfectly framing the beautiful Downland views towards Piddinghoe Pond, River Ouse and towards Lewes in the distance.
Bedrooms two and three are located on the first floor landing and the dual aspect principle bedroom can be found on the third floor.
The front cottage style garden garden features an inset parking space, a winding path leads you to the covered entrance porch and front door, while the rear garden is designed for low maintenance with stone paving, creating a peaceful outdoor haven to unwind and soak in the stunning views and sunsets.
Ground Floor - COVERED ENTRANCE PORCH
Double glazed entrance door opens to:
UTILITY / BOOT ROOM
double glazed window. Range of wall and base units with worksurface over and tiled splash back. Two appliance spaces. Wall mounted boiler. Quarry tiled floor. Skylight window.
BATHROOM
Refitted with a white suite comprising of a panelled bath with contemporary mixer tap and matching shower with waterfall shower head and attachment. Pedestal wash basin. Low level WC. Tiled walls and floor. Double glazed obscured glass glazed window. Black ladder style radiator.
KITCHEN / DINING ROOM
Re-fitted to comprise range of wall and base units with further drawers and work surfaces incorporating one and a half bowl stainless steel sink unit with mixer tap. Electric oven with gas hob and cooker hood over. Space for upright fridge/freezer. Integrated slimline dishwasher. Internal double glazed window borrowing light from the utility/boot room. Radiator. Tiled floor. Central heating. Under stair storage cupboard. Stairs to first floor. Opening to:
LIVING ROOM
Double glazed French doors and window overlook and leading out onto the rear patio garden where fabulous uninterrupted countryside views can be enjoyed. Radiator. Telephone point. Brick built fire surround with tiled heath. Television aerial point.
First Floor - BEDROOM TWO
Double glazed window enjoying stunning views towards Piddinghoe pond and the surrounding countryside. Radiator.
BEDROOM THREE
Double glazed window overlooking the cottage style front garden. Radiator.
Second Floor - BEDROOM ONE
A dual aspect room with Velux style windows to front and rear elevation, stunning uninterrupted countryside views towards Piddinghoe pond and further to Rodmell and Lewes. Range of shaker style fitted wardrobes provide ample storage. Eaves storage cupboards. Radiator.
Outside: - FRONT GARDEN
A cottage style garden with established beds and borders with sweeping path leading to a block paved patio area with steps leading down to the front door. Inset off-road parking for one car.
REAR GARDEN
Laid to low maintenance paving, this area is perfect for enjoying evening sunsets and unrivalled far reaching countryside views.
Brochures
Portland Terrace, South HeightonEPCBrochure- COUNCIL TAXA payment made to your local authority in order to pay for local services like schools, libraries, and refuse collection. The amount you pay depends on the value of the property.Read more about council Tax in our glossary page.
 - Band: C
 - PARKINGDetails of how and where vehicles can be parked, and any associated costs.Read more about parking in our glossary page.
 - Yes
 - GARDENA property has access to an outdoor space, which could be private or shared.
 - Yes
 - ACCESSIBILITYHow a property has been adapted to meet the needs of vulnerable or disabled individuals.Read more about accessibility in our glossary page.
 - Ask agent
 
Portland Terrace, South Heighton
Add an important place to see how long it'd take to get there from our property listings.
__mins driving to your place
Get an instant, personalised result:
- Show sellers you’re serious
 - Secure viewings faster with agents
 - No impact on your credit score
 
Your mortgage
Notes
Staying secure when looking for property
Ensure you're up to date with our latest advice on how to avoid fraud or scams when looking for property online.
Visit our security centre to find out moreDisclaimer - Property reference 34206155. The information displayed about this property comprises a property advertisement. Rightmove.co.uk makes no warranty as to the accuracy or completeness of the advertisement or any linked or associated information, and Rightmove has no control over the content. This property advertisement does not constitute property particulars. The information is provided and maintained by David Jordan, Seaford. Please contact the selling agent or developer directly to obtain any information which may be available under the terms of The Energy Performance of Buildings (Certificates and Inspections) (England and Wales) Regulations 2007 or the Home Report if in relation to a residential property in Scotland.
*This is the average speed from the provider with the fastest broadband package available at this postcode. The average speed displayed is based on the download speeds of at least 50% of customers at peak time (8pm to 10pm). Fibre/cable services at the postcode are subject to availability and may differ between properties within a postcode. Speeds can be affected by a range of technical and environmental factors. The speed at the property may be lower than that listed above. You can check the estimated speed and confirm availability to a property prior to purchasing on the broadband provider's website. Providers may increase charges. The information is provided and maintained by Decision Technologies Limited. **This is indicative only and based on a 2-person household with multiple devices and simultaneous usage. Broadband performance is affected by multiple factors including number of occupants and devices, simultaneous usage, router range etc. For more information speak to your broadband provider.
Map data ©OpenStreetMap contributors.








