3 bedroom terraced house for sale
North Road, Saltash, Cornwall

- PROPERTY TYPE
Terraced
- BEDROOMS
3
- BATHROOMS
2
- SIZE
Ask agent
- TENUREDescribes how you own a property. There are different types of tenure - freehold, leasehold, and commonhold.Read more about tenure in our glossary page.
Freehold
Key features
- Ideal First Time Buy
- Mid Terraced House
- Lounge with Feature Fireplace
- Fitted Kitchen
- 13'5 Bathroom
- Three Double Bedrooms with Master En-Suite Shower Room
- Separate w.c.
- uPVC Double Glazing
- Gas Central Heating with a Condensing Boiler
- Decked Terrace
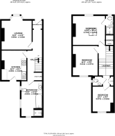
Description
.
uPVC double glazed opaque door into ...
Entrance Hall
Radiator, two storage cupboards, recessed utility area.
Lounge
3.43m x 3.56m (11' 3" x 11' 8")
(plus bay). uPVC double glazed bay window to the front, feature fireplace with cast iron inset and slate hearth, two radiators.
Kitchen
3.48m x 2.62m (11' 5" x 8' 7")
(to chimney breast). Range of wall and floor mounted storage units, roll top wood effect work surfaces, one and a half bowl stainless steel sink and drainer unit, ceramic hob, electric oven, extractor canopy, tiling above worktops, uPVC double glazed door to the rear, gas central heating boiler (condensing).
Bathroom
4.1m x 2.08m (13' 5" x 6' 10")
Bath, wash hand basin with storage unit below, shower cubicle, WC, tiled to half height, two uPVC double glazed opaque windows to the side and one to the rear, extractor fan, chrome heated towel rail.
Mezzanine Level
Landing area with double storage cupboard.
Bedroom Three
3.07m x 2.54m (10' 1" x 8' 4")
uPVC double glazed window to the rear with views over surrounding area, River Tamar and towards the moors. Radiator.
Separate WC
Wash hand basin, WC, tiled flooring, extractor fan, uPVC double glazed opaque window to the side, fluorescent striplight with electric shaver point.
Landing
Access to loft space.
Bedroom One
3.73m x 3.45m (12' 3" x 11' 4")
uPVC double glazed window to the front, double wardrobe.
En Suite Shower Room
Shower cubicle, wash hand basin, WC, Dimplex shower unit, extractor fan, uPVC double glazed opaque window to the front, tiled flooring, chrome heated towel rail.
Bedroom Two
3.5m x 2.97m (11' 6" x 9' 9")
uPVC double glazed window to the rear with views over surrounding area, River Tamar and towards the moors. Radiator.
Outside
To the front there is a concrete pathway leading to the front door. The rear garden has a paved patio area directly behind the property, with external water and electric supply. Decked area with balustrade, paved steps then lead down to a gate giving access to the rear lane.
Garage
4.67m x 3m (15' 4" x 9' 10")
Up and over door, power and lighting.
Brochures
Particulars- COUNCIL TAXA payment made to your local authority in order to pay for local services like schools, libraries, and refuse collection. The amount you pay depends on the value of the property.Read more about council Tax in our glossary page.
- Band: B
- PARKINGDetails of how and where vehicles can be parked, and any associated costs.Read more about parking in our glossary page.
- Yes
- GARDENA property has access to an outdoor space, which could be private or shared.
- Yes
- ACCESSIBILITYHow a property has been adapted to meet the needs of vulnerable or disabled individuals.Read more about accessibility in our glossary page.
- Ask agent
North Road, Saltash, Cornwall
Add an important place to see how long it'd take to get there from our property listings.
__mins driving to your place
Get an instant, personalised result:
- Show sellers you’re serious
- Secure viewings faster with agents
- No impact on your credit score
Your mortgage
Notes
Staying secure when looking for property
Ensure you're up to date with our latest advice on how to avoid fraud or scams when looking for property online.
Visit our security centre to find out moreDisclaimer - Property reference SAL230147. The information displayed about this property comprises a property advertisement. Rightmove.co.uk makes no warranty as to the accuracy or completeness of the advertisement or any linked or associated information, and Rightmove has no control over the content. This property advertisement does not constitute property particulars. The information is provided and maintained by Bradleys, Saltash. Please contact the selling agent or developer directly to obtain any information which may be available under the terms of The Energy Performance of Buildings (Certificates and Inspections) (England and Wales) Regulations 2007 or the Home Report if in relation to a residential property in Scotland.
*This is the average speed from the provider with the fastest broadband package available at this postcode. The average speed displayed is based on the download speeds of at least 50% of customers at peak time (8pm to 10pm). Fibre/cable services at the postcode are subject to availability and may differ between properties within a postcode. Speeds can be affected by a range of technical and environmental factors. The speed at the property may be lower than that listed above. You can check the estimated speed and confirm availability to a property prior to purchasing on the broadband provider's website. Providers may increase charges. The information is provided and maintained by Decision Technologies Limited. **This is indicative only and based on a 2-person household with multiple devices and simultaneous usage. Broadband performance is affected by multiple factors including number of occupants and devices, simultaneous usage, router range etc. For more information speak to your broadband provider.
Map data ©OpenStreetMap contributors.







