
Maidstone Road, Highfields

- PROPERTY TYPE
Terraced
- BEDROOMS
3
- BATHROOMS
2
- SIZE
Ask agent
- TENUREDescribes how you own a property. There are different types of tenure - freehold, leasehold, and commonhold.Read more about tenure in our glossary page.
Freehold
Key features
- Modern Decor
- Three Double Bedrooms
- Extended Kitchen/Diner
- Two Reception Rooms
- Bathroom & Shower Room
- Loft Room
- On Street Parking
Description
Upon entering the property, you are welcomed by two spacious reception rooms, perfect for use as a lounge, dining room, or home office. The home has been extended to the rear, creating a large open-plan kitchen diner that offers plenty of space for cooking, dining, and entertaining. A downstairs bathroom adds to the practicality and convenience of the ground floor layout.
Upstairs, the first floor comprises three well-proportioned double bedrooms, along with a modern shower room. The property also benefits from a fully converted loft room, ideal as an additional bedroom, study, or hobby space (subject to relevant regulations).
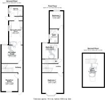
Rooms and Measurements
Ground floor
Reception one 3.28m x 3.69m
Reception two 3.64m x 4.26m
Kitchen breakfast room 2.75m x 6.93m
Bathroom 1.90m x 2.11m
First floor
Bedroom one 4.17m x 4.15m
Bedroom two 3.33m x 3.50m
Bedroom three 2.60m x 3.51m
shower room 1.77m x 2.40m
Landing 0.83m x 8.17m
Loft room 4.26m x 6.72m
Outside
To the rear, you'll find a low-maintenance courtyard garden, complete with outdoor storage, providing the perfect spot for relaxation or alfresco dining. On-street parking is available directly in front of the property.
Location
Located in the popular Highfields area, the property is within walking distance of local schools, shops, places of worship, and excellent transport links into the city centre and beyond.
Viewings and Directions:
Strictly by appointment only through the sole agent Fraser Stretton
Postcode for Sat Nav: LE2 0BA
Council Tax Band: A (Leicester City Council )
Tenure: Freehold
Brochures
Brochure- COUNCIL TAXA payment made to your local authority in order to pay for local services like schools, libraries, and refuse collection. The amount you pay depends on the value of the property.Read more about council Tax in our glossary page.
- Band: A
- PARKINGDetails of how and where vehicles can be parked, and any associated costs.Read more about parking in our glossary page.
- Ask agent
- GARDENA property has access to an outdoor space, which could be private or shared.
- Yes
- ACCESSIBILITYHow a property has been adapted to meet the needs of vulnerable or disabled individuals.Read more about accessibility in our glossary page.
- Ask agent
Energy performance certificate - ask agent
Maidstone Road, Highfields
Add an important place to see how long it'd take to get there from our property listings.
__mins driving to your place
Get an instant, personalised result:
- Show sellers you’re serious
- Secure viewings faster with agents
- No impact on your credit score
Your mortgage
Notes
Staying secure when looking for property
Ensure you're up to date with our latest advice on how to avoid fraud or scams when looking for property online.
Visit our security centre to find out moreDisclaimer - Property reference RS2514. The information displayed about this property comprises a property advertisement. Rightmove.co.uk makes no warranty as to the accuracy or completeness of the advertisement or any linked or associated information, and Rightmove has no control over the content. This property advertisement does not constitute property particulars. The information is provided and maintained by FRASER STRETTON LTD, Leicester. Please contact the selling agent or developer directly to obtain any information which may be available under the terms of The Energy Performance of Buildings (Certificates and Inspections) (England and Wales) Regulations 2007 or the Home Report if in relation to a residential property in Scotland.
*This is the average speed from the provider with the fastest broadband package available at this postcode. The average speed displayed is based on the download speeds of at least 50% of customers at peak time (8pm to 10pm). Fibre/cable services at the postcode are subject to availability and may differ between properties within a postcode. Speeds can be affected by a range of technical and environmental factors. The speed at the property may be lower than that listed above. You can check the estimated speed and confirm availability to a property prior to purchasing on the broadband provider's website. Providers may increase charges. The information is provided and maintained by Decision Technologies Limited. **This is indicative only and based on a 2-person household with multiple devices and simultaneous usage. Broadband performance is affected by multiple factors including number of occupants and devices, simultaneous usage, router range etc. For more information speak to your broadband provider.
Map data ©OpenStreetMap contributors.





