4 bedroom detached house for sale
Warrington Road, Great Budworth, CW9

- PROPERTY TYPE
Detached
- BEDROOMS
4
- BATHROOMS
4
- SIZE
2,863 sq ft
266 sq m
- TENUREDescribes how you own a property. There are different types of tenure - freehold, leasehold, and commonhold.Read more about tenure in our glossary page.
Freehold
Key features
- Charming extended and remodelled Grade II listed period cottage
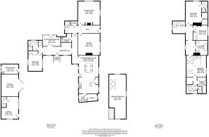
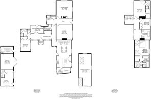
- Lovely accommodation to nearly 3000 square feet, four bedrooms, four bathrooms, three reception rooms
- Detached annex building with gym and large first floor office suite
- Beautiful landscaped gardens, including stunning breeze house, in all just over one acre
Description
An exceptional Grade II listed country house, extended and refurbished throughout, in a wonderful position on the edge of Great Budworth village in immaculate gated landscaped gardens and grounds of over an acre, together with an excellent two storey detached annex/garage building offering further flexible accommodation, in all over 4000 square feet.
Electric gates open to a large cobbled driveway and forecourt which offers ample parking, and gives access also to the detached Coach House/Garage building, a flexible space, currently used as a gymnasium with shower room on the ground floor, and with an excellent first floor sitting room/home office, which spans the width of the building.
The cottage boasts some lovely period features including leaded windows and exposed brickwork and is centred around a large hallway which provides access to the reception rooms. The sitting room enjoys views of the stunning gardens and has a log burning stove. The adjacent snug overlooks the front elevation and lies next to a large 26ft family kitchen with a range of hand painted style cabinets with a central island and ample space for a dining table. There is a pantry/laundry here.
There is a very useful downstairs double bedroom with shower room, large store and a garden room, currently set up as a study, a lovely room with doors onto the main garden. The first floor provides three bedrooms, one currently used as a dressing room. The principal bedroom is particularly spacious with a walk in wardrobe and en suite shower room. The second bedroom also has the benefit of an en suite and a walk in wardrobe.
The grounds are simply charming, immaculately maintained and full of interest. At the rear of the Coach House is a traditional greenhouse, and a purpose brick-built pig shed. The lawned areas are expansive including formal and informal sections and some lovely mature trees. A superb breeze house/entertaining area has bar, seating areas and is positioned next to a hot tub.
The house site very close to Cransley School, just a short walk away. The wider village has a primary school, post office, a lovely Church and several pubs.
EPC Rating: E
Brochures
Title planProperty Brochure- COUNCIL TAXA payment made to your local authority in order to pay for local services like schools, libraries, and refuse collection. The amount you pay depends on the value of the property.Read more about council Tax in our glossary page.
- Band: G
- LISTED PROPERTYA property designated as being of architectural or historical interest, with additional obligations imposed upon the owner.Read more about listed properties in our glossary page.
- Listed
- PARKINGDetails of how and where vehicles can be parked, and any associated costs.Read more about parking in our glossary page.
- Yes
- GARDENA property has access to an outdoor space, which could be private or shared.
- Yes
- ACCESSIBILITYHow a property has been adapted to meet the needs of vulnerable or disabled individuals.Read more about accessibility in our glossary page.
- Ask agent
Warrington Road, Great Budworth, CW9
Add an important place to see how long it'd take to get there from our property listings.
__mins driving to your place
Get an instant, personalised result:
- Show sellers you’re serious
- Secure viewings faster with agents
- No impact on your credit score



Your mortgage
Notes
Staying secure when looking for property
Ensure you're up to date with our latest advice on how to avoid fraud or scams when looking for property online.
Visit our security centre to find out moreDisclaimer - Property reference c65e80e4-145d-4ce9-875f-e59453317812. The information displayed about this property comprises a property advertisement. Rightmove.co.uk makes no warranty as to the accuracy or completeness of the advertisement or any linked or associated information, and Rightmove has no control over the content. This property advertisement does not constitute property particulars. The information is provided and maintained by Stuart Rushton & Co, Knutsford. Please contact the selling agent or developer directly to obtain any information which may be available under the terms of The Energy Performance of Buildings (Certificates and Inspections) (England and Wales) Regulations 2007 or the Home Report if in relation to a residential property in Scotland.
*This is the average speed from the provider with the fastest broadband package available at this postcode. The average speed displayed is based on the download speeds of at least 50% of customers at peak time (8pm to 10pm). Fibre/cable services at the postcode are subject to availability and may differ between properties within a postcode. Speeds can be affected by a range of technical and environmental factors. The speed at the property may be lower than that listed above. You can check the estimated speed and confirm availability to a property prior to purchasing on the broadband provider's website. Providers may increase charges. The information is provided and maintained by Decision Technologies Limited. **This is indicative only and based on a 2-person household with multiple devices and simultaneous usage. Broadband performance is affected by multiple factors including number of occupants and devices, simultaneous usage, router range etc. For more information speak to your broadband provider.
Map data ©OpenStreetMap contributors.





