
3 bedroom end of terrace house for sale
Clayhanger, Guildford, Surrey, GU4

- PROPERTY TYPE
End of Terrace
- BEDROOMS
3
- BATHROOMS
2
- SIZE
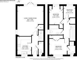
918 sq ft
85 sq m
- TENUREDescribes how you own a property. There are different types of tenure - freehold, leasehold, and commonhold.Read more about tenure in our glossary page.
Freehold
Description
The ground floor features a contemporary kitchen with dark wood-effect cabinetry, sleek black countertops, and ample cupboard space. To the rear, the spacious living and dining room is an inviting area with wood-effect flooring, cream walls, and a striking feature dark blue wall. Double glass doors flood the space with natural light and provide direct access to the garden. A built-in entertainment unit in rich dark wood tones serves as a stylish focal point. Completing the downstairs is a convenient cloakroom.
Upstairs, the principal bedroom is generous in size and finished in calming neutral tones. Built-in wardrobes add practicality, while the en-suite offers modern fittings, including a stand-up shower and a heated towel rail. The second bedroom is also well-proportioned, decorated in pale blue tones and benefitting from fitted wardrobes. The third bedroom, with baby blue walls, is perfect for a guest room, nursery, or home office. A family bathroom continues the home’s clean, modern design with white tiling around the bath/shower and a decorative trim.
The outdoor space is both private and stylish, with fencing enclosing the neat garden. A tiled patio area leads onto a well-maintained lawn, and a raised patio at the rear creates an ideal spot for entertaining or relaxing. This well-appointed home is ready to move into and offers both comfort and practicality in a desirable setting.
Merrow Park is situated approximately 3 miles to the North East of Guildford Town Centre, which provides a wide range of shopping amenities together with two stations having services to London. Within the development there is a doctor’s surgery, a chemist and a delicatessen, with a Sainsbury s super store at nearby Burpham. The Spectrum leisure complex offering a variety of activities is within 2 miles as is access onto the A3 northbound carriageway leading to London and the M25 interchange which is gained from the outskirts of Burpham. Both St Peters Roman Catholic School and George Abbot School are located within one mile and Merrow Infant School is within walking distance.
Brochures
Particulars- COUNCIL TAXA payment made to your local authority in order to pay for local services like schools, libraries, and refuse collection. The amount you pay depends on the value of the property.Read more about council Tax in our glossary page.
- Band: E
- PARKINGDetails of how and where vehicles can be parked, and any associated costs.Read more about parking in our glossary page.
- Yes
- GARDENA property has access to an outdoor space, which could be private or shared.
- Yes
- ACCESSIBILITYHow a property has been adapted to meet the needs of vulnerable or disabled individuals.Read more about accessibility in our glossary page.
- Ask agent
Clayhanger, Guildford, Surrey, GU4
Add an important place to see how long it'd take to get there from our property listings.
__mins driving to your place
Get an instant, personalised result:
- Show sellers you’re serious
- Secure viewings faster with agents
- No impact on your credit score



Your mortgage
Notes
Staying secure when looking for property
Ensure you're up to date with our latest advice on how to avoid fraud or scams when looking for property online.
Visit our security centre to find out moreDisclaimer - Property reference BUR250302. The information displayed about this property comprises a property advertisement. Rightmove.co.uk makes no warranty as to the accuracy or completeness of the advertisement or any linked or associated information, and Rightmove has no control over the content. This property advertisement does not constitute property particulars. The information is provided and maintained by Seymours Estate Agents, Burpham & Merrow. Please contact the selling agent or developer directly to obtain any information which may be available under the terms of The Energy Performance of Buildings (Certificates and Inspections) (England and Wales) Regulations 2007 or the Home Report if in relation to a residential property in Scotland.
*This is the average speed from the provider with the fastest broadband package available at this postcode. The average speed displayed is based on the download speeds of at least 50% of customers at peak time (8pm to 10pm). Fibre/cable services at the postcode are subject to availability and may differ between properties within a postcode. Speeds can be affected by a range of technical and environmental factors. The speed at the property may be lower than that listed above. You can check the estimated speed and confirm availability to a property prior to purchasing on the broadband provider's website. Providers may increase charges. The information is provided and maintained by Decision Technologies Limited. **This is indicative only and based on a 2-person household with multiple devices and simultaneous usage. Broadband performance is affected by multiple factors including number of occupants and devices, simultaneous usage, router range etc. For more information speak to your broadband provider.
Map data ©OpenStreetMap contributors.





