3 Hopefield Cottages, Lowick Green, Cumbria, LA12 8DZ

- PROPERTY TYPE
Terraced
- BEDROOMS
2
- BATHROOMS
1
- SIZE
501 sq ft
47 sq m
- TENUREDescribes how you own a property. There are different types of tenure - freehold, leasehold, and commonhold.Read more about tenure in our glossary page.
Freehold
Key features
- Pleasant hamlet location
- Delightful mid terrace cottage
- Completely renovated three years
- Two Bedrooms
- Cosy sitting room with log burner
- Fantastic views
- Front and rear garden
Description
Opportunity to acquire a stunningly presented two bedroom cottage set in the pleasant hamlet of Lowick Green and enjoying views to the Lakeland fells. This delightful mid terrace cottage blends characterful features with modern comforts and was completely renovated three years ago including a new roof, rewiring, replumbing, and brand-new windows throughout. The cottage features a stylish interior, a cosy sitting room with log burner, well-equipped kitchen, and neatly appointed shower room. Both bedrooms are large enough for a double bed with upstairs bedroom benefiting from fantastic views. Nestled in a scenic setting, the property also benefits from a lovely garden to both front and rear aspects, perfect for relaxing or entertaining. This cottage would suit a buyer looking for a peaceful weekend retreat, holiday let or easily maintainable permanent home for a single person or couple.
Situated in The Crake Valley, one of the lesser known Lakeland valleys, at the head of the valley is Coniston Water and the rising uplands of central Lakeland with the River Crake flowing through Spark Bridge into the estuary of Morecambe Bay and nearby Greenodd. With the The Lake District National Park on your doorstep, Lowick Green is a small but vibrant rural community, with plenty of local activities, a village hall in nearby Spark Bridge and two pubs within walking distance of 3 Hopefield Cottages. Whilst positioned in a row of traditional cottages, the cottage is situated on the A590, giving a quick access to the M6 junction 36 and rail connections at Ulverston or Oxenholme. The popular market town of Ulverston is only a short drive and offers a wide range of amenities and good range of local shopping.
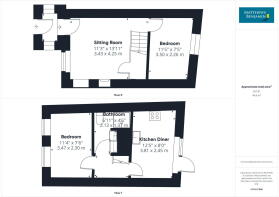
Accommodation
Front Porch
The delightful front garden has mature shrubs, and a stone-chipped pathway leads to the front door, opening into a practical porch with space for coats and muddy boots.
Sitting Room
A cosy sitting room with a prominent Lakeland stone and slate inglenook fireplace, complete with inset multi-fuel burner, making a warm and inviting living space on those wet winter days. A charming cottage style window with a built in window seat to the front takes in the views of the garden and fell tops beyond. Off the lounge, you’ll find access to a useful under stairs cupboard.
Bedroom
Situated on the ground floor to the rear of the sitting room is a comfortable double bedroom with a window out to the garden aspect.
First Floor
Stairs from the sitting room lead up to the first floor landing.
Kitchen Diner
A well designed kitchen fitted with pale green base and wall units and solid stone worktop with integrated appliances including an electric hob and oven, inset sink unit, plumbing for a washing machine and space for standing fridge/freezer. A fully glazed rear door leads directly onto the private rear garden perfect for outdoor dining and relaxation.
Bedroom
Situated at the front of the cottage enjoying a stunning view of the surrounding countryside and Lakeland fells from two cottage style windows as well as two skylights also flooding the bedroom with light. The bedroom has ample space for a double bed and drawers and features an exposed open stone fireplace with stone hearth, exposed beams and quirky industrial lighting.
Shower Room
A modern fitted shower room with suite comprising walk in shower cubicle with electric shower and folding glazed door, low suite toilet and wash basin with tiled wall and fitted mirror with light. There is also a heated towel rail and useful shelf.
Outside
To the front of the cottage is a pleasant garden planted with shrubs and roses bordered on either side by hedgerows. The gravelled pathway leads from the front gate to the front door and under the front window where you could place a bench to take in the far reaching views. To the rear accessed off the kitchen is a private garden area which is fenced on three sides and provides a lawned and slate pathed area ideal for sitting out or dining. There is a access gate out from the rear garden through the neighbouring properties to the end of the terrace.
Parking for the cottage is available opposite on the roadside or on a side road at the end of the row of terraces.
Services
Mains electric, water and drainage. Electric heating.
Tenure
Freehold.
Council Tax Band
C
What3Words
///worms.wins.butlers
Broadband
For information on broadband and mobile services at the property, we advise prospective purchasers to consult the Ofcom website: checker.ofcom.org.uk
Anti Money Laundering Regulations (AML)
Due to the Money Laundering Regulations, now officially known as Money Laundering, Terrorist Financing and Transfer of Funds Regulations 2017 we are required to follow government legislation and carry out identification checks on all purchasers. We use a specialist third party company to conduct these checks at a charge of £48 inclusive of VAT per buyer once an offer has been accepted and you will be unable to proceed with the purchase of the property until these checks have been carried out. This charge is non-refundable.
Brochures
Brochure 1- COUNCIL TAXA payment made to your local authority in order to pay for local services like schools, libraries, and refuse collection. The amount you pay depends on the value of the property.Read more about council Tax in our glossary page.
- Band: C
- PARKINGDetails of how and where vehicles can be parked, and any associated costs.Read more about parking in our glossary page.
- On street
- GARDENA property has access to an outdoor space, which could be private or shared.
- Private garden
- ACCESSIBILITYHow a property has been adapted to meet the needs of vulnerable or disabled individuals.Read more about accessibility in our glossary page.
- Ask agent
3 Hopefield Cottages, Lowick Green, Cumbria, LA12 8DZ
Add an important place to see how long it'd take to get there from our property listings.
__mins driving to your place
Get an instant, personalised result:
- Show sellers you’re serious
- Secure viewings faster with agents
- No impact on your credit score
Affordability
Notes
Staying secure when looking for property
Ensure you're up to date with our latest advice on how to avoid fraud or scams when looking for property online.
Visit our security centre to find out moreDisclaimer - Property reference S1464417. The information displayed about this property comprises a property advertisement. Rightmove.co.uk makes no warranty as to the accuracy or completeness of the advertisement or any linked or associated information, and Rightmove has no control over the content. This property advertisement does not constitute property particulars. The information is provided and maintained by Matthews Benjamin, Windermere. Please contact the selling agent or developer directly to obtain any information which may be available under the terms of The Energy Performance of Buildings (Certificates and Inspections) (England and Wales) Regulations 2007 or the Home Report if in relation to a residential property in Scotland.
*This is the average speed from the provider with the fastest broadband package available at this postcode. The average speed displayed is based on the download speeds of at least 50% of customers at peak time (8pm to 10pm). Fibre/cable services at the postcode are subject to availability and may differ between properties within a postcode. Speeds can be affected by a range of technical and environmental factors. The speed at the property may be lower than that listed above. You can check the estimated speed and confirm availability to a property prior to purchasing on the broadband provider's website. Providers may increase charges. The information is provided and maintained by Decision Technologies Limited. **This is indicative only and based on a 2-person household with multiple devices and simultaneous usage. Broadband performance is affected by multiple factors including number of occupants and devices, simultaneous usage, router range etc. For more information speak to your broadband provider.
Map data ©OpenStreetMap contributors.




