
Burlington Road, New Malden, Surrey, England, KT3 4NE

- PROPERTY TYPE
Apartment
- BEDROOMS
2
- SIZE
Ask developer
- TENUREDescribes how you own a property. There are different types of tenure - freehold, leasehold, and commonhold.Read more about tenure in our glossary page.
Ask developer
Key features
- Reserve now with a £26,250 deposit using Deposit Boost
- Situated on second floor
- Views over the Pyl Brook
- Private balcony
- Large open-plan living space
- Fully fitted kitchen
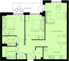
- Total area: 837 sq ft (77 sq m)
Description
DISCOVER THIS TWO-BEDROOM HOME SITUATED ON THE SECOND FLOOR OF BROOKSIDE APARTMENTS.
The fully fitted kitchen includes integrated appliances, while the open-plan living/dining area opens onto a private balcony with views onto the Pyl Brook.
There are two double bedrooms, with an en suite to the main bedroom, a separate family bathroom and ample storage to complete this home.
Room Dimensions
- Balcony - 1500mm x 4700mm (4'11" x 15'5")
- Bathroom - 2200mm x 2050mm (7'2" x 6'8")
- Bedroom 1 - 4665mm x 3620mm (15'3" x 11'10")
- Bedroom 2 - 3890mm x 3010mm (12'9" x 9'10")
- Ensuite Bathroom - 2200mm x 1550mm (7'2" x 5'1")
- Kitchen - 3700mm x 2005mm (12'1" x 6'6")
- Living/Dining - 3393mm x 6932mm (11'1" x 22'8")
Brochures
Brochure for Sterling Place- COUNCIL TAXA payment made to your local authority in order to pay for local services like schools, libraries, and refuse collection. The amount you pay depends on the value of the property.Read more about council Tax in our glossary page.
- Ask developer
- PARKINGDetails of how and where vehicles can be parked, and any associated costs.Read more about parking in our glossary page.
- Ask developer
- GARDENA property has access to an outdoor space, which could be private or shared.
- Ask developer
- ACCESSIBILITYHow a property has been adapted to meet the needs of vulnerable or disabled individuals.Read more about accessibility in our glossary page.
- Ask developer
Energy performance certificate - ask developer
Burlington Road, New Malden, Surrey, England, KT3 4NE
Add an important place to see how long it'd take to get there from our property listings.
__mins driving to your place
Get an instant, personalised result:
- Show sellers you’re serious
- Secure viewings faster with agents
- No impact on your credit score
Development features
- 1, 2 & 3-BEDROOM HOMES AVAILABLE, ALL WITH OUTDOOR SPACE
- Homes set around private podium gardens
- Design inspired from the sites early history as a print works
- 10-minute walk to Motspur Park Station, reach London Waterloo in 24 minutes
About Barratt London
Building your future
If you want to make the most of modern living, a brand-new Barratt London home could be just what you’re looking for. Practical, smart and efficient, Barratt London homes make day-to-day life easy – so you can get on with building your future.
Smarter design
From neat storage for simple, clutter-free living to flexible, multi-purpose open-plan spaces, Barratt London homes can help you lead the life you want.
Efficiency built in
We use highly-efficient insulation and enhanced double-glazing as standard, which allows the heat in and keeps the cold out. So no matter how cold it is outside, you’ll feel warm in a brand-new Barratt London home. This means you could enjoy lower energy bills, whatever the weather.
In fact, a brand-new Barratt London home could be up to 65% more energy-efficient, meaning you could save up to £1,665 per year on your energy bills^.
Quality at our heart
You’ll find award–winning quality in every room. We’ve been given 5 Stars by the Home Builders Federation every year since 2010†. And over 95% of our homeowners would recommend us to their friends, so you can buy with confidence**.
Always here to help
We have a wide range of schemes to help you move with just a 5% deposit, and if you're selling a home we can help you take the hassle out of moving.
*Offer available on selected plots and developments only – Sales Advisers will advise customers of eligible plots, subject to availability. Terms and conditions apply. See https://www.barratthomes.co.uk/new-homes/london/offers/deposit-boost/deposit-boost-terms-and-conditions/for details, subject to contract and status.
^Indicative figures, based on Revision 8, Briary Energy Report (January 2025) which provides an annual comparative analysis on fuel bill savings for an updated Victorian specification with some modern-day improvements vs new-build homes in London.
†"We", "our", "us" refers to the Barratt Redrow plc Group brands. Our Group brands include Barratt Homes, Barratt London, David Wilson Homes and Redrow.
**We are the only major national housebuilder to be awarded this key industry award every year since 2010. “We” refers to the Barratt Developments PLC group brands including Barratt London, Barratt Homes and David Wilson Homes. Based on HBF star rating scheme from 2010 to 2025 derived from the NHBC national new homes survey at eight weeks (https://www.hbf.co.uk/policy/policy-and-wider-work-program/customer-satisfaction-survey/latest-results/), over 95% of Barratt Developments PLC group customer would recommend our brands to a friend.
Your mortgage
Notes
Staying secure when looking for property
Ensure you're up to date with our latest advice on how to avoid fraud or scams when looking for property online.
Visit our security centre to find out moreDisclaimer - Property reference 2_H849910. The information displayed about this property comprises a property advertisement. Rightmove.co.uk makes no warranty as to the accuracy or completeness of the advertisement or any linked or associated information, and Rightmove has no control over the content. This property advertisement does not constitute property particulars. The information is provided and maintained by Barratt London. Please contact the selling agent or developer directly to obtain any information which may be available under the terms of The Energy Performance of Buildings (Certificates and Inspections) (England and Wales) Regulations 2007 or the Home Report if in relation to a residential property in Scotland.
*This is the average speed from the provider with the fastest broadband package available at this postcode. The average speed displayed is based on the download speeds of at least 50% of customers at peak time (8pm to 10pm). Fibre/cable services at the postcode are subject to availability and may differ between properties within a postcode. Speeds can be affected by a range of technical and environmental factors. The speed at the property may be lower than that listed above. You can check the estimated speed and confirm availability to a property prior to purchasing on the broadband provider's website. Providers may increase charges. The information is provided and maintained by Decision Technologies Limited. **This is indicative only and based on a 2-person household with multiple devices and simultaneous usage. Broadband performance is affected by multiple factors including number of occupants and devices, simultaneous usage, router range etc. For more information speak to your broadband provider.
Map data ©OpenStreetMap contributors.





