
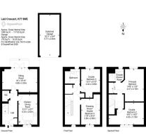
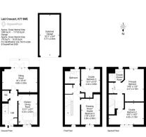
10 Laid Crescent, Glenrothes, KY7 6WE

- PROPERTY TYPE
Town House
- BEDROOMS
4
- BATHROOMS
3
- SIZE
1,259 sq ft
117 sq m
- TENUREDescribes how you own a property. There are different types of tenure - freehold, leasehold, and commonhold.Read more about tenure in our glossary page.
Ask agent
Key features
- Principal bedroom with an en-suite
- Large living room with direct access to garden
- Modern kitchen/diner
- Four Spacious double bedrooms
- Family bathroom fitted with three-piece suite
- W.C
- Driveway for two cars and single garage
Description
The bright and spacious living room is the heart of the home, featuring French doors that open directly onto the garden, filling the space with natural light. An electric fireplace (included in the sale) adds a warm focal point, making this the perfect place to relax. The stylish kitchen/diner is fitted with a range of wall and floor units, a gas hob, double oven, and integrated appliances – ideal for both family meals and entertaining. Upstairs, there are four double bedrooms, including a generous master with fitted wardrobes and a sleek en-suite shower room. A contemporary family bathroom with three-piece suite and a convenient ground floor W.C. complete the accommodation. Additional benefits include gas central heating and double glazing throughout for energy efficiency. Outside, the property boasts a fully enclosed rear garden laid to lawn with a decked area – perfect for summer dining and barbecues. To the front, there is a driveway providing off-street parking for two vehicles along with a single garage. Annual Service charge of £360 for maintenance of the garden grounds
Set in the heart of Fife, Glenrothes is a thriving town that offers the perfect blend of modern living and natural beauty. With excellent road and rail links to Edinburgh, Dundee and beyond, it’s an ideal base for commuters who want space, value and convenience. The town is packed with amenities: the Kingdom Shopping Centre for retail and dining, Rothes Halls for culture, and Michael Woods Sports Centre for fitness and leisure. Outdoor enthusiasts will love Riverside and Balbirnie Parks, with their woodland walks, play areas and scenic trails right on the doorstep. Glenrothes is also family-friendly, with well-regarded schools, nurseries and a strong sense of community. Affordable homes, new developments and ongoing investment make this one of Fife’s most attractive and up-and-coming areas.
Brochures
Brochure- COUNCIL TAXA payment made to your local authority in order to pay for local services like schools, libraries, and refuse collection. The amount you pay depends on the value of the property.Read more about council Tax in our glossary page.
- Band: D
- PARKINGDetails of how and where vehicles can be parked, and any associated costs.Read more about parking in our glossary page.
- Garage
- GARDENA property has access to an outdoor space, which could be private or shared.
- Private garden
- ACCESSIBILITYHow a property has been adapted to meet the needs of vulnerable or disabled individuals.Read more about accessibility in our glossary page.
- Ask agent
Energy performance certificate - ask agent
10 Laid Crescent, Glenrothes, KY7 6WE
Add an important place to see how long it'd take to get there from our property listings.
__mins driving to your place
Get an instant, personalised result:
- Show sellers you’re serious
- Secure viewings faster with agents
- No impact on your credit score
Your mortgage
Notes
Staying secure when looking for property
Ensure you're up to date with our latest advice on how to avoid fraud or scams when looking for property online.
Visit our security centre to find out moreDisclaimer - Property reference 266043. The information displayed about this property comprises a property advertisement. Rightmove.co.uk makes no warranty as to the accuracy or completeness of the advertisement or any linked or associated information, and Rightmove has no control over the content. This property advertisement does not constitute property particulars. The information is provided and maintained by Blair Cadell Solicitors, Edinburgh and East Central Scotland. Please contact the selling agent or developer directly to obtain any information which may be available under the terms of The Energy Performance of Buildings (Certificates and Inspections) (England and Wales) Regulations 2007 or the Home Report if in relation to a residential property in Scotland.
*This is the average speed from the provider with the fastest broadband package available at this postcode. The average speed displayed is based on the download speeds of at least 50% of customers at peak time (8pm to 10pm). Fibre/cable services at the postcode are subject to availability and may differ between properties within a postcode. Speeds can be affected by a range of technical and environmental factors. The speed at the property may be lower than that listed above. You can check the estimated speed and confirm availability to a property prior to purchasing on the broadband provider's website. Providers may increase charges. The information is provided and maintained by Decision Technologies Limited. **This is indicative only and based on a 2-person household with multiple devices and simultaneous usage. Broadband performance is affected by multiple factors including number of occupants and devices, simultaneous usage, router range etc. For more information speak to your broadband provider.
Map data ©OpenStreetMap contributors.





