High street retail property for sale
32 High Street, Bridgnorth, WV16 4DF
- SIZE AVAILABLE
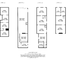
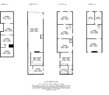
3,881 sq ft
361 sq m
- SECTOR
High street retail property for sale
Key features
- Substantial Grade II listed 3 storey commercial property.
- Ground floor retail accommodation with additional storage and retail/business space on the upper floors.
- Well-arranged flexible accommodation.
- Suitable for a variety of uses including residential conversion on the upper floors or subdivision of the building to create separate self-contained properties, subject to planning.
- Occupying a sought-after town centre location on the High Street of Bridgnorth.
Description
The ground floor comprises open plan retail accommodation with rear sales and ancillary storage and benefitting from further basement storage with access via goods lift. The upper floors provide further spacious storage and office accommodation, together with WCs and staff welfare facilities.
Given the proportions and flexibility of the accommodation, the property lends itself suitable for a variety of retail and commercial uses whilst also offering the opportunity for residential conversion of the upper floors or separate self-contained properties, subject to planning.
The property occupies a prominent location fronting the main High Street, situated amongst a mix of local and national retailers including Boots Pharmacy, FATFACE, Trespass and Holland & Barrett. The property is within a short walking distance of the main public car park with on-street parking also available in High Street, itself.
Bridgnorth is a popular and busy Market Town and tourist centre serving a wide catchment area being situated approximately 20 miles south east of Shrewsbury on the A458 and 15 miles west of Wolverhampton via the A454.
Offers in the region of £395,000 are invited for the freehold interest with the benefit of vacant possession on completion.
Brochures
32 High Street, Bridgnorth, WV16 4DF
NEAREST STATIONS
Distances are straight line measurements from the centre of the postcode- Cosford Station9.0 miles
Notes
Disclaimer - Property reference 333373-1. The information displayed about this property comprises a property advertisement. Rightmove.co.uk makes no warranty as to the accuracy or completeness of the advertisement or any linked or associated information, and Rightmove has no control over the content. This property advertisement does not constitute property particulars. The information is provided and maintained by Towler Shaw Roberts, Shrewsbury. Please contact the selling agent or developer directly to obtain any information which may be available under the terms of The Energy Performance of Buildings (Certificates and Inspections) (England and Wales) Regulations 2007 or the Home Report if in relation to a residential property in Scotland.
Map data ©OpenStreetMap contributors.





