Hambro Close, Rayleigh, SS6

- PROPERTY TYPE
Terraced
- BEDROOMS
3
- BATHROOMS
2
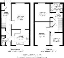
- SIZE
947 sq ft
88 sq m
- TENUREDescribes how you own a property. There are different types of tenure - freehold, leasehold, and commonhold.Read more about tenure in our glossary page.
Freehold
Key features
- 2 Double Bedrooms + 1 single which could also work as a study
- Beautiful views across the fields
- 50ft South-East Facing Garden
- Solar Panels owned outright that are included in the sale of the property
- 20-minute walk to Rayleigh Station taking you to London Liverpool Street in 45 minutes
- 15-minute walk to Rayleigh High Street
- Catchment of Edward Francis Primary School and Fitzwimarc Secondary School (5-10 minute walk)
- Guide Price - £300,000 - £325,000
- Huge potential to put your own stamp on it as well as extend (subject to planning permission)
- Downstairs W/C
Description
| 3 Bedrooms | Stunning Field Views | South-East Facing Garden | Solar Panels | Scope to Extend (STPP)
Nestled in a peaceful setting with picturesque views across open fields, this charming 3-bedroom terraced house offers a perfect blend of comfort, convenience, and future potential.
Inside, the home features 2 spacious double bedrooms and a versatile single room, ideal as a study or nursery. The 50ft south-east facing garden is a true highlight—perfect for relaxing, gardening, or entertaining.
The living space is complemented by the practicality of a downstairs W/C, and the property also boasts fully owned solar panels, keeping energy bills down and adding to the home's efficiency.
Just a 20-minute walk to Rayleigh Station, with direct trains to London Liverpool Street in approx. 45 minutes, and only 15 minutes on foot to Rayleigh High Street, offering a range of shops, restaurants, and everyday amenities.
Families will love the location, Edward Francis Primary School and Fitzwimarc Secondary School are both within a 5-10 minute walk, placing top-tier education right on your doorstep.
With potential to extend (subject to planning permission), this home offers a fantastic opportunity to put your own stamp on it in a highly desirable area.
EPC Rating: B
Parking - On street
Unallocated Street parking 10 seconds from the front door
- COUNCIL TAXA payment made to your local authority in order to pay for local services like schools, libraries, and refuse collection. The amount you pay depends on the value of the property.Read more about council Tax in our glossary page.
- Band: C
- PARKINGDetails of how and where vehicles can be parked, and any associated costs.Read more about parking in our glossary page.
- On street
- GARDENA property has access to an outdoor space, which could be private or shared.
- Private garden
- ACCESSIBILITYHow a property has been adapted to meet the needs of vulnerable or disabled individuals.Read more about accessibility in our glossary page.
- Ask agent
Hambro Close, Rayleigh, SS6
Add an important place to see how long it'd take to get there from our property listings.
__mins driving to your place
Get an instant, personalised result:
- Show sellers you’re serious
- Secure viewings faster with agents
- No impact on your credit score
Your mortgage
Notes
Staying secure when looking for property
Ensure you're up to date with our latest advice on how to avoid fraud or scams when looking for property online.
Visit our security centre to find out moreDisclaimer - Property reference 21ac5cb7-d0ef-452b-b800-91c6d0333603. The information displayed about this property comprises a property advertisement. Rightmove.co.uk makes no warranty as to the accuracy or completeness of the advertisement or any linked or associated information, and Rightmove has no control over the content. This property advertisement does not constitute property particulars. The information is provided and maintained by Nest in Essex, Rayleigh. Please contact the selling agent or developer directly to obtain any information which may be available under the terms of The Energy Performance of Buildings (Certificates and Inspections) (England and Wales) Regulations 2007 or the Home Report if in relation to a residential property in Scotland.
*This is the average speed from the provider with the fastest broadband package available at this postcode. The average speed displayed is based on the download speeds of at least 50% of customers at peak time (8pm to 10pm). Fibre/cable services at the postcode are subject to availability and may differ between properties within a postcode. Speeds can be affected by a range of technical and environmental factors. The speed at the property may be lower than that listed above. You can check the estimated speed and confirm availability to a property prior to purchasing on the broadband provider's website. Providers may increase charges. The information is provided and maintained by Decision Technologies Limited. **This is indicative only and based on a 2-person household with multiple devices and simultaneous usage. Broadband performance is affected by multiple factors including number of occupants and devices, simultaneous usage, router range etc. For more information speak to your broadband provider.
Map data ©OpenStreetMap contributors.




