
2 bedroom detached house for sale
The Crescents, Reydon, Southwold, Suffolk, IP18

- PROPERTY TYPE
Detached
- BEDROOMS
2
- BATHROOMS
2
- SIZE
Ask agent
- TENUREDescribes how you own a property. There are different types of tenure - freehold, leasehold, and commonhold.Read more about tenure in our glossary page.
Freehold
Key features
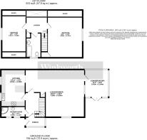
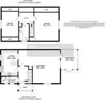
- Detached chalet house in a popular cul-de-sac
- Offered with vacant possession
- Side conservatory/boot room and spacious main hallway
- Generous double-aspect principal reception room with access to a large conservatory
- Kitchen with shaker-style units and space for appliances
- Two double bedrooms with useful eaves storage
- Ground-floor wet room and first-floor family bathroom
- Driveway, garage and enclosed garden with mature planting
Description
Approached via a driveway and garage, a pathway leads through a lawned front garden bordered by mature shrubs and perennials. A charming side conservatory that doubles as a practical boot room is a useful addition. From here, the main hallway sets the tone, offering access to well-proportioned rooms designed with both family life and entertaining in mind. The principal reception room is a bright, double-aspect space, with generous proportions and patio doors flowing seamlessly into a larger conservatory overlooking the garden – a delightful spot to relax and enjoy the changing seasons. The kitchen, fitted with shaker-style units in a cream finish, provides ample room for cooking and gathering, with twin windows drawing in natural light and space for all the essentials of modern living.
Upstairs, a spacious landing leads to two well-sized double bedrooms, both benefitting from eaves storage. The property is thoughtfully arranged with a ground-floor wet room and a first-floor family bathroom, ensuring convenience across both levels.
Outside, the private rear garden, enclosed by fencing and framed with planting, creates a peaceful retreat – ideal for summer evenings, gardening or simply enjoying the calm of its setting.
Council Tax Band: D
Local Authority - East Suffolk Council
We have been advised that the property has the following services. Mains water, mains drainage, electricity and Electric heating.
Winkworth wishes to inform prospective buyers and tenants that these particulars are a guide and act as information only. All our details are given in good faith and believed to be correct at the time of printing but they don’t form part of an offer or contract. No Winkworth employee has authority to make or give any representation or warranty in relation to this property. All fixtures and fittings, whether fitted or not are deemed removable by the vendor unless stated otherwise and room sizes are measured between internal wall surfaces, including furnishings. The services, systems and appliances have not been tested, and no guarantee as to their operability or efficiency can be given.
Brochures
Web Details- COUNCIL TAXA payment made to your local authority in order to pay for local services like schools, libraries, and refuse collection. The amount you pay depends on the value of the property.Read more about council Tax in our glossary page.
- Band: D
- PARKINGDetails of how and where vehicles can be parked, and any associated costs.Read more about parking in our glossary page.
- Yes
- GARDENA property has access to an outdoor space, which could be private or shared.
- Yes
- ACCESSIBILITYHow a property has been adapted to meet the needs of vulnerable or disabled individuals.Read more about accessibility in our glossary page.
- Ask agent
The Crescents, Reydon, Southwold, Suffolk, IP18
Add an important place to see how long it'd take to get there from our property listings.
__mins driving to your place
Get an instant, personalised result:
- Show sellers you’re serious
- Secure viewings faster with agents
- No impact on your credit score
Your mortgage
Notes
Staying secure when looking for property
Ensure you're up to date with our latest advice on how to avoid fraud or scams when looking for property online.
Visit our security centre to find out moreDisclaimer - Property reference SOW250210. The information displayed about this property comprises a property advertisement. Rightmove.co.uk makes no warranty as to the accuracy or completeness of the advertisement or any linked or associated information, and Rightmove has no control over the content. This property advertisement does not constitute property particulars. The information is provided and maintained by Winkworth, Southwold. Please contact the selling agent or developer directly to obtain any information which may be available under the terms of The Energy Performance of Buildings (Certificates and Inspections) (England and Wales) Regulations 2007 or the Home Report if in relation to a residential property in Scotland.
*This is the average speed from the provider with the fastest broadband package available at this postcode. The average speed displayed is based on the download speeds of at least 50% of customers at peak time (8pm to 10pm). Fibre/cable services at the postcode are subject to availability and may differ between properties within a postcode. Speeds can be affected by a range of technical and environmental factors. The speed at the property may be lower than that listed above. You can check the estimated speed and confirm availability to a property prior to purchasing on the broadband provider's website. Providers may increase charges. The information is provided and maintained by Decision Technologies Limited. **This is indicative only and based on a 2-person household with multiple devices and simultaneous usage. Broadband performance is affected by multiple factors including number of occupants and devices, simultaneous usage, router range etc. For more information speak to your broadband provider.
Map data ©OpenStreetMap contributors.





