
3 bedroom semi-detached house for sale
Woodview, Embsay, Skipton, North Yorkshire, BD23

- PROPERTY TYPE
Semi-Detached
- BEDROOMS
3
- BATHROOMS
1
- SIZE
917 sq ft
85 sq m
- TENUREDescribes how you own a property. There are different types of tenure - freehold, leasehold, and commonhold.Read more about tenure in our glossary page.
Freehold
Key features
- Three bedrooms
- Extended semi detached
- Well presented throughout
- Embsay village location
- Private driveway and adjoining garage
- South facing rear garden
- Recently updated property
- Stunning long distance views
Description
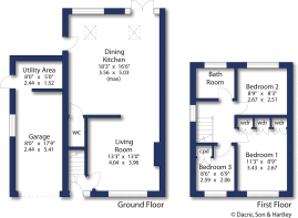
On entering the property from the front elevation, through into the entrance hall with staircase leading to the first floor and access to the ground floor accommodation. The living room is of a great size with large UPVC window to the front and Karndean flooring flowing through to the open plan and extended dining kitchen, which includes an array of modern base, wall and drawer units with worktops over, sunken stainless steel sink, integrated fridge/freezer, dishwasher and eye level electric oven. The kitchen island provides additional seating with AEG induction hob with integrated extraction, two Velux windows allowing for natural lighting as well as side access and rear access to the private garden via the French double doors. Also to the ground floor is a useful downstairs cloakroom, comprising of a low flush w.c. and extractor fan.
To the first floor, there are two double bedrooms with the master bedroom located to the front of the property with lovely views and a range of fitted wardrobes. Bedroom two is to the rear, again of a lovely size. The third bedroom is situated to the front, currently set up as a working from home office but could be used as a single bed space, with fitted cupboard over the bulkhead. The house bathroom with three piece suite in white, comprising of a panelled bath with shower over, low flush w.c., pedestal hand wash basin, partially tiled walling, towel rail radiator and vinyl flooring.
Externally, to the front is a well-stocked garden with decorative bushes and shrubbery, and block paved driveway leading to the attached garage with electric roller door and a separate utility area to the rear with plumbing/space for a washing machine and dryer, housing the gas combination boiler and side access door. To the rear there is the fantastic south facing garden with pebbled seating area and two lawned garden areas divided by a dry stone boundary wall.
Local Authority & Council Tax Band
• North Yorkshire Council,
• Council Tax Band C
Tenure, Services & Parking
• Freehold
• Mains electricity, gas, water and drainage are installed. Domestic heating is from a gas fired boiler
• Private driveway parking and garage are available on site
• Please note that this property is located within the Yorkshire Dales National Park
Internet & Mobile Coverage
For information on Internet and Mobile coverage access the Ofcom website from this link
Flooding
For information on flood risks please use this link Check for flooding in England - GOV.UK
Embsay is a delightful rural village on the edge of the Yorkshire Dales national park. Amenities include a shop, church, primary school, modern village hall, two public houses and a cricket club. There are fine walks through the surrounding open countryside whilst the market town of Skipton is approximately a couple of miles and offers an excellent range of high quality retail outlets and other amenities. The railway station from the town has services to Leeds, Bradford and London whilst many West Yorkshire as well as East Lancashire business centres are in daily commuting distance.
On entering the village of Embsay from the direction of Skipton, take the second left turning onto Brackenley Lane then first right onto Rockville Drive. Then take the immediate right on to Woodview then the property will be easily identified by our Dacre, Son and Hartley ‘For Sale’ board on the right hand side after a short distance.
Brochures
Particulars- COUNCIL TAXA payment made to your local authority in order to pay for local services like schools, libraries, and refuse collection. The amount you pay depends on the value of the property.Read more about council Tax in our glossary page.
- Band: C
- PARKINGDetails of how and where vehicles can be parked, and any associated costs.Read more about parking in our glossary page.
- Garage,Driveway,Off street,Private
- GARDENA property has access to an outdoor space, which could be private or shared.
- Yes
- ACCESSIBILITYHow a property has been adapted to meet the needs of vulnerable or disabled individuals.Read more about accessibility in our glossary page.
- No wheelchair access
Woodview, Embsay, Skipton, North Yorkshire, BD23
Add an important place to see how long it'd take to get there from our property listings.
__mins driving to your place
Get an instant, personalised result:
- Show sellers you’re serious
- Secure viewings faster with agents
- No impact on your credit score
Your mortgage
Notes
Staying secure when looking for property
Ensure you're up to date with our latest advice on how to avoid fraud or scams when looking for property online.
Visit our security centre to find out moreDisclaimer - Property reference SKI250272. The information displayed about this property comprises a property advertisement. Rightmove.co.uk makes no warranty as to the accuracy or completeness of the advertisement or any linked or associated information, and Rightmove has no control over the content. This property advertisement does not constitute property particulars. The information is provided and maintained by Dacre Son & Hartley, Skipton. Please contact the selling agent or developer directly to obtain any information which may be available under the terms of The Energy Performance of Buildings (Certificates and Inspections) (England and Wales) Regulations 2007 or the Home Report if in relation to a residential property in Scotland.
*This is the average speed from the provider with the fastest broadband package available at this postcode. The average speed displayed is based on the download speeds of at least 50% of customers at peak time (8pm to 10pm). Fibre/cable services at the postcode are subject to availability and may differ between properties within a postcode. Speeds can be affected by a range of technical and environmental factors. The speed at the property may be lower than that listed above. You can check the estimated speed and confirm availability to a property prior to purchasing on the broadband provider's website. Providers may increase charges. The information is provided and maintained by Decision Technologies Limited. **This is indicative only and based on a 2-person household with multiple devices and simultaneous usage. Broadband performance is affected by multiple factors including number of occupants and devices, simultaneous usage, router range etc. For more information speak to your broadband provider.
Map data ©OpenStreetMap contributors.






