Residential development for sale
Grange Road, London, SE1
- SIZE AVAILABLE
1,900-2,200 sq ft
177-204 sq m
- SECTOR
Residential development for sale
- USE CLASSUse class orders: Class E
E
Key features
- Freehold
- Current Use Class E & C3
- Vaccant for 6+months
- Planning to demolish existing and build new commercial space & two apartments
- Planning Ref: 23/AP/0741
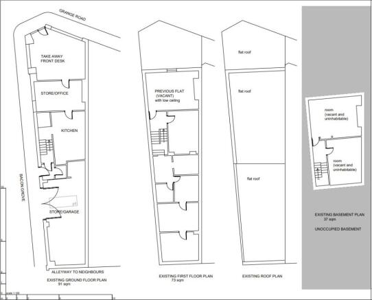
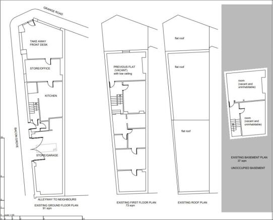
Description
The current property consists of a LGF & GF vacant commercial unit which used to operate as a takeaway restuarant, and one upper floor flat split across first and second floors. Planning was granted in December of 2023, a RICS accredited viability report was submitted to the council alongside the application and is availble to view on the portal.
Grange Road, London, SE1
NEAREST STATIONS
Distances are straight line measurements from the centre of the postcode- Bermondsey Station0.6 miles
- London Bridge Station0.9 miles
- Borough Station0.9 miles
Notes
Disclaimer - Property reference Grange. The information displayed about this property comprises a property advertisement. Rightmove.co.uk makes no warranty as to the accuracy or completeness of the advertisement or any linked or associated information, and Rightmove has no control over the content. This property advertisement does not constitute property particulars. The information is provided and maintained by Foxtons Limited, London - Commercial. Please contact the selling agent or developer directly to obtain any information which may be available under the terms of The Energy Performance of Buildings (Certificates and Inspections) (England and Wales) Regulations 2007 or the Home Report if in relation to a residential property in Scotland.
Map data ©OpenStreetMap contributors.




