
Yarningale Road, Birmingham, West Midlands, B14

- PROPERTY TYPE
Semi-Detached
- BEDROOMS
3
- BATHROOMS
2
- SIZE
Ask agent
- TENUREDescribes how you own a property. There are different types of tenure - freehold, leasehold, and commonhold.Read more about tenure in our glossary page.
Freehold
Description
This beautiful, family home is located in the vibrant suburb of Kings Heath. The wider area boasts thriving cafés, independent shops, and green spaces in nearby Highbury & Kings Heath Parks. For families there is an array of excellent schools and this property is in the catchment area for Colmore Infants and King Edwards VI Camp Hill. For commuters there are frequent buses into Birmingham city centre, and in the near future the brand new Kings Heath train station will open.
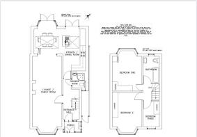
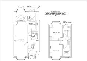
Nestled in a sought-after neighbourhood, this charming semi-detached house boasts three bedrooms, making it an ideal family home.
The ground floor property is comprised of a spacious living room with a bay window, a fully extended modern kitchen with integrated appliances, and a dining area perfect for entertaining guests. There is also a downstairs shower room. Enjoy the convenience of off-street parking. The good size garden provides a tranquil outdoor space for relaxation.
To the first floor, there are two double bedrooms, benefitting from built in wardrobes and a smaller third bedroom along with a modern family bathroom.
Situated close to local amenities, schools, and transport links, this property offers both comfort and convenience for its residents.
Call Dixons today to arrange a viewing!
- COUNCIL TAXA payment made to your local authority in order to pay for local services like schools, libraries, and refuse collection. The amount you pay depends on the value of the property.Read more about council Tax in our glossary page.
- Band: TBC
- PARKINGDetails of how and where vehicles can be parked, and any associated costs.Read more about parking in our glossary page.
- Yes
- GARDENA property has access to an outdoor space, which could be private or shared.
- Yes
- ACCESSIBILITYHow a property has been adapted to meet the needs of vulnerable or disabled individuals.Read more about accessibility in our glossary page.
- Ask agent
Yarningale Road, Birmingham, West Midlands, B14
Add an important place to see how long it'd take to get there from our property listings.
__mins driving to your place
Get an instant, personalised result:
- Show sellers you’re serious
- Secure viewings faster with agents
- No impact on your credit score



Affordability
Notes
Staying secure when looking for property
Ensure you're up to date with our latest advice on how to avoid fraud or scams when looking for property online.
Visit our security centre to find out moreDisclaimer - Property reference KHE250215. The information displayed about this property comprises a property advertisement. Rightmove.co.uk makes no warranty as to the accuracy or completeness of the advertisement or any linked or associated information, and Rightmove has no control over the content. This property advertisement does not constitute property particulars. The information is provided and maintained by Dixons, Kings Heath. Please contact the selling agent or developer directly to obtain any information which may be available under the terms of The Energy Performance of Buildings (Certificates and Inspections) (England and Wales) Regulations 2007 or the Home Report if in relation to a residential property in Scotland.
*This is the average speed from the provider with the fastest broadband package available at this postcode. The average speed displayed is based on the download speeds of at least 50% of customers at peak time (8pm to 10pm). Fibre/cable services at the postcode are subject to availability and may differ between properties within a postcode. Speeds can be affected by a range of technical and environmental factors. The speed at the property may be lower than that listed above. You can check the estimated speed and confirm availability to a property prior to purchasing on the broadband provider's website. Providers may increase charges. The information is provided and maintained by Decision Technologies Limited. **This is indicative only and based on a 2-person household with multiple devices and simultaneous usage. Broadband performance is affected by multiple factors including number of occupants and devices, simultaneous usage, router range etc. For more information speak to your broadband provider.
Map data ©OpenStreetMap contributors.





