
2 bedroom semi-detached house for sale
Home Close, Histon

- PROPERTY TYPE
Semi-Detached
- BEDROOMS
2
- BATHROOMS
1
- SIZE
Ask agent
- TENUREDescribes how you own a property. There are different types of tenure - freehold, leasehold, and commonhold.Read more about tenure in our glossary page.
Freehold
Key features
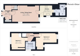
- Large reception hall
- Lounge dining room
- Refitted kitchen
- Utility room
- Cloaks wc
- Two bedroom
- First floor bathroom
- 85' rear garden
- No upward chain
Description
With an 85' rear garden, living/ dining room, well fitted kitchen, ground floor WC and utility room. At present configured as a two bedroom home, but could easily be returned to three bedrooms.
Glazed entrance door to:
Reception hall
Stairs rising to the first floor, radiator, two windows to the front. Attractive wood block flooring. Single cloaks cupboard with Vaillant wall mounted gas boiler.
Living/ Dining room
5.66 m x 3.63 m (18'7" x 11'11")
Continuation of wood block flooring, windows to the rear and side, radiator, fitted flame effect electric fire, door to :
Kitchen
2.72 m x 2.30 m (8'11" x 7'7")
Fitted range of gloss white fronted units with contrasting granite effect work surface, inset stainless steel one and a quarter bowl single drainer sink unit with mixer tap, range of vase units. Continuation of work surface to opposite wall with inset four ring ceramic hob and single oven beneath, canopy extractor above. Matching wall mounted cupboards. Part tiled splashback, window to the side and glazed door to the side. Recessed spot lights to the ceiling. Opening to:
Utility area
1.47 m x 1.24 m (4'10" x 4'1")
Work surface with space and plumbing for washing machine, door to:
Cloaks WC
Counter set wash basin with double cupboard beneath, close coupled WC, window to the rear and wall mounted Dimplex electric heater.
First floor landing.
Radiator, coved cornice, recessed spotlights to the ceiling.
Bedroom one
3.28 m x 2.97 m (10'9" x 9'9")
Radiator, window to the front. Coved cornice and recessed spotlights to the ceiling.
Bedroom two
3.84 m x 2.34 m (12'7" x 7'8")
At present configured as an L shaped room opened to formerly bedroom three. Two windows to the rear, double radiator
Potential bedroom three
2.57 m x 1.70 m (8'5" x 5'7")
Bathroom
Fitted white suite with pedestal wash basin, close coupled wc and bath, fitted Mira shower above. Part ceramic tiling to the walls, window to the side, heated towel rail/radiator.
Outside
To the front there is an open planned garden gravelled and proving a possible single parking space.
Rear garden
Approx 85' in depth with gated pedestrian side access, paved path way and lawn. Timber shed.
Tenure
Freehold
Viewing
By prior appointment with Pocock and Shaw
Services
All mains services are connected.
Brochures
Brochure of 28 Home CloseKFB- COUNCIL TAXA payment made to your local authority in order to pay for local services like schools, libraries, and refuse collection. The amount you pay depends on the value of the property.Read more about council Tax in our glossary page.
- Ask agent
- PARKINGDetails of how and where vehicles can be parked, and any associated costs.Read more about parking in our glossary page.
- Yes
- GARDENA property has access to an outdoor space, which could be private or shared.
- Yes
- ACCESSIBILITYHow a property has been adapted to meet the needs of vulnerable or disabled individuals.Read more about accessibility in our glossary page.
- Ask agent
Home Close, Histon
Add an important place to see how long it'd take to get there from our property listings.
__mins driving to your place
Get an instant, personalised result:
- Show sellers you’re serious
- Secure viewings faster with agents
- No impact on your credit score
Your mortgage
Notes
Staying secure when looking for property
Ensure you're up to date with our latest advice on how to avoid fraud or scams when looking for property online.
Visit our security centre to find out moreDisclaimer - Property reference PCZ-50582631. The information displayed about this property comprises a property advertisement. Rightmove.co.uk makes no warranty as to the accuracy or completeness of the advertisement or any linked or associated information, and Rightmove has no control over the content. This property advertisement does not constitute property particulars. The information is provided and maintained by Pocock & Shaw, Cambridge. Please contact the selling agent or developer directly to obtain any information which may be available under the terms of The Energy Performance of Buildings (Certificates and Inspections) (England and Wales) Regulations 2007 or the Home Report if in relation to a residential property in Scotland.
*This is the average speed from the provider with the fastest broadband package available at this postcode. The average speed displayed is based on the download speeds of at least 50% of customers at peak time (8pm to 10pm). Fibre/cable services at the postcode are subject to availability and may differ between properties within a postcode. Speeds can be affected by a range of technical and environmental factors. The speed at the property may be lower than that listed above. You can check the estimated speed and confirm availability to a property prior to purchasing on the broadband provider's website. Providers may increase charges. The information is provided and maintained by Decision Technologies Limited. **This is indicative only and based on a 2-person household with multiple devices and simultaneous usage. Broadband performance is affected by multiple factors including number of occupants and devices, simultaneous usage, router range etc. For more information speak to your broadband provider.
Map data ©OpenStreetMap contributors.









