Darmorohori, Chania, Crete, Greece
- PROPERTY TYPE
Land
- SIZE
19,214 sq ft
1,785 sq m
Key features
- Entirely planted with olive trees
- Electricity on site
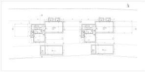
- Existing building permit for 2 villas ( each 137m2) with pools
- Short distance to amenities and beaches
Description
This plot of 1.784,94m2 includes a building permission for two independent villas, each of 137,94m2, each with a private swimming pool of 29,25m2, and each with a private basement of 73,66m2!
The villas are designed on two levels and are attached by a covered area. The ground floors consist of a spacious open plan kitchen / living room, a bathroom with a wall-to-wall shower and a double bedroom with sliding patio doors opening onto the sun terraces surrounding the swimming pool. Internal staircases lead to the lower floor which will be the basement, and the upper floors which will consist of a landing hall, a shared bathroom with wall-to-wall shower, and two double bedrooms, one of which has patio doors opening onto a spacious balcony! 384m2 of the plot will be used as a common access for the villas and each villa with have exclusive use of 700m2 of land.
Most probably from the second floor of the villas, there will also be some sea views along with the mountain views.
All documentation is in place and the future owner of the land could start the construction process immediately!
Access is provided easily by the main asphalt road, while water and electricity and found on site.
The land is long and narrow and has a very slight slope towards the east and then another very slight slope towards the west, providing tranquil rural views of the hills, villages and mountains and making the construction process easy.
DISTANCES
* From mini market: 3,3km / 5 min drive
* From tavern: 600m / 8 min walk
* From beach: 3,8km / 6 min drive
* From nearest town: 4,7km / 6 min drive
* From Chania Center: 27,5km / 30 min drive
* From airport: 43,4km / 45 min drive
Brochures
Brochure 1Darmorohori, Chania, Crete, Greece
NEAREST AIRPORTS
Distances are straight line measurements- Chania(International)19.9 miles
- Heraklion(International)79.2 miles
Advice on buying Greek property
Learn everything you need to know to successfully find and buy a property in Greece.
Notes
This is a property advertisement provided and maintained by Your Home On Crete, Chania (reference YHOC-237) and does not constitute property particulars. Whilst we require advertisers to act with best practice and provide accurate information, we can only publish advertisements in good faith and have not verified any claims or statements or inspected any of the properties, locations or opportunities promoted. Rightmove does not own or control and is not responsible for the properties, opportunities, website content, products or services provided or promoted by third parties and makes no warranties or representations as to the accuracy, completeness, legality, performance or suitability of any of the foregoing. We therefore accept no liability arising from any reliance made by any reader or person to whom this information is made available to. You must perform your own research and seek independent professional advice before making any decision to purchase or invest in overseas property.





