Edale Close, Hazel Grove, Stockport SK7 6JZ

- PROPERTY TYPE
Semi-Detached
- BEDROOMS
3
- BATHROOMS
1
- SIZE
Ask agent
- TENUREDescribes how you own a property. There are different types of tenure - freehold, leasehold, and commonhold.Read more about tenure in our glossary page.
Freehold
Description
SUMMARY:
Three bed c1950's semi-detached in sought-after location within the catchment for Norbury Hall Primary School and close to the village centre and railway station with good road and rail links. Enjoys a pleasant and peaceful cul-de-sac position off Lyme Road. Benefits from the installation of GFCH and double glazing. Briefly comprises hall, through living room, conservatory, kitchen, three bedrooms, bathroom with electric shower and separate wc. Small detached garage with long driveway. Lawned gardens to front and rear with rear being of good size and backing onto railway embankment. Immediate vacant possession is available with no onward chain.
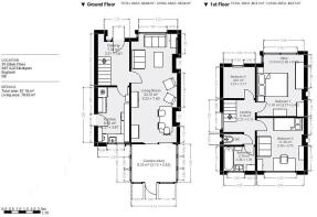
GROUND FLOOR
CANOPIED PORCH
ENTRANCE HALL
2.97m x 2.21m (9'9" x 7'3") max. Double glazed and leaded front door, double glazed side panel, radiator, cornice, wood laminate flooring, gas and electricity meter cupboards, staircase to first floor, understairs cupboard.
THROUGH LIVING ROOM
7.92m x 3.28m (26'0" x 10'9") max. Into bay with double glazed windows, marble fireplace, cornice, two radiators, wood laminate flooring, double glazed sliding patio door and window to conservatory.
CONSERVATORY (REAR)
3m x 2.82m (9'10" x 9'3") max. Double glazed windows and door to rear garden, radiator.
KITCHEN (REAR)
3.73m x 2.18m (12'3" x 7'2") max. Base and wall cabinets incorporating one and a half bowl stainless steel sink unit with mixer tap, work surfaces with tiled wall backs, integral cooker of electric oven/grill and hob with extractor hood over, integral dishwasher, plumbed for automatic washing machine, double glazed window, double glazed door to outside rear.
FIRST FLOOR
LANDING
Double glazed window, cornice, staircase balustrade, access to loft space (with fold-down ladder).
BEDROOM 1 (FRONT)
4.19m x 3.25m (13'9" x 10'8") max. Into bay with double glazed windows, radiator.
BEDROOM 2 (REAR)
3.71m x 3.25m (12'2" x 10'8") max. Double glazed window, radiator.
BEDROOM 3 (FRONT)
2.26m x 2.21m (7'5" x 7'3") max. Double glazed window, radiator.
BATHROOM (REAR)
2.18m x 1.68m (7'2" x 5'6") max. Panelled bath with electric shower over, pedestal wash hand basin, double glazed window, chrome towel warmer/radiator, part tiled walls, cupboard housing gas CH boiler.
SEPARATE WC (REAR)
1.24m x 0.79m (4'1" x 2'7") max. Low level wc, double glazed window.
OUTSIDE
GARAGE
Detached concrete section garage with metal up and over door.
GARDEN
C65' rear garden laid to lawn with borders, evergreens, flagged patio, timber deck, cold water tap, security nightlight, external power points, greenhouse, timber shed. Boundary fencing. Smaller front garden lawned with borders and evergreens. Long driveway/hardstanding.
TENURE:
We have been advised by the present owner that the property is Freehold. We would recommend that your conveyancer checks the tenure prior to the exchange of contracts.
COUNCIL TAX:
We have been advised that the Council Tax Band is C. All enquiries to Stockport Metropolitan Borough Council.
ENERGY PERFORMANCE CERTIFICATE:
The Energy Efficiency Rating is D. Further information is available on request and online.
VIEWING:
Strictly by appointment through Woodhall Properties .
Monday - Thursday 9.00am - 5.30pm, Friday 9.00am - 5.00pm, Saturday 9.00am - 4.00pm and Sunday 12.00pm - 4.00pm
- COUNCIL TAXA payment made to your local authority in order to pay for local services like schools, libraries, and refuse collection. The amount you pay depends on the value of the property.Read more about council Tax in our glossary page.
- Band: C
- PARKINGDetails of how and where vehicles can be parked, and any associated costs.Read more about parking in our glossary page.
- Garage
- GARDENA property has access to an outdoor space, which could be private or shared.
- Yes
- ACCESSIBILITYHow a property has been adapted to meet the needs of vulnerable or disabled individuals.Read more about accessibility in our glossary page.
- Ask agent
Edale Close, Hazel Grove, Stockport SK7 6JZ
Add an important place to see how long it'd take to get there from our property listings.
__mins driving to your place
Get an instant, personalised result:
- Show sellers you’re serious
- Secure viewings faster with agents
- No impact on your credit score


Your mortgage
Notes
Staying secure when looking for property
Ensure you're up to date with our latest advice on how to avoid fraud or scams when looking for property online.
Visit our security centre to find out moreDisclaimer - Property reference S1467740. The information displayed about this property comprises a property advertisement. Rightmove.co.uk makes no warranty as to the accuracy or completeness of the advertisement or any linked or associated information, and Rightmove has no control over the content. This property advertisement does not constitute property particulars. The information is provided and maintained by Woodhall Properties, Hazel Grove. Please contact the selling agent or developer directly to obtain any information which may be available under the terms of The Energy Performance of Buildings (Certificates and Inspections) (England and Wales) Regulations 2007 or the Home Report if in relation to a residential property in Scotland.
*This is the average speed from the provider with the fastest broadband package available at this postcode. The average speed displayed is based on the download speeds of at least 50% of customers at peak time (8pm to 10pm). Fibre/cable services at the postcode are subject to availability and may differ between properties within a postcode. Speeds can be affected by a range of technical and environmental factors. The speed at the property may be lower than that listed above. You can check the estimated speed and confirm availability to a property prior to purchasing on the broadband provider's website. Providers may increase charges. The information is provided and maintained by Decision Technologies Limited. **This is indicative only and based on a 2-person household with multiple devices and simultaneous usage. Broadband performance is affected by multiple factors including number of occupants and devices, simultaneous usage, router range etc. For more information speak to your broadband provider.
Map data ©OpenStreetMap contributors.





