
4 bedroom end of terrace house for sale
High Street, Eston

- PROPERTY TYPE
End of Terrace
- BEDROOMS
4
- BATHROOMS
4
- SIZE
Ask agent
- TENUREDescribes how you own a property. There are different types of tenure - freehold, leasehold, and commonhold.Read more about tenure in our glossary page.
Freehold
Key features
- End of Terrace Property
- Four/Five Bedrooms
- En-Suite
- Stunning Character Packed Victorian Property
- Exudes Quality & Craftmanship
- Brilliant Family Home Spanning Approximately 2,600 Sq. Ft
- Spacious Living Inside & Out
- Summerhouse
- Substantial Southerly Facing Garden
Description
Mains Utilities
Gas Central Heating
Mains Sewerage
No Known Flooding Risk
No Known Legal Obligations
Standard Broadband & Mobile Signal
No Known Rights of Way
Tenure - Freehold
Council Tax Band D
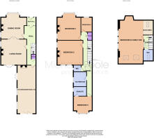
GROUND FLOOR
Entrance Hall
1.78m x 1.59m
Original hardwood entrance door, stunning original Victorian tiled floor and part glazed door to the hall.
Hall
1.76m x 7.76m
2.26m reducing to 1.76m x 7.76m reducing to 2.55m Original tiled flooring flows through from the entrance hall, original panelled doors to all rooms, lovely period details, under stairs storage cupboard and staircase to the first floor.
Dining Room
4.42m x 4.22m
4.90m reducing to 4.42m x 4.22m increasing to 5.48m into the bay A generous bay windowed room with neutral decoration, cast iron fireplace with tiled inserts and slate hearth, original features, radiator, UPVC sash windows and double doors to the living room.
Living Room
4.9m x 4.9m
A stunning light and bright room packed with original features, cast iron fireplace with tiled inserts and slate hearth, lush grey carpet, UPVC windows and French doors open to the vast rear garden.
Kitchen/Dining/Family Room
3.6m x 9.18m
A showstopper of a room offering versatile living space with rustic brick feature wall with wood burning stove, Herringbone oak flooring and UPVC French doors to the rear garden patio area. A high quality 1909 shaker fitted kitchen with hardwood worktops and upstands, integrated twin ‘Slide n Hide' Neff electric ovens, island unit incorporating a five ring gas hob, integrated washing machine and dishwasher. Victorian style tiled flooring, downlighters and feature lighting, twin UPVC sash windows and graphite bi-folding doors open to the rear garden.
FIRST FLOOR
Landing
1.41m x 8.05m
1.89m reducing to 1.41m x 8.05m reducing to1.41m A vast restore space with lovely period details, original panelled doors to all rooms, neutral carpet, radiator and staircase to the second floor.
Bedroom One
4.53m x 4.39m
4.53m x 4.39m increasing to 5.54m into the bay A stunning bay windowed room with feature wall and wood burning stove, radiator and UPVC windows.
Bedroom Two
5.03m x 4.99m
With traditional style decoration and features, radiator and UPVC window sash windows.
Bedroom Three
3.57m x 2.77m
3.57m x 2.77m increasing to 3.62m into the bay A light and bright bay windowed room with original features, feature wall, radiator and UPVC sash windows with views over the rear garden and Eston Hills. Door to the en-suite.
En-Suite
2.47m x 1.8m
A fantastic modern white suite with thermostatic shower, extractor fan, part tiled walls, Victorian style towel radiator, downlighters and UPVC sash window.
Bathroom
2.52m x 2.81m
A stunning room with period style fixings, generous bath with shower attachment, separate thermostatic shower with rinser attachment, oak Amtico style flooring, Victorian style radiator and UPVC sash window.
WC
1.48m x 1.23m
A white modern suite with part tiled walls, oak Amtico style flooring and UPVC sash window.
SECOND FLOOR
Landing Area
1.88m x 2.73m
A light and airy space with vaulted ceiling, Velux style roof window, radiator, doors to the WC and bedroom five/family space.
WC
1.88m x 2.18m
A white modern suite with sanded original floorboards, chrome towel radiator, tiled splashback, spotlight lighting and Velux style roof window.
Bedroom Five/Family Room
4.96m x 8.24m
A vast versatile space with vaulted ceiling offering numerous uses, exposed feature brickwork and beams, radiators, showered with natural light from the twin Velux roof windows and further UPVC windows. Open to …
Bar Area
2.07m x 2.87m
A fantastic bar area with shelved storage and part wood clad walls, spotlight lighting and Velux style roof window.
EXTERNALLY
WC/Boiler Room
1.37m x 2.19m
Conveniently located in the rear garden housing the Worcester Greenstar boiler and Megaflo system, shelved storage and WC with UPVC window.
Summerhouse
2.79m x 4.6m
A nicely positioned summerhouse, excellent for entertaining with power, lighting, oak Amtico style flooring and bespoke seating area, heating and UPVC window.
Gardens
The front of the property benefits from an elevated position with neat laid lawn with privet hedging and gated access to the rear garden. The fantastic southerly facing rear garden offers space for the largest of families and includes a substantial Indian stone paved patio area, easy access to the kitchen and living areas via French doors and bi-folding doors, steps up to a further seating area including a brick barbeque and summerhouse, laid to lawn with border planting including fruit trees and privet hedging and there is double gated access to the rear of the property. A true family size garden.
Parking
On street parking at front and secure off street private parking through double gates to the rear of property.
.
Mains Utilities Gas Central Heating Mains Sewerage No Known Flooding Risk No Known Legal Obligations Standard Broadband & Mobile Signal No Known Rights of Way
Tenure - Freehold
Council Tax Band D
AGENTS REF:
CF/LS/RED250293/11092025
- COUNCIL TAXA payment made to your local authority in order to pay for local services like schools, libraries, and refuse collection. The amount you pay depends on the value of the property.Read more about council Tax in our glossary page.
- Band: D
- PARKINGDetails of how and where vehicles can be parked, and any associated costs.Read more about parking in our glossary page.
- On street
- GARDENA property has access to an outdoor space, which could be private or shared.
- Yes
- ACCESSIBILITYHow a property has been adapted to meet the needs of vulnerable or disabled individuals.Read more about accessibility in our glossary page.
- Ask agent
High Street, Eston
Add an important place to see how long it'd take to get there from our property listings.
__mins driving to your place
Get an instant, personalised result:
- Show sellers you’re serious
- Secure viewings faster with agents
- No impact on your credit score
Your mortgage
Notes
Staying secure when looking for property
Ensure you're up to date with our latest advice on how to avoid fraud or scams when looking for property online.
Visit our security centre to find out moreDisclaimer - Property reference RED250293. The information displayed about this property comprises a property advertisement. Rightmove.co.uk makes no warranty as to the accuracy or completeness of the advertisement or any linked or associated information, and Rightmove has no control over the content. This property advertisement does not constitute property particulars. The information is provided and maintained by Michael Poole, Eston. Please contact the selling agent or developer directly to obtain any information which may be available under the terms of The Energy Performance of Buildings (Certificates and Inspections) (England and Wales) Regulations 2007 or the Home Report if in relation to a residential property in Scotland.
*This is the average speed from the provider with the fastest broadband package available at this postcode. The average speed displayed is based on the download speeds of at least 50% of customers at peak time (8pm to 10pm). Fibre/cable services at the postcode are subject to availability and may differ between properties within a postcode. Speeds can be affected by a range of technical and environmental factors. The speed at the property may be lower than that listed above. You can check the estimated speed and confirm availability to a property prior to purchasing on the broadband provider's website. Providers may increase charges. The information is provided and maintained by Decision Technologies Limited. **This is indicative only and based on a 2-person household with multiple devices and simultaneous usage. Broadband performance is affected by multiple factors including number of occupants and devices, simultaneous usage, router range etc. For more information speak to your broadband provider.
Map data ©OpenStreetMap contributors.







