Bosworth Drive, Southport, Merseyside, PR8

- PROPERTY TYPE
Detached
- BEDROOMS
4
- BATHROOMS
1
- SIZE
1,442 sq ft
134 sq m
- TENUREDescribes how you own a property. There are different types of tenure - freehold, leasehold, and commonhold.Read more about tenure in our glossary page.
Freehold
Key features
- No onward chain
- Close to Ainsdale Village - train station, shops and bars
- Private rear garden, driveway and garage
- Plenty of scope for extensions/improvement
- Early viewings are essential
Description
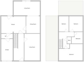
Entrance Hall - Entrance door to the front, radiator, stairs leading to the first floor landing.
Kitchen - 3.7m x 4.6m - Large kitchen diner, double glazed windows and door to the rear, a range of wooden base and eye level units with work surfaces incorporating sink unit with mixer taps, electric hob, oven, integrated dishwasher, tiled walls, tiled flooring, radiator.
Cloakroom WC - WC, hand wash basin, part tiled walls, tiled flooring.
Dining Room - 3.7m x 3.0m - Archway through to the living room, coving to the ceiling, radiator.
Living Room - 5.5m x 3.0m - Double glazed window and doors to the rear, radiator, coving to the ceiling.
Front Reception Room - 5.9m x 3.5m - Double glazed window to the front, radiator, living flame gas fire with surround, coving to the ceiling.
First floor landing -
Bedroom One - 5.5m x 2.7m - Two double glazed windows, large bedroom (was originally two bedrooms - could be converted back to two), two radiators, coving to the ceiling, fitted wardrobes.
Bedroom Two - 3.4m x 3.2m - Double glazed window, radiator, fitted wardrobes, coving to the ceiling.
Bedroom Three - 3.4m x 2.2m - Double glazed window, radiator, coving to the ceiling.
Family Bathroom - Two double glazed windows, white bathroom suite comprising panelled bath, walk in shower cubicle, pedestal wash basin, WC, tiled flooring, tiled walls,
Exterior - To the front is a driveway providing off road parking and access to the garage. The garage has up and over door, power and lighting, futher door into the house. To the rear is a good size private garden, paved patio areas, plenty of well stocked borders and mature trees. To the side is a further garden area that again is a useful space.
Agents Notes: The vendor has informed ourselves that there is no onward chain. The EPC rating is D.
- COUNCIL TAXA payment made to your local authority in order to pay for local services like schools, libraries, and refuse collection. The amount you pay depends on the value of the property.Read more about council Tax in our glossary page.
- Ask agent
- PARKINGDetails of how and where vehicles can be parked, and any associated costs.Read more about parking in our glossary page.
- Garage,Driveway
- GARDENA property has access to an outdoor space, which could be private or shared.
- Front garden,Patio,Private garden,Enclosed garden,Rear garden,Back garden
- ACCESSIBILITYHow a property has been adapted to meet the needs of vulnerable or disabled individuals.Read more about accessibility in our glossary page.
- Ask agent
Energy performance certificate - ask agent
Bosworth Drive, Southport, Merseyside, PR8
Add an important place to see how long it'd take to get there from our property listings.
__mins driving to your place
Get an instant, personalised result:
- Show sellers you’re serious
- Secure viewings faster with agents
- No impact on your credit score
Your mortgage
Notes
Staying secure when looking for property
Ensure you're up to date with our latest advice on how to avoid fraud or scams when looking for property online.
Visit our security centre to find out moreDisclaimer - Property reference 03011919. The information displayed about this property comprises a property advertisement. Rightmove.co.uk makes no warranty as to the accuracy or completeness of the advertisement or any linked or associated information, and Rightmove has no control over the content. This property advertisement does not constitute property particulars. The information is provided and maintained by Spencer Gordon, Ainsdale. Please contact the selling agent or developer directly to obtain any information which may be available under the terms of The Energy Performance of Buildings (Certificates and Inspections) (England and Wales) Regulations 2007 or the Home Report if in relation to a residential property in Scotland.
*This is the average speed from the provider with the fastest broadband package available at this postcode. The average speed displayed is based on the download speeds of at least 50% of customers at peak time (8pm to 10pm). Fibre/cable services at the postcode are subject to availability and may differ between properties within a postcode. Speeds can be affected by a range of technical and environmental factors. The speed at the property may be lower than that listed above. You can check the estimated speed and confirm availability to a property prior to purchasing on the broadband provider's website. Providers may increase charges. The information is provided and maintained by Decision Technologies Limited. **This is indicative only and based on a 2-person household with multiple devices and simultaneous usage. Broadband performance is affected by multiple factors including number of occupants and devices, simultaneous usage, router range etc. For more information speak to your broadband provider.
Map data ©OpenStreetMap contributors.




