Office for sale
59/61, Lyndhurst Road, Worthing, BN11 2DB
- SIZE AVAILABLE
1,173 sq ft
109 sq m
- SECTOR
Office for sale
Key features
- Located close to Worthing Hospital and local amenities such as Waitrose
- Within walking distance of Worthing Station and Worthing town centre
- Three parking spaces with the building but plentiful public and street parking nearby
- Close to the amenities of Beach House Park and within 10 minutes for Worthing seafront
- Of interest to Owners Occupiers and Developers
- Existing E Class premises
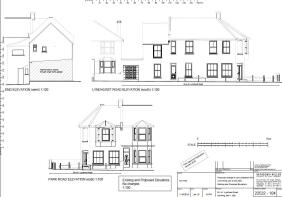
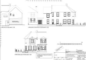
- Planning for 2 x Two bedroom Flats
- No CIL payment
- Total GIA 1,609 sqft (149.55 sqm)
- Price £315,000 for the property with vacant possession
Description
The property comprises an end-of-terrace period building, arranged over two storeys. Elevations appear to be in solid brick, which have been rendered and painted, beneath a pitched and concrete-tiled roof.
Internally, the property has been divided horizontally to form two self-contained commercial interests; being a lock-up shop / office to the ground floor, and an office on the first floor.
Outside is a garage to the western side of the building, which can be accessed from the ground floor, together with three off-road car parking spaces.
Location
Worthing is the largest town in west Sussex with a population of 111,400 (population census 2021).
The town has excellent road communications, being situated on the A27 dual-carriageway which runs east to Brighton and west to Portsmouth/Southampton.
The property occupies a prominent corner position in the centre of Worthing, on the northern side of Lyndhurst Road to the west of its junction with Park Road. Worthing Hospital lies about 100 yards to the east.
Planning
Existing Use
A new Use Classes Order (UCO) came into effect on 1st September 2020. Under the new UCO a new Use Class E was introduced to cover commercial, business and service uses. Use Class E encompasses A1, A2, A3, B1 and some D1 and D2 uses under the former UCO. We therefore understand that the premises benefit from Class E 'Commercial Business and Service' use within the Use Classes Order 2020.
Proposed Use
The premises also benefit from Prior Approval for the proposed change of use from Office/Commercial to two residential flats under NOTICE/0013/25.
This development is NOT liable for Community Infrastructure Levy (CIL) and therefore no CIL is payable.
Please note that whilst we endeavour to confirm the prevailing approved planning use for properties we market we can offer no guarantees in this regard. Planning information is stated to the best of our knowledge. Interested parties are advised to make their own enquiries to satisfy themselves in respect of planning issues.
VAT
We understand that the property is not elected for VAT.
Accommodation
The total Gross Internal Area (GIA) for the property is:
Ground Floor - 802 sqft (74.55 sqm)
First Floor - 807 sqft (75 sqm)
Total GIA - 1,609 (149.55 sqm)
Business Rates / Council Tax Band
Rateable Value (2023): 59 - £6,700 / 61 - £6,000
Rateable Value (Draft - Scheduled for Implementation from 1st April 2026): 59 - £7,800 / 61 - £7,000
Occupiers will pay approximately 50% of this per annum (on sub £50,001 Rateable Values) and approximately 55% on Ratable Values above.
Interested parties should make their own enquiries to satisfy themselves of their business rates liability:
EPC
Further information on request.
Legal Fees
Each party to bear their own legal costs incurred.
AML
In accordance with current Government legislation, we are legally required to conduct Anti-Money Laundering (AML) checks on all prospective purchasers or tenants where the transaction involves a capital value of €15,000 (EUR) or more, or a rental value of €10,000 (EUR) per calendar month or greater.
This process includes verifying identity, as well as confirming the source and availability of funds. Please note that we must obtain and record this information before any transaction can be formalised or contracts exchanged.
Brochures
59/61, Lyndhurst Road, Worthing, BN11 2DB
NEAREST STATIONS
Distances are straight line measurements from the centre of the postcode- Worthing Station0.5 miles
- East Worthing Station0.7 miles
- West Worthing Station1.2 miles

Notes
Disclaimer - Property reference 7916FH. The information displayed about this property comprises a property advertisement. Rightmove.co.uk makes no warranty as to the accuracy or completeness of the advertisement or any linked or associated information, and Rightmove has no control over the content. This property advertisement does not constitute property particulars. The information is provided and maintained by Flude Property Consultants, Chichester. Please contact the selling agent or developer directly to obtain any information which may be available under the terms of The Energy Performance of Buildings (Certificates and Inspections) (England and Wales) Regulations 2007 or the Home Report if in relation to a residential property in Scotland.
Map data ©OpenStreetMap contributors.






