Walton Road, Brooklands, Sale, M33

- PROPERTY TYPE
Semi-Detached
- BEDROOMS
3
- BATHROOMS
1
- SIZE
Ask agent
- TENUREDescribes how you own a property. There are different types of tenure - freehold, leasehold, and commonhold.Read more about tenure in our glossary page.
Freehold
Description
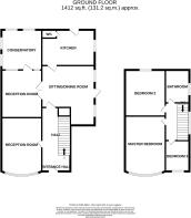
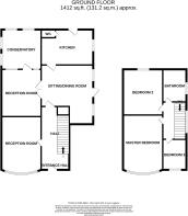
A rare opportunity to acquire this attractive three-bedroom freehold family home, occupying a generous corner plot in one of Sale’s most desirable residential areas. With landscaped gardens, driveway and garage, and well-proportioned interiors extending to approximately 1,412 sq. ft, this chain-free property offers excellent potential for buyers looking to put their own stamp on a characterful home.
Ground Floor
Entering via a welcoming entrance hall, you are greeted by a sense of space and warmth, enhanced by high ceilings and natural light. The hallway leads into two generous reception rooms, ideal for flexible family living and entertaining. The front reception enjoys a bay window overlooking the landscaped frontage, while the rear reception opens through to a bright orangery, creating a lovely flow through to the garden.
The kitchen is positioned at the rear of the home, offering a practical layout with ample worktop and storage space, and access directly to the patio and garden. A conveniently located ground floor WC completes the downstairs accommodation.
First Floor
A feature staircase and bright landing lead to three well-proportioned bedrooms.
The master bedroom is notably spacious, featuring a wide bay window and a pleasant outlook over the tree-lined street.
Bedroom two is another comfortable double, while bedroom three provides flexibility as a single bedroom, nursery, or home office.
The family bathroom has been stylishly fitted with both a walk-in shower and a freestanding clawfoot bath, combining classic character with modern convenience.
Outside
Occupying a corner plot, the property enjoys well-maintained landscaped gardens to the front and rear, with a paved patio perfect for outdoor dining and relaxation, as well as a lawned garden bordered by mature shrubs for privacy. A driveway and detached garage provide secure off-road parking and additional storage.
Summary
This impressive home offers a fantastic opportunity for families and professionals alike — combining spacious interiors, a generous plot, and superb potential for personalisation.
Situated within easy reach of Sale town centre, excellent local schools, and transport links including the Metrolink network, Walton Road is a rare find in this sought-after location.
Offered for sale with no onward chain.
Tenure: Freehold,- COUNCIL TAXA payment made to your local authority in order to pay for local services like schools, libraries, and refuse collection. The amount you pay depends on the value of the property.Read more about council Tax in our glossary page.
- Band: D
- PARKINGDetails of how and where vehicles can be parked, and any associated costs.Read more about parking in our glossary page.
- Driveway
- GARDENA property has access to an outdoor space, which could be private or shared.
- Private garden
- ACCESSIBILITYHow a property has been adapted to meet the needs of vulnerable or disabled individuals.Read more about accessibility in our glossary page.
- Ask agent
Energy performance certificate - ask agent
Walton Road, Brooklands, Sale, M33
Add an important place to see how long it'd take to get there from our property listings.
__mins driving to your place
Get an instant, personalised result:
- Show sellers you’re serious
- Secure viewings faster with agents
- No impact on your credit score
Your mortgage
Notes
Staying secure when looking for property
Ensure you're up to date with our latest advice on how to avoid fraud or scams when looking for property online.
Visit our security centre to find out moreDisclaimer - Property reference P1583. The information displayed about this property comprises a property advertisement. Rightmove.co.uk makes no warranty as to the accuracy or completeness of the advertisement or any linked or associated information, and Rightmove has no control over the content. This property advertisement does not constitute property particulars. The information is provided and maintained by Northwood, Sale. Please contact the selling agent or developer directly to obtain any information which may be available under the terms of The Energy Performance of Buildings (Certificates and Inspections) (England and Wales) Regulations 2007 or the Home Report if in relation to a residential property in Scotland.
*This is the average speed from the provider with the fastest broadband package available at this postcode. The average speed displayed is based on the download speeds of at least 50% of customers at peak time (8pm to 10pm). Fibre/cable services at the postcode are subject to availability and may differ between properties within a postcode. Speeds can be affected by a range of technical and environmental factors. The speed at the property may be lower than that listed above. You can check the estimated speed and confirm availability to a property prior to purchasing on the broadband provider's website. Providers may increase charges. The information is provided and maintained by Decision Technologies Limited. **This is indicative only and based on a 2-person household with multiple devices and simultaneous usage. Broadband performance is affected by multiple factors including number of occupants and devices, simultaneous usage, router range etc. For more information speak to your broadband provider.
Map data ©OpenStreetMap contributors.







