
End of terrace house for sale
Hainsworth Road, Silsden, Keighley, West Yorkshire, BD20

- PROPERTY TYPE
End of Terrace
- SIZE
Ask agent
- TENUREDescribes how you own a property. There are different types of tenure - freehold, leasehold, and commonhold.Read more about tenure in our glossary page.
Freehold
Key features
- Development opportunity
- Previous planning permission(now expired)
- Central location
- Serviced connected
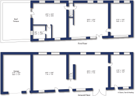
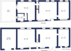
Description
You enter the property from street level into a small hallway with a staircase to the first floor. To the left of the hall is an open space with a gas boiler, a door to the front and windows to the rear overlooking the canal. To the right of the hall is a room with a garage door to the front and a window. From here there is a further room with two doors to the front and two windows to the rear.
To the first floor landing with a window overlooking the beck. From the landing there is a kitchen area, a part fitted bathroom and an open plan space with a doorway access onto the garage roof. There are two further open plan rooms with windows to the front and rear.
To the far end of the building is an open space with power, light, plumbing pipes, a garage door and personal door to the front.
Local Authority & Council Tax Band
• The City of Bradford Metropolitan District Council
• Council Tax Band
Tenure, Services & Parking
• Freehold
• Mains electricity, water and drainage are installed. A gas fired boiler is installed
• Garage parking is on site
• The property falls into a medium flood risk zone
• Previous planning permission(2010) no expired
Internet & Mobile Coverage
The Ofcom website shows internet available from at least 1 provider. Outdoor mobile coverage (excl 5G) likely from at least 1 of the UK’s 4 main providers. Results are predictions not a guarantee & may differ subject to circumstances, exact location & network outages
Hainsworth Forge is located less than 5 minutes’ walk from Silsden's Main Street and yet tucked away from the main through roads. Within the town, there is a supermarket, as well as many other local shops along with sporting and recreational facilities nearby. Also within the town is a well-respected primary school, and there is a secondary school at nearby Crosshills. For the commuter, train services to Bradford, Leeds and London Kings Cross are available at Steeton/Silsden railway station, and the commercial centres of both East Lancashire and West Yorkshire are within comfortable daily driving distance.
When driving into Silsden from the Skipton direction drive towards the centre. After you have gone over the bridge turn right onto Clog Bridge before the zebra crossing. Take the first right where the property is then located on your right identified by our Dacre, Son & Hartley 'For Sale' board.
Brochures
Particulars- COUNCIL TAXA payment made to your local authority in order to pay for local services like schools, libraries, and refuse collection. The amount you pay depends on the value of the property.Read more about council Tax in our glossary page.
- Band: TBC
- PARKINGDetails of how and where vehicles can be parked, and any associated costs.Read more about parking in our glossary page.
- Garage
- GARDENA property has access to an outdoor space, which could be private or shared.
- Ask agent
- ACCESSIBILITYHow a property has been adapted to meet the needs of vulnerable or disabled individuals.Read more about accessibility in our glossary page.
- Ask agent
Energy performance certificate - ask agent
Hainsworth Road, Silsden, Keighley, West Yorkshire, BD20
Add an important place to see how long it'd take to get there from our property listings.
__mins driving to your place
Get an instant, personalised result:
- Show sellers you’re serious
- Secure viewings faster with agents
- No impact on your credit score
Your mortgage
Notes
Staying secure when looking for property
Ensure you're up to date with our latest advice on how to avoid fraud or scams when looking for property online.
Visit our security centre to find out moreDisclaimer - Property reference SKI240049. The information displayed about this property comprises a property advertisement. Rightmove.co.uk makes no warranty as to the accuracy or completeness of the advertisement or any linked or associated information, and Rightmove has no control over the content. This property advertisement does not constitute property particulars. The information is provided and maintained by Dacre Son & Hartley, Skipton. Please contact the selling agent or developer directly to obtain any information which may be available under the terms of The Energy Performance of Buildings (Certificates and Inspections) (England and Wales) Regulations 2007 or the Home Report if in relation to a residential property in Scotland.
*This is the average speed from the provider with the fastest broadband package available at this postcode. The average speed displayed is based on the download speeds of at least 50% of customers at peak time (8pm to 10pm). Fibre/cable services at the postcode are subject to availability and may differ between properties within a postcode. Speeds can be affected by a range of technical and environmental factors. The speed at the property may be lower than that listed above. You can check the estimated speed and confirm availability to a property prior to purchasing on the broadband provider's website. Providers may increase charges. The information is provided and maintained by Decision Technologies Limited. **This is indicative only and based on a 2-person household with multiple devices and simultaneous usage. Broadband performance is affected by multiple factors including number of occupants and devices, simultaneous usage, router range etc. For more information speak to your broadband provider.
Map data ©OpenStreetMap contributors.






