
Church Street, Bridgnorth, WV16

- PROPERTY TYPE
End of Terrace
- BEDROOMS
3
- BATHROOMS
1
- SIZE
Ask agent
- TENUREDescribes how you own a property. There are different types of tenure - freehold, leasehold, and commonhold.Read more about tenure in our glossary page.
Freehold
Key features
- Traditional End Of Terrace Home
- Popular Village Of Highley, Bridgnorth
- Three Bedrooms
- Two Reception Rooms
- Rear Garden And Side Access
- In Need Of Modernisation
- Walking Disctance To High Street, Local Shops, Cafe's And Amenities
- Ground Floor Bathroom And Separate WC
- Ideal For First Time Buyer/Investor
- CHAIN FREE
Description
This charming three-bedroom traditional end-of-terrace home presents an excellent opportunity for anyone looking to put their own stamp on a property. Set in the ever-popular rural village of Highley, near Bridgnorth, the house offers the perfect blend of village convenience and countryside tranquillity. The location is ideal for those seeking to escape to the country, with a wealth of scenic walks, bridleways, and riverside paths right on the doorstep, providing endless opportunities to enjoy the beautiful Shropshire countryside.
Within walking distance of the village high street, local shops, a café, takeaways, and a well-regarded primary school, this home combines the comforts of rural living with everyday practicality.
The property retains much of its traditional character and would benefit from a program of updating and modernisation, allowing a new owner to create a comfortable and personalised family home.
A welcoming entrance porch leads into a bright lounge with a bay window that fills the room with natural light and offers a pleasant outlook over the front garden. The adjoining dining room provides an ideal space for family gatherings or entertaining, while the kitchen, though in need of updating, offers good potential for redesign. Beyond the kitchen, a lean-to or utility area gives access to the rear garden, and off the kitchen lobby there is a separate shower room and WC, adding to the home’s functionality.
Upstairs, there are three well-proportioned bedrooms, each offering scope for redecoration or reconfiguration to suit modern living needs.
Outside, the property enjoys both front and rear gardens. The front garden enhances the home’s kerb appeal, while the generous rear garden offers plenty of space for outdoor relaxation, play, or gardening, with side access for convenience.
Perfectly positioned in a friendly rural community, this property offers a rare chance to enjoy the peace and charm of country life while remaining within easy reach of Bridgnorth and other nearby towns. With its generous garden, traditional layout, and fantastic potential, this is an ideal home for those seeking a renovation project and a true “escape to the country.”
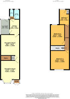
GROUND FLOOR
Entrance Porch
UPVC double glazed entrance porch, quarry tiled floor, obscured glass, wooden framed door opens to:
Lounge
Double glazed bay window to front, wall mounted radiators, wall mounted electric heater, fireplace,wood panelling to wall, door to:
Dining Room
Stairs to first floor, window to rear, fireplace, wall mounted electric heater, storage cupboard, door to:
Kitchen
Window to side, wall and base units, work surfaces over, inset composite sink and drainer, splash back tiles, space for cooker, extractor over, space for fridge, door to lean to, door to:
Inner Lobby
obscured double glazed window to side, tiled floor, doors to:
Shower Room
Quardrant style shower with wall mounted electric shower, wash basin in vanity unit, wall mounted heated towel rail, obscured double glazed window to rear, tiled walls and floor.
Separate WC
Obscured double glazed window to rear, low level flush WC, wall mounted radiator, tiled walls and floor.
Lean To
Plumbing for automtaic washing machine, quarry tiled floor, windows to side and rear, door to rear garden.
FIRST FLOOR
Landing
Doors to:
Bedroom One
Double glazed windows to front, wall mounted radiator.
Bedroom Two
Double glazed window to rear, wall mounted radiator.
Bedroom Three
Double glazed window to rear.
OUTSIDE
Front Garden
Gravelled fore garden with low retaining brick wall boundary, path to front access, paved path side entrance with low wrought iron fencing and gate.
Rear Garden
Mature shrubbery
EPC Rating:
Council Tax Band: A
Disclaimer
Whilst we make enquiries with the Seller to ensure the information provided is accurate, Yopa makes no representations or warranties of any kind with respect to the statements contained in the particulars which should not be relied upon as representations of fact. All representations contained in the particulars are based on details supplied by the Seller. Your Conveyancer is legally responsible for ensuring any purchase agreement fully protects your position. Please inform us if you become aware of any information being inaccurate.
Money Laundering Regulations
Should a purchaser(s) have an offer accepted on a property marketed by Yopa, they will need to undertake an identification check and asked to provide information on the source and proof of funds. This is done to meet our obligation under Anti Money Laundering Regulations (AML) and is a legal requirement. We use a specialist third party service together with an in-house compliance team to verify your information. The cost of these checks is £82.50 +VAT per purchase, which is paid in advance, when an offer is agreed and prior to a sales memorandum being issued. This charge is non-refundable under any circumstances.
- COUNCIL TAXA payment made to your local authority in order to pay for local services like schools, libraries, and refuse collection. The amount you pay depends on the value of the property.Read more about council Tax in our glossary page.
- Ask agent
- PARKINGDetails of how and where vehicles can be parked, and any associated costs.Read more about parking in our glossary page.
- Ask agent
- GARDENA property has access to an outdoor space, which could be private or shared.
- Yes
- ACCESSIBILITYHow a property has been adapted to meet the needs of vulnerable or disabled individuals.Read more about accessibility in our glossary page.
- Ask agent
Energy performance certificate - ask agent
Church Street, Bridgnorth, WV16
Add an important place to see how long it'd take to get there from our property listings.
__mins driving to your place
Get an instant, personalised result:
- Show sellers you’re serious
- Secure viewings faster with agents
- No impact on your credit score

Your mortgage
Notes
Staying secure when looking for property
Ensure you're up to date with our latest advice on how to avoid fraud or scams when looking for property online.
Visit our security centre to find out moreDisclaimer - Property reference 466583. The information displayed about this property comprises a property advertisement. Rightmove.co.uk makes no warranty as to the accuracy or completeness of the advertisement or any linked or associated information, and Rightmove has no control over the content. This property advertisement does not constitute property particulars. The information is provided and maintained by Yopa, North West & Midlands. Please contact the selling agent or developer directly to obtain any information which may be available under the terms of The Energy Performance of Buildings (Certificates and Inspections) (England and Wales) Regulations 2007 or the Home Report if in relation to a residential property in Scotland.
*This is the average speed from the provider with the fastest broadband package available at this postcode. The average speed displayed is based on the download speeds of at least 50% of customers at peak time (8pm to 10pm). Fibre/cable services at the postcode are subject to availability and may differ between properties within a postcode. Speeds can be affected by a range of technical and environmental factors. The speed at the property may be lower than that listed above. You can check the estimated speed and confirm availability to a property prior to purchasing on the broadband provider's website. Providers may increase charges. The information is provided and maintained by Decision Technologies Limited. **This is indicative only and based on a 2-person household with multiple devices and simultaneous usage. Broadband performance is affected by multiple factors including number of occupants and devices, simultaneous usage, router range etc. For more information speak to your broadband provider.
Map data ©OpenStreetMap contributors.





