
3 bedroom semi-detached house for sale
Broomfield Avenue, Worthing, BN14 7SD

- PROPERTY TYPE
Semi-Detached
- BEDROOMS
3
- BATHROOMS
1
- SIZE
Ask agent
- TENUREDescribes how you own a property. There are different types of tenure - freehold, leasehold, and commonhold.Read more about tenure in our glossary page.
Ask agent
Key features
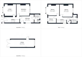
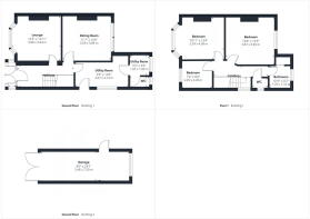
- Semi-Detached Home
- Three Well-Proportioned Bedrooms
- Two Versatile Reception Rooms
- Fitted Kitchen
- Utility Room & Ground Floor W/C
- South Facing Rear Garden
- Brick Built Garage & Off Road Parking
- Great School Catchment Area
- Sought-After Residential Location
- No Ongoing Chain
Description
Jacobs Steel are delighted to present this rare opportunity to acquire a beautiful semi-detached period home, perfectly positioned on a highly sought-after residential road and occupying a generous south-facing plot. Ideally located in the desirable Thomas A Becket area, the property is within easy reach of local shops, parks, and excellent school catchments, making it ideal for families. The spacious accommodation comprises three well-proportioned bedrooms, two reception rooms including a bay-fronted living room and extended dining area, a fitted kitchen with utility room, and a convenient downstairs WC. Externally, the home benefits from a block-paved driveway providing off-road parking, a brick-built garage, and a generous south-facing rear garden laid to lawn with a patio area, perfect for outdoor entertaining or family activities. The property is offered for sale with no onward chain, making it a fantastic opportunity not to be missed.
Internal The distinctive double front door opens into an inviting internal storm porch, which in turn leads through a beautiful 1920s-style wooden door into a welcoming entrance hall. This charming space provides access to all ground floor rooms and includes two useful under-stairs storage cupboards, perfect for coats, shoes, and everyday essentials. At the front of the home, the bay-fronted living room is bright and airy, featuring large double-glazed windows that fill the space with natural light. Generously proportioned, this room offers an ideal setting for both relaxing with family and entertaining guests. To the rear, the dining room provides ample space for family meals and social gatherings, with sliding double-glazed doors that open directly onto the beautifully maintained rear garden, creating a seamless connection between indoor and outdoor living. The kitchen has been thoughtfully designed with a comprehensive range of wall and base units, offering excellent storage and workspace. There is also access to a separate utility area with a convenient ground floor WC. Additional space is provided for a fridge/freezer, and a handy pantry offers further storage. A side door and window enhance practicality and allow natural light to filter through. Upstairs, the landing provides access to the loft via a fitted ladder, offering ample storage and potential for conversion (subject to the necessary consents). The principal bedroom, located to the rear, is a generously sized double, while the second bedroom to the front features an attractive bay window. The third bedroom is a comfortable single—perfect for a child, guest room, or home office. The family bathroom includes a bath and hand wash basin, with a separate WC positioned adjacent, presenting an excellent opportunity to create a larger, modern family bathroom if desired.
External The property enjoys an inviting frontage, with an attractive garden featuring a variety of mature plants and well-stocked borders that create a soft and welcoming first impression. To one side, a paved driveway provides convenient off-road parking and leads through a secure gate to the rear of the property, where a substantial brick-built garage is located. The home is set on a generously sized south-facing plot, ensuring an abundance of natural light throughout the day. The rear garden is particularly impressive—spacious, private, and beautifully landscaped with an array of established shrubs, trees, and flowering borders that offer colour and interest year-round. The brick-built garage is larger than average, measuring approximately 23'7" x 8', and benefits from traditional double barn doors as well as a convenient side access door, providing excellent storage or workshop potential.
Situated Nestled in the sought-after Thomas A Becket area, this property benefits from close proximity to local shops, parks, and highly regarded schools, making it an ideal choice for families. Worthing town centre lies just around 1 km away, offering an excellent selection of shops, restaurants, and leisure facilities. For commuters, Worthing train station is only 250 metres from the doorstep, providing regular coastal services and direct routes to London. Combining outstanding transport links, everyday conveniences, and easy access to the seafront, this location perfectly balances practicality, lifestyle, and a strong sense of community.
Council Tax Band D
- COUNCIL TAXA payment made to your local authority in order to pay for local services like schools, libraries, and refuse collection. The amount you pay depends on the value of the property.Read more about council Tax in our glossary page.
- Band: D
- PARKINGDetails of how and where vehicles can be parked, and any associated costs.Read more about parking in our glossary page.
- Driveway
- GARDENA property has access to an outdoor space, which could be private or shared.
- Yes
- ACCESSIBILITYHow a property has been adapted to meet the needs of vulnerable or disabled individuals.Read more about accessibility in our glossary page.
- Ask agent
Energy performance certificate - ask agent
Broomfield Avenue, Worthing, BN14 7SD
Add an important place to see how long it'd take to get there from our property listings.
__mins driving to your place
Get an instant, personalised result:
- Show sellers you’re serious
- Secure viewings faster with agents
- No impact on your credit score
Your mortgage
Notes
Staying secure when looking for property
Ensure you're up to date with our latest advice on how to avoid fraud or scams when looking for property online.
Visit our security centre to find out moreDisclaimer - Property reference S1470466. The information displayed about this property comprises a property advertisement. Rightmove.co.uk makes no warranty as to the accuracy or completeness of the advertisement or any linked or associated information, and Rightmove has no control over the content. This property advertisement does not constitute property particulars. The information is provided and maintained by Jacobs Steel, Worthing. Please contact the selling agent or developer directly to obtain any information which may be available under the terms of The Energy Performance of Buildings (Certificates and Inspections) (England and Wales) Regulations 2007 or the Home Report if in relation to a residential property in Scotland.
*This is the average speed from the provider with the fastest broadband package available at this postcode. The average speed displayed is based on the download speeds of at least 50% of customers at peak time (8pm to 10pm). Fibre/cable services at the postcode are subject to availability and may differ between properties within a postcode. Speeds can be affected by a range of technical and environmental factors. The speed at the property may be lower than that listed above. You can check the estimated speed and confirm availability to a property prior to purchasing on the broadband provider's website. Providers may increase charges. The information is provided and maintained by Decision Technologies Limited. **This is indicative only and based on a 2-person household with multiple devices and simultaneous usage. Broadband performance is affected by multiple factors including number of occupants and devices, simultaneous usage, router range etc. For more information speak to your broadband provider.
Map data ©OpenStreetMap contributors.






