Former Brockley Social Club, 240-242 Brockley Road, Brockley, London
- SIZE AVAILABLE
5,227 sq ft
486 sq m
- SECTOR
Residential development for sale
Key features
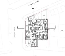
- Site with a resolution to grant planning permission for 14 private apartments
- 9 x 2-bed apartments & 5 x 1-bed apartments
- Consented NSA: 9,693 sq ft Consented GIA: 11,799 sq ft
- Located in central Brockley
- Site Area: Approx. 0.12 acres
- Guide price: £1,500,000
Description
A prominent freehold development site in the heart of vibrant Brockley with a resolution to grant planning permission for 14 private flats. On 22nd April 2025, Lewisham granted planning permission at committee subject to the S106 being entered into. A draft of the S106 agreement has been issued.
The site extending to 0.12 acres is currently occupied by a c.4,000sqft building over first and second floors most recently used as a social club.
The site is prominently positioned on the corner of Brockley Road (B218) and Foxberry Road in central Brockley, close to Brockley Station, local shops, schools, and green spaces.
The site will be sold freehold with vacant possession on completion.
The site is to be sold without the assignment of the planning drawings, associated reports, or the signed Section 106 agreement. The buyer will need to take over the planning position once they purchase and own the site. This may require a fresh planning application (worst case), although securing full planning consent and a signed Section 106 should be a formality given the resolution to grant at planning committee.
Brochures
Former Brockley Social Club, 240-242 Brockley Road, Brockley, London
NEAREST STATIONS
Distances are straight line measurements from the centre of the postcode- Brockley Station0.2 miles
- Crofton Park Station0.5 miles
- St. John's Station0.7 miles
Notes
Disclaimer - Property reference 36905FH. The information displayed about this property comprises a property advertisement. Rightmove.co.uk makes no warranty as to the accuracy or completeness of the advertisement or any linked or associated information, and Rightmove has no control over the content. This property advertisement does not constitute property particulars. The information is provided and maintained by Acorn Limited, Acorn Commercial. Please contact the selling agent or developer directly to obtain any information which may be available under the terms of The Energy Performance of Buildings (Certificates and Inspections) (England and Wales) Regulations 2007 or the Home Report if in relation to a residential property in Scotland.
Map data ©OpenStreetMap contributors.






