Stamperland Avenue, Clarkston, Glasgow

- PROPERTY TYPE
Terraced
- BEDROOMS
2
- BATHROOMS
1
- SIZE
710 sq ft
66 sq m
- TENUREDescribes how you own a property. There are different types of tenure - freehold, leasehold, and commonhold.Read more about tenure in our glossary page.
Freehold
Key features
- Mid terrace villa
- Two double bedrooms
- Modern fixtures and fittings throughout
- Private mature gardens
- Great location for local amenities and high achieving schooling
Description
Positioned within a popular Clarkston address, providing excellent accommodation with great size level garden grounds, this mid terrace villa is well presented throughout and will appeal to professional and family sector of the market.
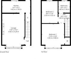
The ground floor accommodation extends to entrance hallway, generous lounge, modern fitted kitchen with a range of wall and base mounted units and garden access. Upstairs provides generous principal bedroom with lovely open aspects to front, second very good double bedroom, and main modern family bathroom. The property also benefits from attic space providing further storage and the specification includes a system of gas central heating, and double glazing.
Externally the property is set within level easily maintained level garden grounds. The gardens are beautiful, private and well enclosed with decked patio area and level lawn providing an ideal space for outside enjoyment.
Nestled in a quiet and locally admired pocket of Clarkston with great proximity to high achieving local schooling and excellent amenities.
The floor plan shall provide you with a detailed layout of this versatile and well laid out home; however, we recommend viewing to appreciate the space, versatility, and convenient setting that's on offer.
ER Band C
Local Area
A haven for young growing families, the district offers an abundance of sports and recreational facilities, excellent shopping and retail outlets, the district is synonymous with some of the best schooling in the West of Scotland. The shopping suburb of Clarkston offers independent retailers with cafes, delis, restaurants and there are excellent transport provisions provided for the city centre via road and rail, from Clarkston and Williamwood train stations.
Brochures
Web Details- COUNCIL TAXA payment made to your local authority in order to pay for local services like schools, libraries, and refuse collection. The amount you pay depends on the value of the property.Read more about council Tax in our glossary page.
- Band: D
- PARKINGDetails of how and where vehicles can be parked, and any associated costs.Read more about parking in our glossary page.
- On street
- GARDENA property has access to an outdoor space, which could be private or shared.
- Yes
- ACCESSIBILITYHow a property has been adapted to meet the needs of vulnerable or disabled individuals.Read more about accessibility in our glossary page.
- Ask agent
Stamperland Avenue, Clarkston, Glasgow
Add an important place to see how long it'd take to get there from our property listings.
__mins driving to your place
Get an instant, personalised result:
- Show sellers you’re serious
- Secure viewings faster with agents
- No impact on your credit score
Your mortgage
Notes
Staying secure when looking for property
Ensure you're up to date with our latest advice on how to avoid fraud or scams when looking for property online.
Visit our security centre to find out moreDisclaimer - Property reference CC0927. The information displayed about this property comprises a property advertisement. Rightmove.co.uk makes no warranty as to the accuracy or completeness of the advertisement or any linked or associated information, and Rightmove has no control over the content. This property advertisement does not constitute property particulars. The information is provided and maintained by Corum, Clarkston. Please contact the selling agent or developer directly to obtain any information which may be available under the terms of The Energy Performance of Buildings (Certificates and Inspections) (England and Wales) Regulations 2007 or the Home Report if in relation to a residential property in Scotland.
*This is the average speed from the provider with the fastest broadband package available at this postcode. The average speed displayed is based on the download speeds of at least 50% of customers at peak time (8pm to 10pm). Fibre/cable services at the postcode are subject to availability and may differ between properties within a postcode. Speeds can be affected by a range of technical and environmental factors. The speed at the property may be lower than that listed above. You can check the estimated speed and confirm availability to a property prior to purchasing on the broadband provider's website. Providers may increase charges. The information is provided and maintained by Decision Technologies Limited. **This is indicative only and based on a 2-person household with multiple devices and simultaneous usage. Broadband performance is affected by multiple factors including number of occupants and devices, simultaneous usage, router range etc. For more information speak to your broadband provider.
Map data ©OpenStreetMap contributors.




