
Montpelier Park, Bruntsfield, Edinburgh

- PROPERTY TYPE
Apartment
- BEDROOMS
2
- BATHROOMS
2
- SIZE
947 sq ft
88 sq m
- TENUREDescribes how you own a property. There are different types of tenure - freehold, leasehold, and commonhold.Read more about tenure in our glossary page.
Ask agent
Description
An immaculately presented ground-floor, main-door flat situated in the heart of Bruntsfield, offering direct access to a beautifully maintained shared garden.
Occupying part of a traditional tenement building and accessed via a welcoming hallway, this stunning home boasts a spacious living room with an elegant bay window and charming period features, alongside a stylish kitchen with generous dining space and direct access to the garden; ideal for entertaining family and friends.
The accommodation further comprises a beautifully appointed principal double bedroom, a contemporary bathroom, a second double bedroom, and an additional shower room. Perfectly blending traditional character with modern comfort, this exceptional flat will appeal to couples, downsizers, young families, and investors alike.
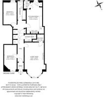
Summary of Accommodation:
Hallway with storage, living room, kitchen/ dining room, two bedrooms, bathroom, shower room, box room.
Montpelier Park is situated in Bruntsfield, one of Edinburgh’s most sought after residential areas due to its open green spaces and close proximity to the city centre. Local amenities are excellent, including many bars, restaurants and boutique shops. There is good local shopping in both Bruntsfield and nearby Morningside, and a regular bus service provides easy access to the city centre. Bruntsfield Links and The Meadows are on the doorstep and offer great outdoor space that can be enjoyed all year round. Primary and Secondary schooling is available nearby with private schooling at George Watson’s College, George Heriot’s and Merchiston Castle. Public and private golf courses, tennis courts and the nearby dry ski slope at Hillend are in the immediate vicinity. The area is well situated for ease of access to Edinburgh International Airport and the motorway links North and South.
EPC: D
Council Tax Band: E
Tenure: Freehold
EPC Rating: D
Council Tax Band: E
- COUNCIL TAXA payment made to your local authority in order to pay for local services like schools, libraries, and refuse collection. The amount you pay depends on the value of the property.Read more about council Tax in our glossary page.
- Band: E
- PARKINGDetails of how and where vehicles can be parked, and any associated costs.Read more about parking in our glossary page.
- Ask agent
- GARDENA property has access to an outdoor space, which could be private or shared.
- Yes
- ACCESSIBILITYHow a property has been adapted to meet the needs of vulnerable or disabled individuals.Read more about accessibility in our glossary page.
- Ask agent
Montpelier Park, Bruntsfield, Edinburgh
Add an important place to see how long it'd take to get there from our property listings.
__mins driving to your place
Get an instant, personalised result:
- Show sellers you’re serious
- Secure viewings faster with agents
- No impact on your credit score
Your mortgage
Notes
Staying secure when looking for property
Ensure you're up to date with our latest advice on how to avoid fraud or scams when looking for property online.
Visit our security centre to find out moreDisclaimer - Property reference ESS250066. The information displayed about this property comprises a property advertisement. Rightmove.co.uk makes no warranty as to the accuracy or completeness of the advertisement or any linked or associated information, and Rightmove has no control over the content. This property advertisement does not constitute property particulars. The information is provided and maintained by Rettie, Edinburgh South. Please contact the selling agent or developer directly to obtain any information which may be available under the terms of The Energy Performance of Buildings (Certificates and Inspections) (England and Wales) Regulations 2007 or the Home Report if in relation to a residential property in Scotland.
*This is the average speed from the provider with the fastest broadband package available at this postcode. The average speed displayed is based on the download speeds of at least 50% of customers at peak time (8pm to 10pm). Fibre/cable services at the postcode are subject to availability and may differ between properties within a postcode. Speeds can be affected by a range of technical and environmental factors. The speed at the property may be lower than that listed above. You can check the estimated speed and confirm availability to a property prior to purchasing on the broadband provider's website. Providers may increase charges. The information is provided and maintained by Decision Technologies Limited. **This is indicative only and based on a 2-person household with multiple devices and simultaneous usage. Broadband performance is affected by multiple factors including number of occupants and devices, simultaneous usage, router range etc. For more information speak to your broadband provider.
Map data ©OpenStreetMap contributors.





