
Thrushton, Doles Lane, Findern DE65 6AX

- PROPERTY TYPE
Detached
- BEDROOMS
3
- BATHROOMS
2
- SIZE
Ask agent
- TENUREDescribes how you own a property. There are different types of tenure - freehold, leasehold, and commonhold.Read more about tenure in our glossary page.
Freehold
Description
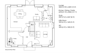
On the ground floor, the welcoming hallway leads to a front-facing study, a spacious lounge, and a convenient guest W.C. To the rear, the highlight of the home is the impressive open-plan kitchen, dining, and family space with French doors opening to the garden, complemented by a useful utility room.
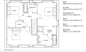
The first floor offers three well-proportioned bedrooms and a contemporary family
bathroom. The principal bedroom benefits from a private en-suite and dressing room.
Key Features - • 10-Year New Build Guarantee
• Double-glazed throughout
• Luxury fitted kitchen with integrated quality appliances
• Gas central heating and energy-saving solar panels
• Contemporary fitted bathrooms
• Exclusive village location combining community charm with countryside living
• Detached single garage
• Electric car charging point
Measurements - Lounge
3250 [10'-8"] x 4359 [14'-4"]
Kitchen / Dining / Family
6478 [21'-3"] x 4550 [14'-11"]
Study
2907 [9'-6"] x 2527 [8'-3"]
Utility Room
1894 [6'-3"] x 1625 [5'-4"]
WC
1894 [6'-3"] x 1000 [3'-3"]
Bed 1
3250 [10'-8"] x 4016 [13'-2"]
En-Suite
3250 [10'-8"] x 3118 [10'-3"]
Dressing Room
2257 [7'-5"] x 1300 [4'-3"]
Bed 2
5122 [16'-10"] x 2925 [9'-7"]
Bed 3
2729 [8'-11"] x 4209 [13'-10"]
Bathroom
2300 [7'-7"] x 1725 [5'-8"]
Brochures
Thrushton.pdfBrochure- COUNCIL TAXA payment made to your local authority in order to pay for local services like schools, libraries, and refuse collection. The amount you pay depends on the value of the property.Read more about council Tax in our glossary page.
- Band: TBC
- PARKINGDetails of how and where vehicles can be parked, and any associated costs.Read more about parking in our glossary page.
- Yes
- GARDENA property has access to an outdoor space, which could be private or shared.
- Yes
- ACCESSIBILITYHow a property has been adapted to meet the needs of vulnerable or disabled individuals.Read more about accessibility in our glossary page.
- Ask agent
Energy performance certificate - ask agent
Thrushton, Doles Lane, Findern DE65 6AX
Add an important place to see how long it'd take to get there from our property listings.
__mins driving to your place
Get an instant, personalised result:
- Show sellers you’re serious
- Secure viewings faster with agents
- No impact on your credit score
About Abode, Staffordshire & Derbyshire
Racecourse Chambers Town Meadows way Uttoxeter Staffordshire ST14 8EW


Your mortgage
Notes
Staying secure when looking for property
Ensure you're up to date with our latest advice on how to avoid fraud or scams when looking for property online.
Visit our security centre to find out moreDisclaimer - Property reference 34233338. The information displayed about this property comprises a property advertisement. Rightmove.co.uk makes no warranty as to the accuracy or completeness of the advertisement or any linked or associated information, and Rightmove has no control over the content. This property advertisement does not constitute property particulars. The information is provided and maintained by Abode, Staffordshire & Derbyshire. Please contact the selling agent or developer directly to obtain any information which may be available under the terms of The Energy Performance of Buildings (Certificates and Inspections) (England and Wales) Regulations 2007 or the Home Report if in relation to a residential property in Scotland.
*This is the average speed from the provider with the fastest broadband package available at this postcode. The average speed displayed is based on the download speeds of at least 50% of customers at peak time (8pm to 10pm). Fibre/cable services at the postcode are subject to availability and may differ between properties within a postcode. Speeds can be affected by a range of technical and environmental factors. The speed at the property may be lower than that listed above. You can check the estimated speed and confirm availability to a property prior to purchasing on the broadband provider's website. Providers may increase charges. The information is provided and maintained by Decision Technologies Limited. **This is indicative only and based on a 2-person household with multiple devices and simultaneous usage. Broadband performance is affected by multiple factors including number of occupants and devices, simultaneous usage, router range etc. For more information speak to your broadband provider.
Map data ©OpenStreetMap contributors.






