
Stroud Road, London, SE25

- PROPERTY TYPE
Semi-Detached
- BEDROOMS
4
- BATHROOMS
2
- SIZE
1,363 sq ft
127 sq m
- TENUREDescribes how you own a property. There are different types of tenure - freehold, leasehold, and commonhold.Read more about tenure in our glossary page.
Freehold
Key features
- Attractive Victorian Semi-Detached house
- Four bedrooms across first and second floors
- Two bright reception rooms
- Bright kitchen with access to garden
- Family bathroom plus separate shower room
- Private garden extending to approx. 72ft
- Excellent transport links from Norwood Junction (0.9 miles)
- Buyers Commission May Be Required
Description
The ground floor comprises a bright and welcoming reception room, enhanced by a large bay window that floods the space with natural light, along with a feature fireplace – ideal for both entertaining and relaxing. A second versatile reception room provides the flexibility to serve as a dining room, family room, or home office, while the well-sized kitchen opens directly onto the garden.
Upstairs, four bedrooms are arranged over two levels. The first floor hosts a substantial master bedroom and a further double, alongside a family bathroom with a roll-top bath and a separate shower room for added convenience. On the top floor, an additional double bedroom sits alongside a fourth room, perfectly suited as a nursery, dressing room, or study.
The rear garden is a standout feature, extending to approximately 72ft. With a large patio area for al fresco dining and a generous lawn, it offers an excellent space for families, entertaining, and gardening enthusiasts alike. The property also provides clear scope to extend, subject to planning permission, offering exciting potential to create a home tailored to individual style and needs.
Stroud Road is a popular residential street in South Norwood, conveniently located just under a mile from Norwood Junction station, providing fast links to London Bridge (approx. 13 minutes), Victoria, and the Overground network. Local bus routes and Woodside tram stop also offer excellent connectivity to East Croydon, Wimbledon, and beyond. The area is well-served by good schools, local shops, cafés, and open spaces including South Norwood Lake & Grounds, while South Norwood Leisure Centre offers modern fitness facilities. A perfect choice for families seeking both convenience and community. A fantastic opportunity not to be missed, call today to arrange an appointment to view. EPC Rating D.
• Attractive Victorian Semi-Detached house
• Four bedrooms across first and second floors
• Two bright reception rooms
• Bright kitchen with access to garden
• Family bathroom plus separate shower room
• Private garden extending to approx. 72ft
• Excellent transport links from Norwood Junction (0.9 miles)
• Buyers Commission May Be Required
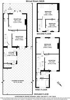
Porch
Door to;
Entrance Hall
Stairs rising to the first floor. Doors to;
Reception Room
4.3m x 3.84m
Reception Room
3.6m x 3.02m
Kitchen
3.6m x 2.74m
First Floor Landing
Stairs rising to the second floor. Doors to;
Bedroom
4.95m x 3.63m
Bedroom
3.66m x 3.07m
Inner Hall
Doors to;
Bathroom
Shower Room
Second Floor Landing
Doors to;
Bedroom
4.57m x 3.5m
Bedroom
2.8m x 2.67m
Front Garden
2.3m
Rear Garden
Extends to 21.95m - Access to;
Outdoor Cloakroom
Buyers Commission May Be Required*
Full details awaiting vendor approval - *This property is being marketed by Choices on behalf of the seller on the basis that the buyer pays our fee of between 2.4% incl VAT and 3% incl VAT of the net purchase price. Unless otherwise agreed offers will therefore be submitted to the seller net of our fee.
MATERIAL INFORMATION
Tenure
Freehold.
Council Tax Band
D.
Broadband
Up to 1,000 Mbps. For more information please visit
Mobile Coverage
Good for voice calls and data. For more information please visit
Mains Services
Gas/Electricity/Water-metered/Drainage.
Heating System
Gas central heating.
On Street Parking
Brochures
Web DetailsParticulars- COUNCIL TAXA payment made to your local authority in order to pay for local services like schools, libraries, and refuse collection. The amount you pay depends on the value of the property.Read more about council Tax in our glossary page.
- Band: D
- PARKINGDetails of how and where vehicles can be parked, and any associated costs.Read more about parking in our glossary page.
- On street,No permit
- GARDENA property has access to an outdoor space, which could be private or shared.
- Yes
- ACCESSIBILITYHow a property has been adapted to meet the needs of vulnerable or disabled individuals.Read more about accessibility in our glossary page.
- Ask agent
Stroud Road, London, SE25
Add an important place to see how long it'd take to get there from our property listings.
__mins driving to your place
Get an instant, personalised result:
- Show sellers you’re serious
- Secure viewings faster with agents
- No impact on your credit score
Your mortgage
Notes
Staying secure when looking for property
Ensure you're up to date with our latest advice on how to avoid fraud or scams when looking for property online.
Visit our security centre to find out moreDisclaimer - Property reference CAT250125. The information displayed about this property comprises a property advertisement. Rightmove.co.uk makes no warranty as to the accuracy or completeness of the advertisement or any linked or associated information, and Rightmove has no control over the content. This property advertisement does not constitute property particulars. The information is provided and maintained by Choices, Croydon. Please contact the selling agent or developer directly to obtain any information which may be available under the terms of The Energy Performance of Buildings (Certificates and Inspections) (England and Wales) Regulations 2007 or the Home Report if in relation to a residential property in Scotland.
*This is the average speed from the provider with the fastest broadband package available at this postcode. The average speed displayed is based on the download speeds of at least 50% of customers at peak time (8pm to 10pm). Fibre/cable services at the postcode are subject to availability and may differ between properties within a postcode. Speeds can be affected by a range of technical and environmental factors. The speed at the property may be lower than that listed above. You can check the estimated speed and confirm availability to a property prior to purchasing on the broadband provider's website. Providers may increase charges. The information is provided and maintained by Decision Technologies Limited. **This is indicative only and based on a 2-person household with multiple devices and simultaneous usage. Broadband performance is affected by multiple factors including number of occupants and devices, simultaneous usage, router range etc. For more information speak to your broadband provider.
Map data ©OpenStreetMap contributors.






