2 bedroom semi-detached house for sale
Bosworth Avenue, Normanton

- PROPERTY TYPE
Semi-Detached
- BEDROOMS
2
- BATHROOMS
1
- SIZE
Ask agent
- TENUREDescribes how you own a property. There are different types of tenure - freehold, leasehold, and commonhold.Read more about tenure in our glossary page.
Freehold
Key features
- Quiet Residential Area
- Good Sized Lounge
- Fitted Kitchen and Pantry area
- Two first Floor Bedrooms
- Family Bathroom
- Outside garden and Patio area
- Close to Schools
- Central Heating Throughout
- Council Tax Band A
- EPC Grade D
Description
The friendly town centre of Normanton is just a short distance away, offering a variety of shops and local transport options. This accessibility makes it easy to enjoy all the amenities the town has to offer, from shopping to dining.
In summary, this semi-detached house on Bosworth Avenue is a delightful family home that combines comfort, convenience, and a lovely community atmosphere. It is an ideal choice for anyone looking to settle in a friendly area with excellent local facilities.
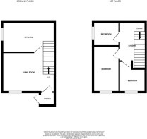
Front View - Accessed through the porch at the front of the property there is lawned areas to the front and side with low level fencing.
Entrance Hall - Accessed through the porch via a UPVC door at the front of the property there is lawned areas to the front and side with low level fencing.
Lounge - 4.26 x 3.20 (13'11" x 10'5") - The lounge has a chimney breast with feature wall and fireplace with electric fire. The room has a single radiator and tv point.
Kitchen - 4.37 x 1.90 (14'4" x 6'2") - The fitted kitchen has a range of lower and wall cupboards with a single sink drainer with mixer tap, a gas cooker point and space for a washing machine and fridge freezer. The room has a radiator and very useful under stairs pantry area. The window looks out to the side.
Bedroom One - 2.37 x 3.63 (7'9" x 11'10") - Very stylishly decorated with an on trend feature wall and room for a king sized bed. With fitted wardrobes and a radiator. The window looks out over the rear of the property.
Bedroom Two - 1.81 x 2.80 (5'11" x 9'2") - Bedroom two currently used as a dressing room., whilst large enough for a good sized single bed. Tastefully decorated and has a radiator and window overlooking the rear of the property.
Bathroom - 2.37 x 1.49 (7'9" x 4'10") - The Family bathroom has a low flush wc, wash hand basin and panelled bath with shower over. Finished in oversized floor to ceiling tiles. There is a wall mounted towel radiator and UPVC frost window.
External - A large rear garden with plenty of space and even potential to extend subject to planning. Off road parking space for one vehicle.
Brochures
Bosworth Avenue, NormantonBrochure- COUNCIL TAXA payment made to your local authority in order to pay for local services like schools, libraries, and refuse collection. The amount you pay depends on the value of the property.Read more about council Tax in our glossary page.
- Ask agent
- PARKINGDetails of how and where vehicles can be parked, and any associated costs.Read more about parking in our glossary page.
- Yes
- GARDENA property has access to an outdoor space, which could be private or shared.
- Yes
- ACCESSIBILITYHow a property has been adapted to meet the needs of vulnerable or disabled individuals.Read more about accessibility in our glossary page.
- Ask agent
Bosworth Avenue, Normanton
Add an important place to see how long it'd take to get there from our property listings.
__mins driving to your place
Get an instant, personalised result:
- Show sellers you’re serious
- Secure viewings faster with agents
- No impact on your credit score
Your mortgage
Notes
Staying secure when looking for property
Ensure you're up to date with our latest advice on how to avoid fraud or scams when looking for property online.
Visit our security centre to find out moreDisclaimer - Property reference 34234799. The information displayed about this property comprises a property advertisement. Rightmove.co.uk makes no warranty as to the accuracy or completeness of the advertisement or any linked or associated information, and Rightmove has no control over the content. This property advertisement does not constitute property particulars. The information is provided and maintained by Crown Estate Agents, Pontefract. Please contact the selling agent or developer directly to obtain any information which may be available under the terms of The Energy Performance of Buildings (Certificates and Inspections) (England and Wales) Regulations 2007 or the Home Report if in relation to a residential property in Scotland.
*This is the average speed from the provider with the fastest broadband package available at this postcode. The average speed displayed is based on the download speeds of at least 50% of customers at peak time (8pm to 10pm). Fibre/cable services at the postcode are subject to availability and may differ between properties within a postcode. Speeds can be affected by a range of technical and environmental factors. The speed at the property may be lower than that listed above. You can check the estimated speed and confirm availability to a property prior to purchasing on the broadband provider's website. Providers may increase charges. The information is provided and maintained by Decision Technologies Limited. **This is indicative only and based on a 2-person household with multiple devices and simultaneous usage. Broadband performance is affected by multiple factors including number of occupants and devices, simultaneous usage, router range etc. For more information speak to your broadband provider.
Map data ©OpenStreetMap contributors.







