Unit 8 Vertex Tower, Deptford, London
- SIZE
Ask agent
- SECTOR
Office to lease
Lease details
- Lease available date:
- Ask agent
Key features
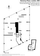
- Office Unit (Class E) in Modern Creekside Development
- Second Floor with Panoramic Views & Private Street Entrance/Lift
- C.6,311sqft (c.586.3sqm) of Internal Floor Space NIA (Second Floor)
- Ideal Office for Large Teams & Customer Facing Business
- Nearest Stations are Greenwich and Deptford (Zone 2)
- Up to 9 months rent free
- 4 Allocated Parking Spaces
- Guide Price of £55,000pa (only c.£9/sqft with uplift in years 2 & 3)
Description
The unit is currently in shell/core condition which is reflected within the lower sales value (c.£9/sqft). The property would certainly suit a business that has a large team or a client facing business, as the layout can be used as an open plan-office or broken up into smaller offices, boardrooms, staff rooms etc. There could also be a residential angle by converting the floor into residential apartments (subject to successful planning consent). Additionally, there are 4x parking spaces on site, and the unit is easily accessible by public transport locally.
Brochures
Unit 8 Vertex Tower, Deptford, London
NEAREST STATIONS
Distances are straight line measurements from the centre of the postcode- Surrey Quays Station0.7 miles
- Mudchute Station0.7 miles
- Crossharbour & London Arena Station0.8 miles
Notes
Disclaimer - Property reference 36896LH. The information displayed about this property comprises a property advertisement. Rightmove.co.uk makes no warranty as to the accuracy or completeness of the advertisement or any linked or associated information, and Rightmove has no control over the content. This property advertisement does not constitute property particulars. The information is provided and maintained by Acorn Limited, Acorn Commercial. Please contact the selling agent or developer directly to obtain any information which may be available under the terms of The Energy Performance of Buildings (Certificates and Inspections) (England and Wales) Regulations 2007 or the Home Report if in relation to a residential property in Scotland.
Map data ©OpenStreetMap contributors.





