
5 bedroom detached house for sale
Meadow Springs, Lydiard Millicent, SN5

- PROPERTY TYPE
Detached
- BEDROOMS
5
- BATHROOMS
2
- SIZE
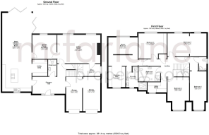
2,228 sq ft
207 sq m
- TENUREDescribes how you own a property. There are different types of tenure - freehold, leasehold, and commonhold.Read more about tenure in our glossary page.
Freehold
Key features
- Stunning Detached Family Home
- Improved and Extended (3000 Sq Ft*) estimated
- Modern + Contemporary Accommodation over Two Floors
- Signature Feature Kitchen / Family Room (11.6M X 4.35M)
- Three Reception Rooms + Study
- FIVE bedrooms THREE Bathrooms
- Bespoke Master Bedroom Suite
- Enclosed Private Rear Gardens
- Double Garage + Driveway Parking for Multiple Cars.
Description
We are delighted to offer this STUNNING and architecturally designed home to the market. Located in a much coveted cul-de sac in the picturesque village of Lydiard Millicent. Meadow Springs is a beautiful setting and this family home offers Five Bedrooms and Three Bathrooms with Three wonderful reception Rooms.
This home has been lovingly modernised and designed by the current owners to create a family orientated home. There are a couple of rooms that are of particular note and these include a Dual Aspect Kitchen Family Room (11.6M x 4.35M) with under floor heating. There are bi-fold doors that open onto the patio and rear gardens.
The Other room is the Master Bedroom suite with Vaulted ceiling (with air conditioning) over the bedroom area, there is also a walk in dressing and wardrobe area to the front elevation. There is a contemporary styled en-suite shower area leading from the bedroom area.
There is a rear garden that has been tastefully landscaped with and expanse of lawn that benefits from being enclosed. There has been a lot of thought that has gone into the entertaining space and patio area at the rear. There are railway style sleepers with inset feature lights that benefit the full width Patio area.
Parking is Via Driveway and Double Garage.
Heating is gas fired central heating with electric input form solar panels (details on request).
Viewings by appointment only
Sole selling agents
McFarlane Sales and Lettings
High Street
Cricklade
EPC Rating: B
Drawing Room
Two windows to the rear elevation + log burner.
Front Garden
Mostly incorporating driveway with a slate feature border.
Rear Garden
Expansive Enclosed Rear Garden Mostly laid to Lawn with Full Width Patio Entertaining Space. Accessed from BOTH Living Room and Kitchen Family Room.
Parking - Double garage
Double Garage with Twin up and Over Electric Doors.
Parking - Driveway
Tarmac Driveway with Off Road Parking for a multiple vehicles.
Brochures
Property Brochure- COUNCIL TAXA payment made to your local authority in order to pay for local services like schools, libraries, and refuse collection. The amount you pay depends on the value of the property.Read more about council Tax in our glossary page.
- Band: F
- PARKINGDetails of how and where vehicles can be parked, and any associated costs.Read more about parking in our glossary page.
- Garage,Driveway
- GARDENA property has access to an outdoor space, which could be private or shared.
- Front garden,Rear garden
- ACCESSIBILITYHow a property has been adapted to meet the needs of vulnerable or disabled individuals.Read more about accessibility in our glossary page.
- Ask agent
Energy performance certificate - ask agent
Meadow Springs, Lydiard Millicent, SN5
Add an important place to see how long it'd take to get there from our property listings.
__mins driving to your place
Get an instant, personalised result:
- Show sellers you’re serious
- Secure viewings faster with agents
- No impact on your credit score
Your mortgage
Notes
Staying secure when looking for property
Ensure you're up to date with our latest advice on how to avoid fraud or scams when looking for property online.
Visit our security centre to find out moreDisclaimer - Property reference 673d935c-fb7f-462f-bbe1-0c0932c6b9c6. The information displayed about this property comprises a property advertisement. Rightmove.co.uk makes no warranty as to the accuracy or completeness of the advertisement or any linked or associated information, and Rightmove has no control over the content. This property advertisement does not constitute property particulars. The information is provided and maintained by McFarlane Sales & Lettings, Cricklade. Please contact the selling agent or developer directly to obtain any information which may be available under the terms of The Energy Performance of Buildings (Certificates and Inspections) (England and Wales) Regulations 2007 or the Home Report if in relation to a residential property in Scotland.
*This is the average speed from the provider with the fastest broadband package available at this postcode. The average speed displayed is based on the download speeds of at least 50% of customers at peak time (8pm to 10pm). Fibre/cable services at the postcode are subject to availability and may differ between properties within a postcode. Speeds can be affected by a range of technical and environmental factors. The speed at the property may be lower than that listed above. You can check the estimated speed and confirm availability to a property prior to purchasing on the broadband provider's website. Providers may increase charges. The information is provided and maintained by Decision Technologies Limited. **This is indicative only and based on a 2-person household with multiple devices and simultaneous usage. Broadband performance is affected by multiple factors including number of occupants and devices, simultaneous usage, router range etc. For more information speak to your broadband provider.
Map data ©OpenStreetMap contributors.





