5 bedroom maisonette for sale
Elmwood Terrace, Keighley, BD22 7DP

- PROPERTY TYPE
Maisonette
- BEDROOMS
5
- BATHROOMS
4
- SIZE
904 sq ft
84 sq m
- TENUREDescribes how you own a property. There are different types of tenure - freehold, leasehold, and commonhold.Read more about tenure in our glossary page.
Freehold
Key features
- Currently arranged as two self-contained maisonettes (2-bed and 3-bed)
- Potential to reinstate as a single family dwelling (subject to consents)
- uPVC double glazing and gas central heating throughout
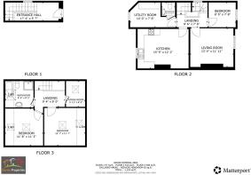
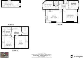
- Ground/lower ground maisonette: 2 bedrooms, bathroom, living room, kitchen, utility, washroom
- First/second floor maisonette: 3 bedrooms, bathroom, living room, kitchen, utility, washroom
- Scope for modernisation, reflected in the asking price
- Ideal investment opportunity or project property
- Yard with decked area to the rear
- Off-road parking available
Description
The ground and lower ground floor maisonette includes a spacious living room, fitted kitchen, utility room, washroom, two bedrooms and a bathroom. The first and second floor maisonette offers a separate living room, kitchen, utility room, washroom, three bedrooms and a bathroom.
While certain areas of the property would benefit from modernisation, this has been reflected in the asking price, making it an attractive option for buyers seeking a project or an investment. Externally, the property enjoys a yard with a decked area and off-road parking.
This is an excellent opportunity for investors or purchasers looking for a versatile property with scope for improvement.
Flat 2 -
Lower Ground Floor -
Entrance Hall - With a uPVC entrance door, a central heating radiator and useful under-stairs storage cupboard housing the combi-boiler.
Bathroom - 1.65m x 1.78m (5'5" x 5'10") - With a white three-piece suite comprising of panelled bath, W/C and pedestal hand wash basin, a central heating radiator, tiled walls and a uPVC double glazed window.
Bedroom - 4.93m x 4.04m (16'2" x 13'3") - With a uPVC double glazed window and a central heating radiator.
Bedroom - 3.73m x 2.01m (12'3" x 6'7") - With a uPVC double glazed window and a central heating radiator.
Ground Floor -
Living Room & Kitchen - 10.08m 4.14m (33'1" 13'7") - Kitchen - with a uPVC entrance door, uPVC double glazed window, matching wall and base units with work-surfaces over incorporating a stainless steel sink, integrated single electric oven with ceramic hob and extractor hood over and a central heating radiator.
Living Room - with a uPVC double glazed bay window and a central heating radiator.
Utility Room - 3.73m x 2.24m (12'3" x 7'4") - With a uPVC double glazed window, central heating radiator and plumbing for a washing machine.
W/C - 1.27m x 1.30m (4'2" x 4'3") - With a W/C, pedestal hand wash basin, a central heating radiator and half-tiled walls.
Flat 2A -
Ground Floor -
Entrance Hall - 5.28m x 1.70m (17'4" x 5'7") - With a uPVC entrance door and a central heating radiator.
First Floor -
Living Room - 4.06m x 3.63m (13'4" x 11'11") - With a uPVC double glazed window and a central heating radiator.
Kitchen - 4.80m x 3.71m (15'9" x 12'2") - With a range of matching wall and base units with work-surfaces over and tiling to the splash-backs, single electric oven, electric hob, extractor hood over and a stainless steel sink and a central heating radiator.
Bedroom - 2.57m x 2.34m (8'5" x 7'8") - With a uPVC double glazed window and a central heating radiator.
Utility - 4.27m x 2.34m (14'0" x 7'8") - With a uPVC double glazed window, a central heating radiator, plumbing for a washing machine and wall-mounted combi-boiler.
W/C - 1.27m x 1.27m (4'2" x 4'2") - With a W/C, pedestal hand wash basin and half-tiled walls.
Second Floor -
Bedroom - 3.84m x 3.53m (12'7" x 11'7") - With a roof window and a central heating radiator.
Bedroom - 3.56m x 3.48m (11'8" x 11'5") - With two roof windows and a central heating radiator.
Store Room - 1.80m x 2.44m (5'11" x 8'0") - With a roof window and a central heating radiator.
Bathroom - 2.67m x 2.49m (8'9" x 8'2") - With a white four-piece suite comprising of bath, shower cubicle, pedestal hand wash basin and a W/C. Tiled flooring, a central heating radiator and roof window.
Exterior - With a yard, decked area and useful off-road parking.
Additional Information - ~ Council Tax Band: A
~ Tenure: Freehold
~ Parking: Driveway with off-road parking
~ Broadband - according to the Ofcom website there is 'Standard' and 'Ultrafast' broadband available.
~ Mobile Coverage - according to the Ofcom website there is 'likely' outdoor mobile coverage from at least four of the UK's leading providers.
~ Investors or cash buyers only
Brochures
Elmwood Terrace, Keighley, BD22 7DPBrochure- COUNCIL TAXA payment made to your local authority in order to pay for local services like schools, libraries, and refuse collection. The amount you pay depends on the value of the property.Read more about council Tax in our glossary page.
- Band: A
- PARKINGDetails of how and where vehicles can be parked, and any associated costs.Read more about parking in our glossary page.
- Yes
- GARDENA property has access to an outdoor space, which could be private or shared.
- Yes
- ACCESSIBILITYHow a property has been adapted to meet the needs of vulnerable or disabled individuals.Read more about accessibility in our glossary page.
- Ask agent
Elmwood Terrace, Keighley, BD22 7DP
Add an important place to see how long it'd take to get there from our property listings.
__mins driving to your place
Get an instant, personalised result:
- Show sellers you’re serious
- Secure viewings faster with agents
- No impact on your credit score

Your mortgage
Notes
Staying secure when looking for property
Ensure you're up to date with our latest advice on how to avoid fraud or scams when looking for property online.
Visit our security centre to find out moreDisclaimer - Property reference 34164775. The information displayed about this property comprises a property advertisement. Rightmove.co.uk makes no warranty as to the accuracy or completeness of the advertisement or any linked or associated information, and Rightmove has no control over the content. This property advertisement does not constitute property particulars. The information is provided and maintained by Davies Properties, Keighley. Please contact the selling agent or developer directly to obtain any information which may be available under the terms of The Energy Performance of Buildings (Certificates and Inspections) (England and Wales) Regulations 2007 or the Home Report if in relation to a residential property in Scotland.
*This is the average speed from the provider with the fastest broadband package available at this postcode. The average speed displayed is based on the download speeds of at least 50% of customers at peak time (8pm to 10pm). Fibre/cable services at the postcode are subject to availability and may differ between properties within a postcode. Speeds can be affected by a range of technical and environmental factors. The speed at the property may be lower than that listed above. You can check the estimated speed and confirm availability to a property prior to purchasing on the broadband provider's website. Providers may increase charges. The information is provided and maintained by Decision Technologies Limited. **This is indicative only and based on a 2-person household with multiple devices and simultaneous usage. Broadband performance is affected by multiple factors including number of occupants and devices, simultaneous usage, router range etc. For more information speak to your broadband provider.
Map data ©OpenStreetMap contributors.





