Front Street North, Trimdon Village, Trimdon Station, Durham, TS29 6PG

- PROPERTY TYPE
Detached
- BEDROOMS
4
- BATHROOMS
1
- SIZE
Ask agent
- TENUREDescribes how you own a property. There are different types of tenure - freehold, leasehold, and commonhold.Read more about tenure in our glossary page.
Freehold
Key features
- Detached House
- 4 Double Bedrooms
- Loft Conversion
- Garage & Large Drive
- Semi Rural Village
Description
360° Virtual Tour Available
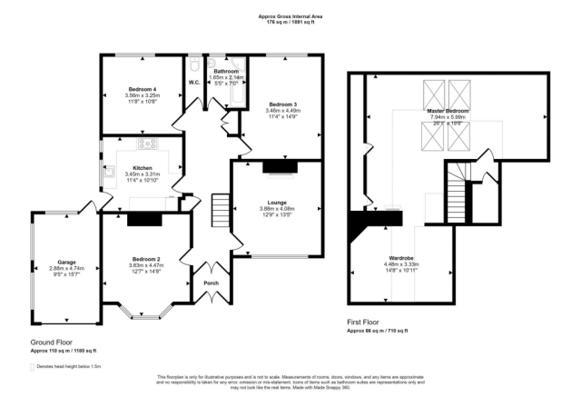
This spacious and stylishly refurbished home showcases a thoughtfully enhanced floorplan, offering versatile and comfortable living accommodation. The layout briefly comprises: entrance porch leading into a welcoming hallway, a generous reception room featuring a charming updated multi-fuel wood burner/stove—providing a modern twist on traditional heating and helping to reduce household bills. This stove not only adds character but also contributes efficiently to the home’s heating, and the hot water system is designed to function independently of the fire, offering added convenience and flexibility.
Further accommodation includes an impressive country-style kitchen, a well-appointed bathroom, separate W/C, and four generously sized double bedrooms. One of the bedrooms is located on the first floor, along with an additional versatile room—ideal as a dressing room, walk-in wardrobe, or even an extra living space.
Externally, the front of the property boasts a well-maintained lawned garden enclosed by a wall and fencing, with a flagged patio area perfect for outdoor seating. A large driveway provides ample off-road parking and access to the garage. To the rear, there is a private fenced garden with a lawn, decking area ideal for relaxing or entertaining, and useful external storage sheds.
We highly recommend an internal inspection to fully appreciate the quality, layout, and generous space this beautifully presented home has to offer.
For further information or to arrange a viewing, please call the local office.
Council Tax Band: C
Tenure: Freehold
External Front
Double gated access to a good size wall and fence enclosed lawned garden with flagged seating area plus large onsite driveway providing ample off road parking which in turn gives access to the garage
Entrance Porch
External front double glazed double doors, tiled flooring and glazed window to the side elevation.
Entrance Halway
Solid wood flooring, stairs accessing the first floor, built in storage cupboards, radiator, door into:-
Living Room
Upvc framed double glazed window to the front elevation, radiator, stunning feature cast iron log burner inset onto slate hearth and solid wood flooring.
Kitchen
Fitted with a good range of base and wall units finished in cream, solid wooden worktops, Belfast sink unit with mixer tap, integrated oven with hob and chimney extractor hood, integrated washing machine and dishwasher, tiling to splashbacks, integrated fridge freezer, upvc framed double glazed window, radiator, inset spotlights to ceiling, tiling to the floor, door accessing the rear of the property.
Bedroom One
Solid wood flooring, Upvc framed double glazed window to the rear elevation and a radiator.
Bedroom Two
Upvc framed double glazed bay window tot he front elevation, radiator and carpeted flooring.
Bedroom Three
Solid wood flooring, Upvc framed double glazed window to the rear elevation and a radiator.
Bathroom
Fitted with a well appointed 3 piece suite comprising a corner shower cubicle with overhead shower, free standing bath with shower attachment, handwash basin, heated towel rail, Upvc framed double glazed window, radiator and laminate flooring.
Separate W/c
Fitted Low level w/c, double glazed window and laminate flooring.
1ST FLOOR: Building regulations in place.
Bedroom Four
Flexible room ample for an additional bedroom/living space with four double glazed Velux windows enjoying stunning views to the rear elevation, 2 radiators, solid wood flooring, inset spotlights to ceiling, storage cupboards, beamed ceiling, access into:-
Additional Room
Flexible room with solid wood flooring, beamed ceiling, inset spotlights to ceiling.
External Rear
Fence enclosed garden laid mainly to lawn, with decked area being ideal for seating, external brick storage sheds and wood store. Access to the rear of the garage.
Brochures
Brochure- COUNCIL TAXA payment made to your local authority in order to pay for local services like schools, libraries, and refuse collection. The amount you pay depends on the value of the property.Read more about council Tax in our glossary page.
- Band: C
- PARKINGDetails of how and where vehicles can be parked, and any associated costs.Read more about parking in our glossary page.
- Yes
- GARDENA property has access to an outdoor space, which could be private or shared.
- Yes
- ACCESSIBILITYHow a property has been adapted to meet the needs of vulnerable or disabled individuals.Read more about accessibility in our glossary page.
- Ask agent
Front Street North, Trimdon Village, Trimdon Station, Durham, TS29 6PG
Add an important place to see how long it'd take to get there from our property listings.
__mins driving to your place
Get an instant, personalised result:
- Show sellers you’re serious
- Secure viewings faster with agents
- No impact on your credit score
Your mortgage
Notes
Staying secure when looking for property
Ensure you're up to date with our latest advice on how to avoid fraud or scams when looking for property online.
Visit our security centre to find out moreDisclaimer - Property reference 462846. The information displayed about this property comprises a property advertisement. Rightmove.co.uk makes no warranty as to the accuracy or completeness of the advertisement or any linked or associated information, and Rightmove has no control over the content. This property advertisement does not constitute property particulars. The information is provided and maintained by Pattinson Estate Agents, Peterlee. Please contact the selling agent or developer directly to obtain any information which may be available under the terms of The Energy Performance of Buildings (Certificates and Inspections) (England and Wales) Regulations 2007 or the Home Report if in relation to a residential property in Scotland.
*This is the average speed from the provider with the fastest broadband package available at this postcode. The average speed displayed is based on the download speeds of at least 50% of customers at peak time (8pm to 10pm). Fibre/cable services at the postcode are subject to availability and may differ between properties within a postcode. Speeds can be affected by a range of technical and environmental factors. The speed at the property may be lower than that listed above. You can check the estimated speed and confirm availability to a property prior to purchasing on the broadband provider's website. Providers may increase charges. The information is provided and maintained by Decision Technologies Limited. **This is indicative only and based on a 2-person household with multiple devices and simultaneous usage. Broadband performance is affected by multiple factors including number of occupants and devices, simultaneous usage, router range etc. For more information speak to your broadband provider.
Map data ©OpenStreetMap contributors.





