Wheel Forge Way - Unit 17, Trafford Park, Manchester, Greater Manchester, M17
- SIZE AVAILABLE
6,151 sq ft
571 sq m
- SECTOR
Warehouse to lease
Lease details
- Lease available date:
- Ask agent
Key features
- Modern mid-terraced industrial unit
- Open plan warehouse
- Eaves ranging from 6.1m - 7.7m
- Roller shutter door
- High quality office accommodation
- 4 no. car parking spaces
- Dedicated yard / loading area
- 1 mile from Junction 9 of the M60 Motorway
Description
The property is located on the south-eastern side of Wheel Forge Way, close to its junction with Ashburton Road West (B5214) within the Ashburton Park development of Trafford Park.
The property offers excellent transport links with Junction 9 of the M60 Motorway being located 1 mile away via Ashburton Road West and Park Way. Public transport options are available by way of bus stops on Ashburton Road West within 500ft and the Parkway Metrolink Tram stop being within 0.7 miles. Manchester City Centre is approximately 3 miles to the north-west.
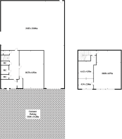
ACCOMMODATION
The property provides the following Gross Internal Area:
Ground Floor: 4,750 sq ft (441.29 sq m)
First Floor: 1,401 sq ft (130.16 sq m)
Total: 6,151 sq ft (571.85 sq m)
TERMS
The property is available by way of a new full repairing and insuring lease on terms to be agreed.
SPECIFICATION
The property comprises a modern mid-terraced industrial unit of steel portal frame construction beneath a single pitched steel sheet roof arranged over ground and first floors offering the following specification:
Ground Floor
* Open plan warehouse
* Eaves ranging from 6.1m ? 7.7m
* Roller shutter door
* Reception area
* Office / workshop area
* Kitchen / WC facilities
First Floor
* High quality office accommodation
* Suspended ceiling incorporating Cat II lighting
* Air conditioning
* Gas central heating
* Part carpeted / part laminate floor to offices
External
* 4 no. car parking spaces
* Dedicated yard / loading area
Brochures
Wheel Forge Way - Unit 17, Trafford Park, Manchester, Greater Manchester, M17
NEAREST STATIONS
Distances are straight line measurements from the centre of the postcode- Eccles Tram Stop0.9 miles
- Ladywell Tram Stop0.9 miles
- Eccles Station1.0 miles
Notes
Disclaimer - Property reference WheelForgeWay. The information displayed about this property comprises a property advertisement. Rightmove.co.uk makes no warranty as to the accuracy or completeness of the advertisement or any linked or associated information, and Rightmove has no control over the content. This property advertisement does not constitute property particulars. The information is provided and maintained by DAVIES HARRISON LIMITED, Manchester. Please contact the selling agent or developer directly to obtain any information which may be available under the terms of The Energy Performance of Buildings (Certificates and Inspections) (England and Wales) Regulations 2007 or the Home Report if in relation to a residential property in Scotland.
Map data ©OpenStreetMap contributors.





