Kedleston Road, Evington, Leicester

- PROPERTY TYPE
Semi-Detached
- BEDROOMS
3
- BATHROOMS
2
- SIZE
1,163 sq ft
108 sq m
- TENUREDescribes how you own a property. There are different types of tenure - freehold, leasehold, and commonhold.Read more about tenure in our glossary page.
Freehold
Key features
- Gas Central Heating, Double Glazing
- Two Reception Rooms
- Kitchen, Ground Floor Wet Room
- Three Bedrooms, Bathroom
- Driveway to the Front
- Rear Garden
Description
A traditional semi-detached property having been extended to the rear with further scope for alterations, subject to relevant building regulations.
The property is available with No Upward Chain, presenting accommodation to include an entrance porch, entrance hall, reception room, an extended sitting room, kitchen and ground floor wet room.
The first floor has three bedrooms and a family bathroom.
Outside enjoys off road parking to the front and a generous size rear garden. An ideal family home.
The property is well located for everyday local amenities and services, including local public and private schooling with Madani Muslim Secondary School situated on Evington Valley Road, and Masjid Umar Mosque and Islamic Centre both within minutes’ walk of the property. Everyday amenities can be found along Evington Road, Leicester City Centre and neighbouring Stoneygate and Clarendon Park. Leicester University, Leicester Royal Infirmary and Leicester General Hospital are also easily accessible.
EPC Rating: D
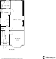
Entrance Porch
With internal door to entrance hall.
Entrance Hall
With stairs to first floor, under stairs storage cupboard, radiator.
Reception Room One
4m x 3.4m
With double glazed bay window to the front elevation, radiator.
Extended Sitting Room
7.34m x 3.5m
With patio door to rear garden, fireplace with surround, two radiators.
Kitchen
4.43m x 2.35m
With two double glazed windows to the side elevation, stainless steel sink and drainer unit, gas cooker point, plumbing for washing machine, wall and base units with work surface over, part tiled walls.
Wet Room
2.32m x 1.53m
With double glazed window to the rear elevation, walk-in wet room style tiled shower, low-level WC, wash hand basin, extractor fan, radiator.
First Floor Landing
With double glazed window to the side elevation.
Bedroom One
4.09m x 3.29m
With double glazed bay window to the front elevation, fitted wardrobes and drawers, picture rail, radiator.
Bedroom Two
3.49m x 3.71m
With double glazed window to the rear elevation, picture rail, fireplace, cupboard housing boiler, radiator.
Bedroom Three
2.37m x 2.28m
With double glazed window to the front elevation, radiator.
Bathroom
2.05m x 1.85m
With double glazed window to the rear elevation, bath with electric shower over, low-level WC, pedestal wash hand basin, loft access, tiled floor, tiled walls, radiator.
Rear Garden
With paved patio area, lawn, fencing to perimeter, gate to side access, storage shed to rear.
Parking - Driveway
Paved driveway. Please note that parking is subject to vehicle size. Prospective purchasers should ensure the dimensions are suitable for their vehicle before relying on it for parking purposes.
Disclaimer
Measurements are taken electronically and are for guidance only — not to be relied upon as exact. Services, appliances, and fittings have not been tested. Buyers must satisfy themselves through inspection. Floor plans are not to scale and are for layout guidance only. Knightsbridge Estate Agents make no warranties regarding the property. By law, we must carry out anti-money laundering checks for buyers and sellers. These are handled on our behalf by Lifetime Legal, who will contact you once you instruct us to sell or have an offer accepted. A £70 fee (incl. VAT) covers required data and any manual checks. This must be paid before we can publish your property (for vendors) or issue a memorandum of sale (for buyers). The fee is non-refundable and paid directly to Lifetime Legal. We receive a portion of this fee for facilitating the checks.
Brochures
Key Facts for Buyers- COUNCIL TAXA payment made to your local authority in order to pay for local services like schools, libraries, and refuse collection. The amount you pay depends on the value of the property.Read more about council Tax in our glossary page.
- Band: C
- PARKINGDetails of how and where vehicles can be parked, and any associated costs.Read more about parking in our glossary page.
- Driveway
- GARDENA property has access to an outdoor space, which could be private or shared.
- Rear garden
- ACCESSIBILITYHow a property has been adapted to meet the needs of vulnerable or disabled individuals.Read more about accessibility in our glossary page.
- Ask agent
Energy performance certificate - ask agent
Kedleston Road, Evington, Leicester
Add an important place to see how long it'd take to get there from our property listings.
__mins driving to your place
Get an instant, personalised result:
- Show sellers you’re serious
- Secure viewings faster with agents
- No impact on your credit score



Affordability
Notes
Staying secure when looking for property
Ensure you're up to date with our latest advice on how to avoid fraud or scams when looking for property online.
Visit our security centre to find out moreDisclaimer - Property reference 5c37c6f2-f72c-4f23-a4bf-2ed0252842fb. The information displayed about this property comprises a property advertisement. Rightmove.co.uk makes no warranty as to the accuracy or completeness of the advertisement or any linked or associated information, and Rightmove has no control over the content. This property advertisement does not constitute property particulars. The information is provided and maintained by Knightsbridge Estate Agents & Valuers, Leicester. Please contact the selling agent or developer directly to obtain any information which may be available under the terms of The Energy Performance of Buildings (Certificates and Inspections) (England and Wales) Regulations 2007 or the Home Report if in relation to a residential property in Scotland.
*This is the average speed from the provider with the fastest broadband package available at this postcode. The average speed displayed is based on the download speeds of at least 50% of customers at peak time (8pm to 10pm). Fibre/cable services at the postcode are subject to availability and may differ between properties within a postcode. Speeds can be affected by a range of technical and environmental factors. The speed at the property may be lower than that listed above. You can check the estimated speed and confirm availability to a property prior to purchasing on the broadband provider's website. Providers may increase charges. The information is provided and maintained by Decision Technologies Limited. **This is indicative only and based on a 2-person household with multiple devices and simultaneous usage. Broadband performance is affected by multiple factors including number of occupants and devices, simultaneous usage, router range etc. For more information speak to your broadband provider.
Map data ©OpenStreetMap contributors.





