Reedlands Drive, Denny, FK6 5NL

- PROPERTY TYPE
- Terraced 
- BEDROOMS
- 2 
- BATHROOMS
- 1 
- SIZE
- Ask agent 
- TENUREDescribes how you own a property. There are different types of tenure - freehold, leasehold, and commonhold.Read more about tenure in our glossary page.
- Ask agent 
Key features
- Close to Local Amenities, Schools and Transport Links
- Driveway
- Feature Garden
- Great Storage
- Modern Shower Room
- Two Double Bedrooms
- Spacious Lounge
- Stunning Kitchen/ Diner
- HOME REPORT FOUND AT BROCHURE SECTION
Description
HOME REPORT FOUND AT BROCHURE SECTION
If you’re looking for a beautifully presented, move-in-ready home that offers space, style, and a truly impressive garden, then 4 Reedlands Drive in Denny could be the perfect choice. This stunning two-bedroom terraced property has been thoughtfully designed and upgraded, creating a warm and contemporary home ideal for a range of buyers — from first-time purchasers to families or downsizers seeking quality and comfort.
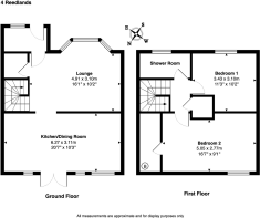
Split over two levels, this home immediately impresses with its generous layout and modern finishes. At the front of the property, you’ll find a bright and spacious lounge, filled with natural light and offering a relaxing and inviting space to unwind. Just off the lounge is a fantastic walk-in closet that provides excellent storage and could easily be adapted into a home office, playroom, or even a small study area — perfect for today’s flexible lifestyles.
At the heart of the home, to the rear of the property, lies the show-stopping kitchen and dining area — a space that truly defines modern living. The kitchen features sleek cabinetry, ample workspace, and high-quality appliances, creating a perfect balance of style and practicality. French doors lead directly out to the beautifully landscaped rear garden — a private oasis designed for relaxation and entertaining. The garden is a standout feature, complete with a fabulous water feature, and low-maintenance finishes that make it ideal for summer evenings or weekend gatherings.
Upstairs, there are two fantastic double bedrooms, both spacious and beautifully presented, offering flexibility for family life or guests. A large, modern shower room completes the upper level, featuring contemporary tiling, a walk-in shower, and quality fittings.
Externally, the property continues to impress with a sizeable monoblock driveway at the front, providing off-street parking for multiple vehicles.
Why 4 Reedlands Drive, Denny, FK6 5NL is a Great Place to Live:
Located in a peaceful and popular residential area, this home benefits from easy access to local amenities, shops, and schools. Denny offers a friendly community atmosphere with excellent transport links to Stirling, Falkirk, Glasgow, and Edinburgh via the nearby M80 and M876 motorways. Surrounded by scenic countryside and parks, it’s a location that perfectly balances modern convenience with a relaxed lifestyle.
Early viewing is highly recommended to appreciate this stunning home, its exceptional garden, and its welcoming location.
Brochures
Brochure 1- COUNCIL TAXA payment made to your local authority in order to pay for local services like schools, libraries, and refuse collection. The amount you pay depends on the value of the property.Read more about council Tax in our glossary page.
- Ask agent
- PARKINGDetails of how and where vehicles can be parked, and any associated costs.Read more about parking in our glossary page.
- Driveway
- GARDENA property has access to an outdoor space, which could be private or shared.
- Private garden
- ACCESSIBILITYHow a property has been adapted to meet the needs of vulnerable or disabled individuals.Read more about accessibility in our glossary page.
- Ask agent
Reedlands Drive, Denny, FK6 5NL
Add an important place to see how long it'd take to get there from our property listings.
__mins driving to your place
Get an instant, personalised result:
- Show sellers you’re serious
- Secure viewings faster with agents
- No impact on your credit score
Your mortgage
Notes
Staying secure when looking for property
Ensure you're up to date with our latest advice on how to avoid fraud or scams when looking for property online.
Visit our security centre to find out moreDisclaimer - Property reference S1475026. The information displayed about this property comprises a property advertisement. Rightmove.co.uk makes no warranty as to the accuracy or completeness of the advertisement or any linked or associated information, and Rightmove has no control over the content. This property advertisement does not constitute property particulars. The information is provided and maintained by Lindsey Archibald - Estate Agent, Denny. Please contact the selling agent or developer directly to obtain any information which may be available under the terms of The Energy Performance of Buildings (Certificates and Inspections) (England and Wales) Regulations 2007 or the Home Report if in relation to a residential property in Scotland.
*This is the average speed from the provider with the fastest broadband package available at this postcode. The average speed displayed is based on the download speeds of at least 50% of customers at peak time (8pm to 10pm). Fibre/cable services at the postcode are subject to availability and may differ between properties within a postcode. Speeds can be affected by a range of technical and environmental factors. The speed at the property may be lower than that listed above. You can check the estimated speed and confirm availability to a property prior to purchasing on the broadband provider's website. Providers may increase charges. The information is provided and maintained by Decision Technologies Limited. **This is indicative only and based on a 2-person household with multiple devices and simultaneous usage. Broadband performance is affected by multiple factors including number of occupants and devices, simultaneous usage, router range etc. For more information speak to your broadband provider.
Map data ©OpenStreetMap contributors.





