
Danby Avenue, Old Whittington, Chesterfield, S41 9NJ

- PROPERTY TYPE
Semi-Detached
- BEDROOMS
4
- BATHROOMS
2
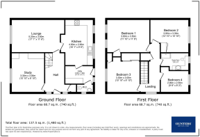
- SIZE
1,480 sq ft
137 sq m
- TENUREDescribes how you own a property. There are different types of tenure - freehold, leasehold, and commonhold.Read more about tenure in our glossary page.
Freehold
Key features
- NO CHAIN
- FOUR BEDROOM
- SEMI DETACHED
- DRIVEWAY PARKING
- REAR GARDEN
- GREAT SIZED FAMILY HOME
Description
GREAT SIZED FAMILY HOME - NEARLY 1,500 SQUARE FEET - MUST BE VIEWED - well presented throughout, ON A CORNER PLOT with DRIVEWAY PARKING.
Positioned in a well-established residential area of Old Whittington, Danby Avenue presents an excellent opportunity for families or buyers seeking space, convenience and access to local amenities. With canal walks just moments away, this property offers a peaceful lifestyle with everything you need close at hand.
The home is ideally located for those with children, with both primary and secondary schools in the vicinity. Shops, services and public transport links are also within easy reach.
Stepping inside, the entrance hall leads to a spacious lounge. A separate study provides a useful space for home working or as a playroom, depending on your needs. The kitchen and dining area span the rear of the property, offering a sociable layout with plenty of room for family meals or hosting guests. Just off the kitchen is a useful utility room and a ground floor WC, adding to the practicality of the home.
Upstairs, there are four generously sized bedrooms, each offering ample space. The family bathroom is well-appointed and serves the first floor comfortably.
Externally, the property benefits from driveway parking and a fully enclosed garden to the rear, offering privacy and a secure area for children or pets.
Offered with no onward chain, Danby Avenue represents a move-in-ready option with excellent potential to personalise over time.
Early viewing is highly recommended to appreciate all that this home has to offer.
FREEHOLD | COUNCIL TAX BAND B
Disclosure - ADVERT & DESCRIPTION DISCLAIMER;
These particulars are intended to give a fair and reliable description of the property but no responsibility for any inaccuracy or error can be accepted and do not constitute an offer or contract.
We have not tested any services or appliances (including central heating if fitted) referred to in these particulars and the purchasers are advised to satisfy themselves as to the working order and condition.
If a property is unoccupied at any time there may be reconnection charges for any switched off/disconnected or drained services or appliances.
All measurements are approximate.
BUYERS AML FEE DISCLOSURE;
By law, we are required to conduct anti-money laundering checks on all potential buyers and sellers, and we take this responsibility very seriously. In line with HMRC guidelines, we will securely manage these checks. Once an offer is accepted (subject to contract), a secure link for you to complete the biometric checks electronically. A non-refundable fee of £62.50 + VAT (£75.00 inc VAT) per person will apply for these checks. These anti-money laundering checks must be completed before we can send the memorandum of sale to the solicitors to confirm the sale.
Brochures
Danby Avenue, Old Whittington, Chesterfield, S41 9- COUNCIL TAXA payment made to your local authority in order to pay for local services like schools, libraries, and refuse collection. The amount you pay depends on the value of the property.Read more about council Tax in our glossary page.
- Band: B
- PARKINGDetails of how and where vehicles can be parked, and any associated costs.Read more about parking in our glossary page.
- Yes
- GARDENA property has access to an outdoor space, which could be private or shared.
- Yes
- ACCESSIBILITYHow a property has been adapted to meet the needs of vulnerable or disabled individuals.Read more about accessibility in our glossary page.
- Ask agent
Danby Avenue, Old Whittington, Chesterfield, S41 9NJ
Add an important place to see how long it'd take to get there from our property listings.
__mins driving to your place
Get an instant, personalised result:
- Show sellers you’re serious
- Secure viewings faster with agents
- No impact on your credit score
Your mortgage
Notes
Staying secure when looking for property
Ensure you're up to date with our latest advice on how to avoid fraud or scams when looking for property online.
Visit our security centre to find out moreDisclaimer - Property reference 34244381. The information displayed about this property comprises a property advertisement. Rightmove.co.uk makes no warranty as to the accuracy or completeness of the advertisement or any linked or associated information, and Rightmove has no control over the content. This property advertisement does not constitute property particulars. The information is provided and maintained by Hunters, Chesterfield. Please contact the selling agent or developer directly to obtain any information which may be available under the terms of The Energy Performance of Buildings (Certificates and Inspections) (England and Wales) Regulations 2007 or the Home Report if in relation to a residential property in Scotland.
*This is the average speed from the provider with the fastest broadband package available at this postcode. The average speed displayed is based on the download speeds of at least 50% of customers at peak time (8pm to 10pm). Fibre/cable services at the postcode are subject to availability and may differ between properties within a postcode. Speeds can be affected by a range of technical and environmental factors. The speed at the property may be lower than that listed above. You can check the estimated speed and confirm availability to a property prior to purchasing on the broadband provider's website. Providers may increase charges. The information is provided and maintained by Decision Technologies Limited. **This is indicative only and based on a 2-person household with multiple devices and simultaneous usage. Broadband performance is affected by multiple factors including number of occupants and devices, simultaneous usage, router range etc. For more information speak to your broadband provider.
Map data ©OpenStreetMap contributors.





