
2 bedroom apartment for sale
Riverside Gardens, Jubilee Gardens, Weybridge, KT13

- PROPERTY TYPE
Apartment
- BEDROOMS
2
- BATHROOMS
1
- SIZE
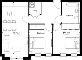
842 sq ft
78 sq m
Key features
- Contemporary fitted kitchen with integrated appliances
- Ceramic tiles to kitchen area, bathroom and ensuite
- Utiility space housing NEFF washer/dryer
- 842 sq ft
- Lift access to all floors
- Video entry with smart control
- Secure basement parking
- Ten year Build Zone Warranty
Description
Plot 22 includes quality features such as Neff integrated appliances, quartz stone worktops in the kitchen, fitted wardrobes to the principal bedroom, and washing machine/dryer within a dedicated enclosed utility area.
This brand new development comprises four distinct pavilions, offering a vareity of different lay outs, some with Juliet balconies or terraces, or a small selection with spectacular views over the water to the rear.
Fifty-one generous apartments have been arranged over three floors in the front two buildings and four floors in the rear buildings.
Riverside Gardens Show Home - Opening Times: Tuesday to Saturday- 10.00am until 5.00pm.
Leasehold; 999-year lease from 1st January 2023
Service Charge: Approximately £2,465 per annum
N.B. Internal photography is of the show home and is provided for illustrative purposes only.
- COUNCIL TAXA payment made to your local authority in order to pay for local services like schools, libraries, and refuse collection. The amount you pay depends on the value of the property.Read more about council Tax in our glossary page.
- Band: TBC
- PARKINGDetails of how and where vehicles can be parked, and any associated costs.Read more about parking in our glossary page.
- Yes
- GARDENA property has access to an outdoor space, which could be private or shared.
- Yes
- ACCESSIBILITYHow a property has been adapted to meet the needs of vulnerable or disabled individuals.Read more about accessibility in our glossary page.
- Ask agent
Riverside Gardens, Jubilee Gardens, Weybridge, KT13
Add an important place to see how long it'd take to get there from our property listings.
__mins driving to your place
Get an instant, personalised result:
- Show sellers you’re serious
- Secure viewings faster with agents
- No impact on your credit score


Your mortgage
Notes
Staying secure when looking for property
Ensure you're up to date with our latest advice on how to avoid fraud or scams when looking for property online.
Visit our security centre to find out moreDisclaimer - Property reference NEH220197. The information displayed about this property comprises a property advertisement. Rightmove.co.uk makes no warranty as to the accuracy or completeness of the advertisement or any linked or associated information, and Rightmove has no control over the content. This property advertisement does not constitute property particulars. The information is provided and maintained by Curchods Estate Agents, Walton-on-Thames. Please contact the selling agent or developer directly to obtain any information which may be available under the terms of The Energy Performance of Buildings (Certificates and Inspections) (England and Wales) Regulations 2007 or the Home Report if in relation to a residential property in Scotland.
*This is the average speed from the provider with the fastest broadband package available at this postcode. The average speed displayed is based on the download speeds of at least 50% of customers at peak time (8pm to 10pm). Fibre/cable services at the postcode are subject to availability and may differ between properties within a postcode. Speeds can be affected by a range of technical and environmental factors. The speed at the property may be lower than that listed above. You can check the estimated speed and confirm availability to a property prior to purchasing on the broadband provider's website. Providers may increase charges. The information is provided and maintained by Decision Technologies Limited. **This is indicative only and based on a 2-person household with multiple devices and simultaneous usage. Broadband performance is affected by multiple factors including number of occupants and devices, simultaneous usage, router range etc. For more information speak to your broadband provider.
Map data ©OpenStreetMap contributors.





