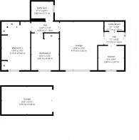
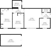
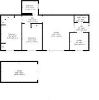
2 bedroom bungalow for sale
4 Westerton of Mugdock, Mugdock, G62 8LQ

- PROPERTY TYPE
Bungalow
- BEDROOMS
2
- BATHROOMS
1
- SIZE
710 sq ft
66 sq m
- TENUREDescribes how you own a property. There are different types of tenure - freehold, leasehold, and commonhold.Read more about tenure in our glossary page.
Freehold
Description
Forming part of the distinguished Westerton of Mugdock mansion house, originally built for Professor Barr of Glasgow's renowned Barr & Stroud company, this impeccably upgraded two-bedroom home combines period grandeur with flawless modern interiors. Converted in 1983 into just eight individual residences, Number Four enjoys its own private entrance and a wonderful outlook across the landscaped grounds.
The property is set within approximately six acres of rolling lawns, woodland gardens and a small orchard, offering a sense of tranquillity and space rarely found so close to the city. Despite its idyllic setting within the hamlet of Mugdock, the home is only a few minutes' drive from Milngavie town centre, where excellent shops, services and rail links to Glasgow and Edinburgh can be found.
Internally, the current owners have transformed the property to the highest of standards, presenting stylish, contemporary accommodation, in true walk-in condition. A welcoming vestibule leads into a striking modern kitchen, finished with a full suite of integrated appliances, alongside a cleverly designed utility area, providing excellent storage. The heart of the home is the beautifully proportioned lounge and dining room, which enjoys generous natural light and a serene outlook over the gardens. There are two elegant double bedrooms, each with contemporary fitted wardrobes, and a chic, fully tiled bathroom, with over bath shower. Additional storage is provided via a sizeable loft space.
Externally, residents enjoy access to the manicured communal grounds, along with allocated residents' parking and a private garage.
With gas central heating and double glazing, this is a beautifully presented home, in an exceptional location, perfectly balancing rural charm with modern convenience.
EER Band - C
Local Area
Mugdock is extremely well placed for an extensive array of amenities in Milngavie, where the pedestrianised town centre provides a wide selection of facilities and services, including banks, restaurants, Marks & Spencer's Food Hall and Waitrose. Lennox Park lies near the centre of Milngavie. Further recreational pursuits include a choice of sports centres/gyms, including Allander Sports centre, Nuffield Health Fitness & Wellbeing Gym, tennis and bowling clubs and an array of reputable golf clubs. Milngavie is home to the starting point of The West Highland Way with further walking and cycling trails close at hand in nearby Mugdock Country Park and around the Allander and Craigmaddie Reservoirs. Milngavie train station offers frequent trains to Glasgow's West End and City Centre, along with a direct service to Edinburgh.
Brochures
Web Details- COUNCIL TAXA payment made to your local authority in order to pay for local services like schools, libraries, and refuse collection. The amount you pay depends on the value of the property.Read more about council Tax in our glossary page.
- Band: E
- PARKINGDetails of how and where vehicles can be parked, and any associated costs.Read more about parking in our glossary page.
- Yes
- GARDENA property has access to an outdoor space, which could be private or shared.
- Communal garden
- ACCESSIBILITYHow a property has been adapted to meet the needs of vulnerable or disabled individuals.Read more about accessibility in our glossary page.
- Ask agent
Energy performance certificate - ask agent
4 Westerton of Mugdock, Mugdock, G62 8LQ
Add an important place to see how long it'd take to get there from our property listings.
__mins driving to your place
Get an instant, personalised result:
- Show sellers you’re serious
- Secure viewings faster with agents
- No impact on your credit score
Your mortgage
Notes
Staying secure when looking for property
Ensure you're up to date with our latest advice on how to avoid fraud or scams when looking for property online.
Visit our security centre to find out moreDisclaimer - Property reference BD3992. The information displayed about this property comprises a property advertisement. Rightmove.co.uk makes no warranty as to the accuracy or completeness of the advertisement or any linked or associated information, and Rightmove has no control over the content. This property advertisement does not constitute property particulars. The information is provided and maintained by Corum, Bearsden. Please contact the selling agent or developer directly to obtain any information which may be available under the terms of The Energy Performance of Buildings (Certificates and Inspections) (England and Wales) Regulations 2007 or the Home Report if in relation to a residential property in Scotland.
*This is the average speed from the provider with the fastest broadband package available at this postcode. The average speed displayed is based on the download speeds of at least 50% of customers at peak time (8pm to 10pm). Fibre/cable services at the postcode are subject to availability and may differ between properties within a postcode. Speeds can be affected by a range of technical and environmental factors. The speed at the property may be lower than that listed above. You can check the estimated speed and confirm availability to a property prior to purchasing on the broadband provider's website. Providers may increase charges. The information is provided and maintained by Decision Technologies Limited. **This is indicative only and based on a 2-person household with multiple devices and simultaneous usage. Broadband performance is affected by multiple factors including number of occupants and devices, simultaneous usage, router range etc. For more information speak to your broadband provider.
Map data ©OpenStreetMap contributors.







